
Greenbank, Long Preston, Skipton, North Yorkshire, BD23

- PROPERTY TYPE
End of Terrace
- BEDROOMS
3
- BATHROOMS
2
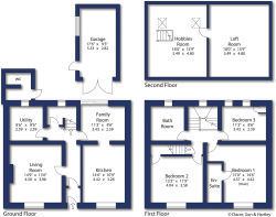
- SIZE
2,005 sq ft
186 sq m
- TENUREDescribes how you own a property. There are different types of tenure - freehold, leasehold, and commonhold.Read more about tenure in our glossary page.
Freehold
Key features
- Three bedroom character cottage
- Two reception rooms
- Dining kitchen
- House bathroom plus en suite
- Hobby room to second floor
- On drive parking plus garage
- Established garden to rear
- Internal viewing highly recommended
Description
Entering through the front door is a vestibule with space for coats and boots and an inner door to hallway. The kitchen faces the front of the home and has an excellent range of wall and base units, complementary worktop and sink with Quooker tap. Appliances include an Electric Aga, integrated Siemens fridge, freezer and dishwasher. Space and plumbing for washing machine and dryer can be found in the utility. Off the kitchen, through an opening is the family room, a lovely light room with sliding patio doors that lead out to the rear garden. The living room is a good size square room with ceiling beams, feature fireplace with gas fire insert and a window to front.
Upstairs on the first floor are three bedrooms and the house bathroom. All the bedrooms are good size doubles with the master benefitting from an ensuite shower room. The house bathroom comprises a freestanding bath, shower cubicle, wash hand basin, wc and frosted window to rear. Up on the second floor is a hobby room and loft area. The hobby room has light, power, eaves storage along with Velux windows.
Externally, there is drive to side allowing for ample parking and a garage with light and power. The garden faces the rear and has a lawn, patio seating area, outhouse with wc and a good selection of plants and shrubs.
Long Preston is a very active village community centred around the village hall, other amenities include a primary school, general store, church, pub and a railway station with services operating between Leeds and Carlisle. The market town of Settle is within approximately four miles and offers a wide range of shops and schools catering for all age groups. The larger market town of Skipton is some eleven miles to the south. Both West Yorkshire and East Lancashire business centres are within reasonable commuting distance and there is access to the motorway network at Preston. Long Preston is within the Yorkshire Dales National Park and is surrounded by scenic countryside with immediate access to a variety of walks.
Tenure
Freehold
Located within the Yorkshire Dales National Park.
Council Tax
Band D
Services
Mains Gas, Electricity and Drainage are installed
Water - Long Preston Private Water Supply
Heating - Gas fired central heating
Parking
On drive parking plus garage.
From Settle proceed on the A65 towards Long Preston. Pass the Maypole pub and turn right before the Boars Head, down the road where the Post Office is located. The property can be found on the right hand side.
Brochures
Particulars- COUNCIL TAXA payment made to your local authority in order to pay for local services like schools, libraries, and refuse collection. The amount you pay depends on the value of the property.Read more about council Tax in our glossary page.
- Band: D
- PARKINGDetails of how and where vehicles can be parked, and any associated costs.Read more about parking in our glossary page.
- Driveway,Off street,Private
- GARDENA property has access to an outdoor space, which could be private or shared.
- Yes
- ACCESSIBILITYHow a property has been adapted to meet the needs of vulnerable or disabled individuals.Read more about accessibility in our glossary page.
- Ask agent
Greenbank, Long Preston, Skipton, North Yorkshire, BD23
Add an important place to see how long it'd take to get there from our property listings.
__mins driving to your place
Get an instant, personalised result:
- Show sellers you’re serious
- Secure viewings faster with agents
- No impact on your credit score
Your mortgage
Notes
Staying secure when looking for property
Ensure you're up to date with our latest advice on how to avoid fraud or scams when looking for property online.
Visit our security centre to find out moreDisclaimer - Property reference SET250232. The information displayed about this property comprises a property advertisement. Rightmove.co.uk makes no warranty as to the accuracy or completeness of the advertisement or any linked or associated information, and Rightmove has no control over the content. This property advertisement does not constitute property particulars. The information is provided and maintained by Dacre Son & Hartley, Settle. Please contact the selling agent or developer directly to obtain any information which may be available under the terms of The Energy Performance of Buildings (Certificates and Inspections) (England and Wales) Regulations 2007 or the Home Report if in relation to a residential property in Scotland.
*This is the average speed from the provider with the fastest broadband package available at this postcode. The average speed displayed is based on the download speeds of at least 50% of customers at peak time (8pm to 10pm). Fibre/cable services at the postcode are subject to availability and may differ between properties within a postcode. Speeds can be affected by a range of technical and environmental factors. The speed at the property may be lower than that listed above. You can check the estimated speed and confirm availability to a property prior to purchasing on the broadband provider's website. Providers may increase charges. The information is provided and maintained by Decision Technologies Limited. **This is indicative only and based on a 2-person household with multiple devices and simultaneous usage. Broadband performance is affected by multiple factors including number of occupants and devices, simultaneous usage, router range etc. For more information speak to your broadband provider.
Map data ©OpenStreetMap contributors.






