
2 bedroom flat for sale
Connaught Road, Brookwood, Woking, Surrey, GU24

- PROPERTY TYPE
Flat
- BEDROOMS
2
- BATHROOMS
1
- SIZE
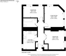
709 sq ft
66 sq m
Key features
- Spacious two-bedroom apartment in Brookwood, Surrey
- Generous 709 sq ft (65 sq m) of stylish, low-maintenance living
- Elegant open-plan kitchen / dining space with integrated appliances
- Bright lounge ideal for relaxing or entertaining
- Two double bedrooms finished in calm neutral tones
- Sleek porcelain-tiled bathroom with chrome fittings
- Private allocated parking space & secure entry system
- Energy-efficient design within an exclusive 10-home development
- Moments from Brookwood Station – London Waterloo in under 40 minutes
- Peaceful village location surrounded by green space and canal walks
Description
Property Highlights:
• Generously sized 709 sqft (65 sqm) two-bedroom apartment
• Contemporary open-plan kitchen/dining area with integrated appliances
• Light-filled living room with space for relaxing or entertaining
• Two comfortable bedrooms with plush carpets and neutral tones
• Sleek porcelain-tiled bathroom with modern fittings and chrome finishes
• Private allocated parking space and secure entry system
• Set within an exclusive development of just 10 homes by White Lavender Homes
• Energy-efficient heating & lighting throughout
If you’re seeking a Surrey village with fast trains to London, Brookwood offers the perfect mix of peace and practicality. From Brookwood Station, direct trains reach London Waterloo in under 40 minutes, making it a favourite for professionals and couples alike.
The village has a friendly, community atmosphere, with cafés, pubs, and local shops all close by. Nature lovers will enjoy Brookwood Country Park, Sheet’s Heath Common, and the Basingstoke Canal — perfect for weekend walks. Meanwhile, Woking and Guildford are just a short drive away for shopping, dining, and leisure.
Brookwood truly offers the best of both worlds — tranquil Surrey surroundings with city connections at your doorstep.
Service Charge: TBC- please contact us for more details
Lease Term: please contact us for more information
Council Tax Band: New Build TBC
Please note photos and CGIs are indicative only and may not precisely represent the property.
Brochures
Particulars- COUNCIL TAXA payment made to your local authority in order to pay for local services like schools, libraries, and refuse collection. The amount you pay depends on the value of the property.Read more about council Tax in our glossary page.
- Band: TBC
- PARKINGDetails of how and where vehicles can be parked, and any associated costs.Read more about parking in our glossary page.
- Yes
- GARDENA property has access to an outdoor space, which could be private or shared.
- Ask agent
- ACCESSIBILITYHow a property has been adapted to meet the needs of vulnerable or disabled individuals.Read more about accessibility in our glossary page.
- Ask agent
Energy performance certificate - ask agent
Connaught Road, Brookwood, Woking, Surrey, GU24
Add an important place to see how long it'd take to get there from our property listings.
__mins driving to your place
Get an instant, personalised result:
- Show sellers you’re serious
- Secure viewings faster with agents
- No impact on your credit score
Your mortgage
Notes
Staying secure when looking for property
Ensure you're up to date with our latest advice on how to avoid fraud or scams when looking for property online.
Visit our security centre to find out moreDisclaimer - Property reference LNH250611. The information displayed about this property comprises a property advertisement. Rightmove.co.uk makes no warranty as to the accuracy or completeness of the advertisement or any linked or associated information, and Rightmove has no control over the content. This property advertisement does not constitute property particulars. The information is provided and maintained by Seymours Estate Agents, Knaphill. Please contact the selling agent or developer directly to obtain any information which may be available under the terms of The Energy Performance of Buildings (Certificates and Inspections) (England and Wales) Regulations 2007 or the Home Report if in relation to a residential property in Scotland.
*This is the average speed from the provider with the fastest broadband package available at this postcode. The average speed displayed is based on the download speeds of at least 50% of customers at peak time (8pm to 10pm). Fibre/cable services at the postcode are subject to availability and may differ between properties within a postcode. Speeds can be affected by a range of technical and environmental factors. The speed at the property may be lower than that listed above. You can check the estimated speed and confirm availability to a property prior to purchasing on the broadband provider's website. Providers may increase charges. The information is provided and maintained by Decision Technologies Limited. **This is indicative only and based on a 2-person household with multiple devices and simultaneous usage. Broadband performance is affected by multiple factors including number of occupants and devices, simultaneous usage, router range etc. For more information speak to your broadband provider.
Map data ©OpenStreetMap contributors.






