
Wexford Close, Haydock, WA11

- PROPERTY TYPE
Town House
- BEDROOMS
4
- BATHROOMS
2
- SIZE
Ask agent
- TENUREDescribes how you own a property. There are different types of tenure - freehold, leasehold, and commonhold.Read more about tenure in our glossary page.
Freehold
Key features
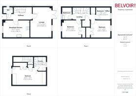
- Spacious four-bedroom end townhouse set across three well-planned floors
- Modern and neutrally decorated throughout – ready to move straight in
- Lounge with garden views and garden access
- Top-floor master suite with fitted wardrobes and private en-suite shower room
- Two further generous double bedrooms with built-in storage
- Versatile fourth bedroom
- Low-maintenance rear garden with patio, mature planting, and garden shed
- Resident parking
- Excellent location close to schools, local amenities, and public transport links
Description
An excellent opportunity to acquire this spacious and stylish four-bedroom end townhouse, ideally positioned in a quiet residential area in Haydock. Offering generous and versatile accommodation set across three well-planned floors, this home combines comfort, practicality, and modern family living.
Upon entering, a welcoming hallway leads to a convenient downstairs WC and a bright, well-proportioned reception room overlooking the rear garden. This inviting space provides direct access to a neatly paved garden—perfect for relaxing or entertaining—complete with mature shrubs, a useful storage shed, and residents’ parking to the rear. The modern breakfast kitchen is thoughtfully designed, featuring ample storage and space for dining.
The upper floors offer four versatile bedrooms, including a superb top-floor master suite with fitted wardrobes and a private en-suite shower room. Bedrooms two and three are generous doubles, each with built-in storage, while the fourth bedroom serves perfectly as a single room, nursery, or home office. A contemporary family bathroom with a three-piece suite completes the accommodation.
Ideally located, the property benefits from excellent transport links, highly regarded local schools, and a wide range of nearby amenities.
With its spacious layout, attractive outdoor space, and sought-after location, this is a wonderful family home not to be missed. Early viewing is strongly recommended to appreciate all that this property has to offer.
Tenure: Freehold,DISCLAIMER
IMPORTANT NOTICE: All descriptions, plans, dimensions, references to condition or suitability for use, necessary permissions for use and occupation and other details are given in good faith and are believed to be correct and any intending purchasers or lessees should not rely on them as statements of fact but must satisfy themselves by inspection or otherwise as to the correctness of each. Any electrical or other appliances on the property have not been tested, nor have the drains, heating, plumbing or electrical installations. All intending purchasers are recommended to carry out their own investigations before contract. These particulars are produced in good faith and set out as a general outline only for the guidance of intended purchasers or lessees, and do not constitute an offer or contract nor any part thereof.
- COUNCIL TAXA payment made to your local authority in order to pay for local services like schools, libraries, and refuse collection. The amount you pay depends on the value of the property.Read more about council Tax in our glossary page.
- Band: C
- PARKINGDetails of how and where vehicles can be parked, and any associated costs.Read more about parking in our glossary page.
- Yes
- GARDENA property has access to an outdoor space, which could be private or shared.
- Yes
- ACCESSIBILITYHow a property has been adapted to meet the needs of vulnerable or disabled individuals.Read more about accessibility in our glossary page.
- Ask agent
Energy performance certificate - ask agent
Wexford Close, Haydock, WA11
Add an important place to see how long it'd take to get there from our property listings.
__mins driving to your place
Get an instant, personalised result:
- Show sellers you’re serious
- Secure viewings faster with agents
- No impact on your credit score
Your mortgage
Notes
Staying secure when looking for property
Ensure you're up to date with our latest advice on how to avoid fraud or scams when looking for property online.
Visit our security centre to find out moreDisclaimer - Property reference P5332. The information displayed about this property comprises a property advertisement. Rightmove.co.uk makes no warranty as to the accuracy or completeness of the advertisement or any linked or associated information, and Rightmove has no control over the content. This property advertisement does not constitute property particulars. The information is provided and maintained by Belvoir, St Helens. Please contact the selling agent or developer directly to obtain any information which may be available under the terms of The Energy Performance of Buildings (Certificates and Inspections) (England and Wales) Regulations 2007 or the Home Report if in relation to a residential property in Scotland.
*This is the average speed from the provider with the fastest broadband package available at this postcode. The average speed displayed is based on the download speeds of at least 50% of customers at peak time (8pm to 10pm). Fibre/cable services at the postcode are subject to availability and may differ between properties within a postcode. Speeds can be affected by a range of technical and environmental factors. The speed at the property may be lower than that listed above. You can check the estimated speed and confirm availability to a property prior to purchasing on the broadband provider's website. Providers may increase charges. The information is provided and maintained by Decision Technologies Limited. **This is indicative only and based on a 2-person household with multiple devices and simultaneous usage. Broadband performance is affected by multiple factors including number of occupants and devices, simultaneous usage, router range etc. For more information speak to your broadband provider.
Map data ©OpenStreetMap contributors.





