
South Bellsdyke Farm, Larbert, FK2

- PROPERTY TYPE
Detached Villa
- BEDROOMS
4
- BATHROOMS
3
- SIZE
Ask agent
- TENUREDescribes how you own a property. There are different types of tenure - freehold, leasehold, and commonhold.Read more about tenure in our glossary page.
Freehold
Key features
- Impressive four bedroom detached villa in an exclusive development on the outskirts of Larbert
- Designed by the highly regarded local architects ARKA
- Contemporary architecture combining luxury and practicality suitable for modern day living
- Vaulted ceilings and Velux windows enhance the property’s natural light and sense of space
- Advanced energy efficient heating system with air source heat pump, under floor heating and UV panels
- Choice of high quality German designed kitchens and Porcelanosa tiling
- Sits on a substantial plot with large driveway and gardens
- Excellent location for motorway links, ideal for commuting
Description
An exceptional four-bedroom detached villa, finished to a luxurious standard and located within the exclusive South Bellsdyke Farm development, on the highly sought-after outskirts of Larbert. Designed by the highly regarded local architects ARKA, this impressive home combines striking contemporary architecture with practical family living, offering a refined modern lifestyle within a tranquil semi-rural setting.
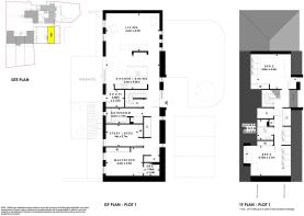
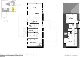
The accommodation is generously proportioned and thoughtfully arranged around a stunning open-plan lounge, kitchen and dining area, ideal for both everyday living and entertaining. A separate utility room provides additional convenience with direct access to the garden. The lower level also features two well-proportioned bedrooms, both benefiting from integrated storage, including a spacious principal bedroom with a stylish en-suite shower room. A contemporary family bathroom completes the ground floor accommodation.
The upper level offers two further double bedrooms, each with fitted wardrobes and skylight windows that allow an abundance of natural light. A modern shower room and ample storage space on the landing complete the internal layout.
Natural light is a defining feature throughout the property, with multiple skylight windows creating a bright and airy atmosphere across several rooms.
The home benefits from an advanced energy-efficient system, delivering significantly reduced heating and running costs. Heating is provided by state-of-the-art air source heat pumps, complemented by underfloor heating throughout the ground floor for enhanced comfort and efficiency. The property also benefits from UV Panels reducing electricity costs.
Internally, purchasers will have the opportunity to personalise their home with a selection of high-quality, designer German-manufactured kitchens. Luxurious Porcelanosa tiling features throughout key areas, offering both durability and contemporary style. Fibre optic broadband is installed directly to the property, ensuring fast and reliable connectivity suitable for home working and modern digital living.
Externally, the property showcases traditional stonework paired with elegant slate roofing and striking black uPVC windows, creating a distinctive yet sympathetic aesthetic that blends modern design with the charm of a traditional sandstone farmhouse. A large front driveway provides ample off-street parking. This particular plot benefits from an unusually generous rear garden, fully turfed and complemented by attractive terrace areas, ideal for outdoor entertaining or peaceful relaxation from day one.
Please note that visual staging has been carried out for this property, and the images are used for illustrative purposes only.
Expected completion date - July/August 2026.
A £2,000 reservation fee is payable to secure this plot. This outstanding new-build home offers a rare opportunity to acquire a property that seamlessly combines architectural excellence with sustainable, future-focused living. Early reservation is strongly recommended to take full advantage of kitchen choices and available upgrades.
- COUNCIL TAXA payment made to your local authority in order to pay for local services like schools, libraries, and refuse collection. The amount you pay depends on the value of the property.Read more about council Tax in our glossary page.
- Ask agent
- PARKINGDetails of how and where vehicles can be parked, and any associated costs.Read more about parking in our glossary page.
- Yes
- GARDENA property has access to an outdoor space, which could be private or shared.
- Yes
- ACCESSIBILITYHow a property has been adapted to meet the needs of vulnerable or disabled individuals.Read more about accessibility in our glossary page.
- Ask agent
Energy performance certificate - ask agent
South Bellsdyke Farm, Larbert, FK2
Add an important place to see how long it'd take to get there from our property listings.
__mins driving to your place
Affordability
Get an instant, personalised result:
- Show sellers you’re serious
- Secure viewings faster with agents
- No impact on your credit score
Notes
Staying secure when looking for property
Ensure you're up to date with our latest advice on how to avoid fraud or scams when looking for property online.
Visit our security centre to find out moreDisclaimer - Property reference 4f6c9be8-cb92-4ec9-ac68-b7274858c3f6. The information displayed about this property comprises a property advertisement. Rightmove.co.uk makes no warranty as to the accuracy or completeness of the advertisement or any linked or associated information, and Rightmove has no control over the content. This property advertisement does not constitute property particulars. The information is provided and maintained by Atrium Estate & Letting Agents, Polmont. Please contact the selling agent or developer directly to obtain any information which may be available under the terms of The Energy Performance of Buildings (Certificates and Inspections) (England and Wales) Regulations 2007 or the Home Report if in relation to a residential property in Scotland.
*This is the average speed from the provider with the fastest broadband package available at this postcode. The average speed displayed is based on the download speeds of at least 50% of customers at peak time (8pm to 10pm). Fibre/cable services at the postcode are subject to availability and may differ between properties within a postcode. Speeds can be affected by a range of technical and environmental factors. The speed at the property may be lower than that listed above. You can check the estimated speed and confirm availability to a property prior to purchasing on the broadband provider's website. Providers may increase charges. The information is provided and maintained by Decision Technologies Limited. **This is indicative only and based on a 2-person household with multiple devices and simultaneous usage. Broadband performance is affected by multiple factors including number of occupants and devices, simultaneous usage, router range etc. For more information speak to your broadband provider.
Map data ©OpenStreetMap contributors.





