
Plot 9 - Castle View, Alcester Road, Studley, B80 7PD

- PROPERTY TYPE
Barn
- BEDROOMS
3
- BATHROOMS
2
- SIZE
Ask agent
- TENUREDescribes how you own a property. There are different types of tenure - freehold, leasehold, and commonhold.Read more about tenure in our glossary page.
Freehold
Key features
- CASTLE VIEW BARNS IN THE HEART OF STUDLEY
- LUXURIOUS ELECTRONIC GATED DEVELOPMENT
- STEEL FRAME BARN WITH HIGH SPECIFICATION INTERIOR
- OPEN PLAN LIVING
- THREE BEDROOMS
- MASTER BEDROOM WITH EN-SUITE
- PRINCIPLE BATHROOM WITH PORCELANOSA TILING
- CONTEMPORARY ELEGANCE
- BLOCK PAVED OFF ROAD PARKING
- PRIVATE LANDCAPED GARDENS
Description
Step into a world where heritage meets modern living, welcome to Castle View Barns – An exclusive new development on the outskirts of Studley village, offering eight beautifully converted Victorian brick barns and eight contemporary steel frame barns. With characterful exteriors and thoughtfully designed interiors, these homes capture the perfect balance of timeless charm and contemporary elegance.
Plot Nine Highlight:-
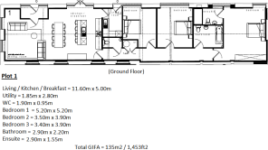
Plot nine is a two-storey, three-bedroom steel frame barn that perfectly showcases the quality of Castle View Barns. Its open-plan kitchen/diner design is flooded with natural light, featuring a sleek modern kitchen with quartz worktops, a blend of Hotpoint and Bosch appliances, and a cosey lounge. A separate utility room offers space for a washing machine and dryer, alongside a convenient guest WC. The master bedroom located to the ground floor enjoys a dressing areas and private ensuite shower room. Upstairs offers two double bedrooms and principle bathroom, the barn also benefits from an Ideal gas boiler with hot water storage tank, wall-mounted dual-zone heating controls, and a fitted security alarm.
Outside, Plot nine benefits from individual block-paved parking bays, private gardens with turfed lawns, planting, block-paved patios, and feather-edge fencing. Thoughtful extras include Listera industrial outdoor wall lighting, an external power outlet, an outdoor tap, and access to the development via a remote-controlled electric gate.
Studley provides the perfect backdrop – a village rich in history and community spirit. From the grandeur of Studley Castle to the ruins of Studley Priory, it’s a place where every corner tells a story. Nestled among rolling countryside and the River Arrow, life here blends country tranquillity with excellent connections to Stratford-upon-Avon, Warwick, and the Cotswolds.
Castle View Barns isn’t just a collection of homes, it’s a lifestyle. Warm yet luxurious, traditional yet innovative, every detail has been considered to create a living experience that feels truly unique. This is your opportunity to discover the unique character of Castle View Barns and secure a home unlike any other.
Call today to book your private site visit and be the first to experience these exceptional homes in the heart of Studley.
These particulars are for general guidance only and are based on information supplied and approved by the developer. Complete accuracy cannot be guaranteed and may be subject to errors and/or omissions. They do not constitute a contract or part of a contract in any way. We are not surveyors or conveyancing experts therefore we cannot and do not comment on the condition, issues relating to title or other legal issues that may affect this property. Interested parties should employ their own professionals to make enquiries before carrying out any transactional decisions. Photographs are provided for illustrative purposes only and the items shown in these are not necessarily included in the sale, unless specifically stated. We are not liable for any loss arising from the use of these details. Service Charge, EPC and Council Tax Band are all to be confirmed.
- COUNCIL TAXA payment made to your local authority in order to pay for local services like schools, libraries, and refuse collection. The amount you pay depends on the value of the property.Read more about council Tax in our glossary page.
- Ask agent
- PARKINGDetails of how and where vehicles can be parked, and any associated costs.Read more about parking in our glossary page.
- Driveway
- GARDENA property has access to an outdoor space, which could be private or shared.
- Private garden
- ACCESSIBILITYHow a property has been adapted to meet the needs of vulnerable or disabled individuals.Read more about accessibility in our glossary page.
- Ask agent
Energy performance certificate - ask agent
Plot 9 - Castle View, Alcester Road, Studley, B80 7PD
Add an important place to see how long it'd take to get there from our property listings.
__mins driving to your place
Get an instant, personalised result:
- Show sellers you’re serious
- Secure viewings faster with agents
- No impact on your credit score
About Homes by Victoria, Redditch
Office 29A, East Moons Moat Business Centre, Oxleasow Road, Redditch, B98 0RE

Your mortgage
Notes
Staying secure when looking for property
Ensure you're up to date with our latest advice on how to avoid fraud or scams when looking for property online.
Visit our security centre to find out moreDisclaimer - Property reference S1532622. The information displayed about this property comprises a property advertisement. Rightmove.co.uk makes no warranty as to the accuracy or completeness of the advertisement or any linked or associated information, and Rightmove has no control over the content. This property advertisement does not constitute property particulars. The information is provided and maintained by Homes by Victoria, Redditch. Please contact the selling agent or developer directly to obtain any information which may be available under the terms of The Energy Performance of Buildings (Certificates and Inspections) (England and Wales) Regulations 2007 or the Home Report if in relation to a residential property in Scotland.
*This is the average speed from the provider with the fastest broadband package available at this postcode. The average speed displayed is based on the download speeds of at least 50% of customers at peak time (8pm to 10pm). Fibre/cable services at the postcode are subject to availability and may differ between properties within a postcode. Speeds can be affected by a range of technical and environmental factors. The speed at the property may be lower than that listed above. You can check the estimated speed and confirm availability to a property prior to purchasing on the broadband provider's website. Providers may increase charges. The information is provided and maintained by Decision Technologies Limited. **This is indicative only and based on a 2-person household with multiple devices and simultaneous usage. Broadband performance is affected by multiple factors including number of occupants and devices, simultaneous usage, router range etc. For more information speak to your broadband provider.
Map data ©OpenStreetMap contributors.





