
3 bedroom semi-detached house for sale
Langdon Road, Leckhampton, Cheltenham, GL53

- PROPERTY TYPE
Semi-Detached
- BEDROOMS
3
- BATHROOMS
2
- SIZE
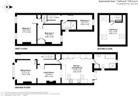
1,349 sq ft
125 sq m
- TENUREDescribes how you own a property. There are different types of tenure - freehold, leasehold, and commonhold.Read more about tenure in our glossary page.
Freehold
Key features
- Recessed porch & entrance hall
- bay fronted siting room
- further reception room with wood burner
- extended kitchen/dining room
- large bathroom with shower enclosure & second shower room
- three well-proportioned bedrooms & generous loft room
- c. 40ft rear garden with side access
- The High School Leckhampton catchment
- short walk to Bath Road shops & cafes
- gas central heating & council tax band D
Description
This stylish and well-presented three-bedroom semi-detached house has been extended to offer spacious and versatile accommodation arranged over three floors. The ground floor comprises an inviting entrance hall with stairs rising to the first floor, a bay-fronted sitting room at the front, a second cosy reception room featuring a wood burner, while at the rear a bright and spacious extended kitchen/dining room is equipped with a comprehensive range of units and integrated appliances. Roof lights enhance the sense of space and natural light, while there is ample room for a dining table and chairs. Double doors open directly onto the rear garden, creating an ideal space for modern family living. A large bathroom with a separate shower enclosure completes the ground floor. On the first floor there are two double bedrooms, a further single bedroom and a modern family shower room. From the landing, stairs lead to the second floor where a generous loft room enjoys far-reaching views towards the surrounding hills. Externally, the property benefits from a neatly maintained rear garden measuring approximately 40ft, with the added advantage of a fully insulated shed with electric supply and useful side access.
Freehold
Langdon Road is a sought-after road within Leckhampton comprising Victorian town houses, conveniently situated moments from the Bath Road amenities which provide an excellent choice of shops, cafés, restaurants and bars. The property is also close to The Suffolks, often described as “The Notting Hill of Cheltenham”, renowned for its eclectic mix of restaurants, cafés, delis, antique shops, interior stores and independent boutiques, creating a vibrant and fashionable area of town. Cheltenham itself offers superb shopping with a wide range of high street retailers, specialist boutiques, cafés and restaurants. Education is particularly well catered for, with a selection of highly regarded schools nearby. The town also boasts excellent sporting facilities, including indoor and outdoor swimming pools, numerous golf courses and clubs for tennis, squash, hockey and croquet. Cheltenham is host to a variety of annual cultural festivals, including music, literature and jazz, and is internationally recognised for horse racing, highlighted by the renowned Cheltenham Gold Cup.
Brochures
Particulars- COUNCIL TAXA payment made to your local authority in order to pay for local services like schools, libraries, and refuse collection. The amount you pay depends on the value of the property.Read more about council Tax in our glossary page.
- Band: D
- PARKINGDetails of how and where vehicles can be parked, and any associated costs.Read more about parking in our glossary page.
- On street
- GARDENA property has access to an outdoor space, which could be private or shared.
- Yes
- ACCESSIBILITYHow a property has been adapted to meet the needs of vulnerable or disabled individuals.Read more about accessibility in our glossary page.
- Ask agent
Langdon Road, Leckhampton, Cheltenham, GL53
Add an important place to see how long it'd take to get there from our property listings.
__mins driving to your place
Get an instant, personalised result:
- Show sellers you’re serious
- Secure viewings faster with agents
- No impact on your credit score
Your mortgage
Notes
Staying secure when looking for property
Ensure you're up to date with our latest advice on how to avoid fraud or scams when looking for property online.
Visit our security centre to find out moreDisclaimer - Property reference CCN250466. The information displayed about this property comprises a property advertisement. Rightmove.co.uk makes no warranty as to the accuracy or completeness of the advertisement or any linked or associated information, and Rightmove has no control over the content. This property advertisement does not constitute property particulars. The information is provided and maintained by CJ Hole, Cheltenham. Please contact the selling agent or developer directly to obtain any information which may be available under the terms of The Energy Performance of Buildings (Certificates and Inspections) (England and Wales) Regulations 2007 or the Home Report if in relation to a residential property in Scotland.
*This is the average speed from the provider with the fastest broadband package available at this postcode. The average speed displayed is based on the download speeds of at least 50% of customers at peak time (8pm to 10pm). Fibre/cable services at the postcode are subject to availability and may differ between properties within a postcode. Speeds can be affected by a range of technical and environmental factors. The speed at the property may be lower than that listed above. You can check the estimated speed and confirm availability to a property prior to purchasing on the broadband provider's website. Providers may increase charges. The information is provided and maintained by Decision Technologies Limited. **This is indicative only and based on a 2-person household with multiple devices and simultaneous usage. Broadband performance is affected by multiple factors including number of occupants and devices, simultaneous usage, router range etc. For more information speak to your broadband provider.
Map data ©OpenStreetMap contributors.








