Crescent Gardens, Croydon, London, CR0

- PROPERTY TYPE
Apartment
- BEDROOMS
2
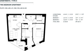
- SIZE
678 sq ft
63 sq m
Key features
- SPRINGBOARD INCENTIVE AVAILABLE*
- Shared Ownershp Apartment
- Perfect opportunity for first time buyers with exclusive incentives available
- Private outdoor space to most apartments
- Restaurants, bars, shops and live entertainment on your doorstep
- Just a 4 minute walk to East Croydon station
- Ready to move into now
- Inclusive specification and flooring throughout
- Fully fitted kitchen with integrated appliances
- Less than 20 mins 20 Central London and Gatwick Airport
Description
This offer is based on a rate of 5.5% with a 5% deposit on a 2 year fixed. Please speak with one of our dedicated Sales Consultants to find out more.
Crescent Gardens
£6,000 deposit contribution available when you reserve*
Shared Ownership - Price shown is indicative of a 25% share, based on the full market value £110,000
Located in the buzzing London Borough of Croydon, Crescent Gardens offers a stunning collection of new two bedroom homes, available with shared ownership. Within easy commuting distance of central London, and close to the beautiful countryside of Surrey and Kent. Crescent Gardens is the perfect place for first-time buyers.
Being built to the highest standards and beautifully designed, Crescent Gardens offers everything you need for contemporary living. With the homes featuring a fully fitted kitchen, integrated appliances and open plan living, Crescent Gardens is the ideal opportunity to get onto the property ladder with shared ownership.
Ideally located in one of London's most happening boroughs, with an exciting energy both day and night, whether it's indulging in some retail therapy, heading to a concert or enjoying the taste of a new cuisine, you'll always find something new to discover right on your doorstep.
Travel:
Walking -
East Croydon Station - 4 minutes*
Boxpark - 5 minutes*
Queen's Gardens - 11 minutes*
By Train -
Clapham Junction - 9 minutes*
London Victoria - 15 minutes*
London Bridge - 18 minutes*
*Times taken from tfl.gov.uk
To book your appointment, give us a call today
*speak to a sales consultant for further information
Brochures
Brochure 1- COUNCIL TAXA payment made to your local authority in order to pay for local services like schools, libraries, and refuse collection. The amount you pay depends on the value of the property.Read more about council Tax in our glossary page.
- Ask agent
- PARKINGDetails of how and where vehicles can be parked, and any associated costs.Read more about parking in our glossary page.
- Ask agent
- GARDENA property has access to an outdoor space, which could be private or shared.
- Yes
- ACCESSIBILITYHow a property has been adapted to meet the needs of vulnerable or disabled individuals.Read more about accessibility in our glossary page.
- Ask agent
Energy performance certificate - ask agent
Crescent Gardens, Croydon, London, CR0
Add an important place to see how long it'd take to get there from our property listings.
__mins driving to your place
Get an instant, personalised result:
- Show sellers you’re serious
- Secure viewings faster with agents
- No impact on your credit score
Affordability
Notes
Staying secure when looking for property
Ensure you're up to date with our latest advice on how to avoid fraud or scams when looking for property online.
Visit our security centre to find out moreDisclaimer - Property reference CrescentGardens_61Share. The information displayed about this property comprises a property advertisement. Rightmove.co.uk makes no warranty as to the accuracy or completeness of the advertisement or any linked or associated information, and Rightmove has no control over the content. This property advertisement does not constitute property particulars. The information is provided and maintained by Regenta, London. Please contact the selling agent or developer directly to obtain any information which may be available under the terms of The Energy Performance of Buildings (Certificates and Inspections) (England and Wales) Regulations 2007 or the Home Report if in relation to a residential property in Scotland.
*This is the average speed from the provider with the fastest broadband package available at this postcode. The average speed displayed is based on the download speeds of at least 50% of customers at peak time (8pm to 10pm). Fibre/cable services at the postcode are subject to availability and may differ between properties within a postcode. Speeds can be affected by a range of technical and environmental factors. The speed at the property may be lower than that listed above. You can check the estimated speed and confirm availability to a property prior to purchasing on the broadband provider's website. Providers may increase charges. The information is provided and maintained by Decision Technologies Limited. **This is indicative only and based on a 2-person household with multiple devices and simultaneous usage. Broadband performance is affected by multiple factors including number of occupants and devices, simultaneous usage, router range etc. For more information speak to your broadband provider.
Map data ©OpenStreetMap contributors.







