Ramsden View Road, Wickford
- PROPERTY TYPE
Plot
- BEDROOMS
3
- SIZE
Ask agent
Key features
- PLANNING APPROVED FOR A 3 BEDROOM BUNGALOW
- BUILDING PLOT
- DETACHED FAMILY HOME
- ENSUITE TO MASTER
- IDEA FOR SELF BUILD
- THREE BEDROOM
- OPEN PLAN LIVING
- OVER LOOKING FIELDS
- SEMI RURAL LOCATION
- BASILDON PLANNING FOR FURTHER INFORMATION - 25/01056/FULL
Description
An exceptional opportunity to acquire a planning-approved residential building plot, offered plot only, with full planning permission granted for the construction of a high-quality three-bedroom detached bungalow.
This attractive and well-positioned plot provides a rare chance for self-builders, downsizers or developers to deliver a modern single-storey home without the delays and uncertainty associated with securing planning consent. The approved scheme offers a carefully considered layout designed to suit contemporary living while retaining broad market appeal.
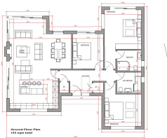
The planning permission allows for the construction of a spacious three-bedroom detached bungalow, arranged over a single level and extending to approximately 153 sq m (where applicable). The design focuses on practicality, accessibility and generous internal proportions.
-The approved accommodation comprises:
-A large open-plan kitchen, dining and living area, designed as the central hub of the home
-Three well-proportioned double bedrooms
-Principal bedroom with en-suite shower room
-Separate family bathroom
-Central hallway providing excellent circulation
-Two useful storage cupboards
-Direct access to the garden from the main living space
The layout has been designed to maximise natural light and provide a strong connection between internal living areas and the garden, making it ideal for both everyday living and entertaining.
Please contact the office for further information.
Brochures
Ramsden View Road, WickfordBrochureRamsden View Road, Wickford
NEAREST STATIONS
Distances are straight line measurements from the centre of the postcode- Wickford Station1.4 miles
- Basildon Station3.2 miles
- Pitsea Station3.3 miles
Notes
Disclaimer - Property reference 34386183. The information displayed about this property comprises a property advertisement. Rightmove.co.uk makes no warranty as to the accuracy or completeness of the advertisement or any linked or associated information, and Rightmove has no control over the content. This property advertisement does not constitute property particulars. The information is provided and maintained by Cowling & Payne, Wickford. Please contact the selling agent or developer directly to obtain any information which may be available under the terms of The Energy Performance of Buildings (Certificates and Inspections) (England and Wales) Regulations 2007 or the Home Report if in relation to a residential property in Scotland.
Map data ©OpenStreetMap contributors.





