Upper Crossgate Road, Redditch, Worcestershire, B98
- SIZE AVAILABLE
7,551 sq ft
702 sq m
- SECTOR
Light industrial facility to lease
- USE CLASSUse class orders: B2 General Industrial, B8 Storage and Distribution and Class E
B2, B8, E
Lease details
- Lease available date:
- Ask agent
- Lease type:
- Long term
Key features
- Leasehold
- Prominent Location
- Detached Building
- Yard Space
- Private Parking
- Available Immediately
Description
Rent: £70,000 PAX
Rateable Value: £39,500
Location
Park Farm is one of the town's premier industrial areas, with Crossgate Road positioned at its centre. The property sits approximately halfway between the Town Centre to the north and Studley to the south, offering excellent accessibility. Junctions 2 and 3 of the M42 are both reachable within a 10-minute drive.
Key Features
* Leasehold
* Prominent Location
* Detached Building
* Yard Space
* Private Parking
* Available Immediately
Property Description
Warehouse & Offices
The property comprises a warehouse with two-storey office accommodation and ancillary accommodation.
* The main warehouse extends to approximately 5,200 sq ft (483 sqm) and benefits from 2 access doors, of which one is dock loading.
* The warehouse offers 6m eaves height, full internal lighting, and gas blower heating.
Ground and First Floor Offices provide approximately 2,300 sq ft (213 sqm) with eparate Ladies' and Gents' works toilets and office toilets
Floor Areas
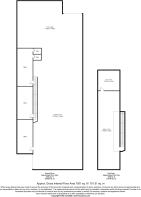
* Total Gross Internal Area (GIA): 7,551 sq ft
* Ground Floor GIA: 6,222 sq ft
* First Floor GIA: 1,329 sq ft
External Areas
Externally, the property benefits from a hard-surfaced, fenced and gated yard, complete with two double entrance gates and private parking.
Viewing
Strictly by appointment only via our Office on 0121-681-6327
Services
All mains services are connected.
Legal Fees
Each party to bear their own fees.
Tenure Leasehold
Accommodation
Name/Floor Sq Ft Sq M
Ground. 6,222 578.25
1st 1,329 123.51
Total 7,551 701.76
Brochures
Upper Crossgate Road, Redditch, Worcestershire, B98
NEAREST STATIONS
Distances are straight line measurements from the centre of the postcode- Redditch Station1.9 miles
- Danzey Station4.6 miles
- Alvechurch Station4.6 miles
Notes
Disclaimer - Property reference UCG8. The information displayed about this property comprises a property advertisement. Rightmove.co.uk makes no warranty as to the accuracy or completeness of the advertisement or any linked or associated information, and Rightmove has no control over the content. This property advertisement does not constitute property particulars. The information is provided and maintained by MECS Commercial, Birmingham. Please contact the selling agent or developer directly to obtain any information which may be available under the terms of The Energy Performance of Buildings (Certificates and Inspections) (England and Wales) Regulations 2007 or the Home Report if in relation to a residential property in Scotland.
Map data ©OpenStreetMap contributors.





