5 bedroom detached house for sale
Colwick Loop Road, Burton Joyce, Nottingham, Nottinghamshire, NG14 5LH

- PROPERTY TYPE
Detached
- BEDROOMS
5
- SIZE
Ask developer
- TENUREDescribes how you own a property. There are different types of tenure - freehold, leasehold, and commonhold.Read more about tenure in our glossary page.
Freehold
Key features
- Bi-fold doors to the kitchen and living room
- Open plan kitchen/dining room leading to family room
- Upstairs gym
- Separate study
- En suite and dressing room to bedroom 1
- Downstairs WC and utility
- Handy storage space
- Energy efficient
Description
An impressive family home, the Heysham is a five-bedroom detached home that’s perfect for modern living. The stylish open-plan kitchen/dining room is ideal for spending time as a family and for entertaining guests. There’s also a bright living room, separate family room, study, downstairs WC and handy utility room. Upstairs there are five bedrooms - bedroom one with an en suite and dressing area - a large family-sized bathroom and two handy storage cupboards.
Additional Information
- Tenure: Freehold
- Council tax band: Not made available by local authority until post-occupation
Parking - Double Garage
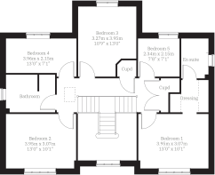
Room Dimensions
- Kitchen/Dining room - 7.32 x 3.9 metre
- Family room - 3.33 x 3.27 metre
- Living room - 5.39 x 3.9 metre
- Study - 3.9 x 1.78 metre
- Bedroom 1 - 3.95 x 3.07 metre
- Bedroom 2 - 3.95 x 3.07 metre
- Bedroom 3 - 3.95 x 3.27 metre
- Bedroom 4 - 3.96 x 2.15 metre
- Bedroom 5 - 2.34 x 2.15 metre
- COUNCIL TAXA payment made to your local authority in order to pay for local services like schools, libraries, and refuse collection. The amount you pay depends on the value of the property.Read more about council Tax in our glossary page.
- Ask developer
- PARKINGDetails of how and where vehicles can be parked, and any associated costs.Read more about parking in our glossary page.
- Yes
- GARDENA property has access to an outdoor space, which could be private or shared.
- Yes
- ACCESSIBILITYHow a property has been adapted to meet the needs of vulnerable or disabled individuals.Read more about accessibility in our glossary page.
- Ask developer
Energy performance certificate - ask developer
- Choice of 3, 4 and 5 bedroom homes
- Superb amenities nearby
- Close proximity to Nottingham
- Close to scenic country parks
Colwick Loop Road, Burton Joyce, Nottingham, Nottinghamshire, NG14 5LH
Add an important place to see how long it'd take to get there from our property listings.
__mins driving to your place
Get an instant, personalised result:
- Show sellers you’re serious
- Secure viewings faster with agents
- No impact on your credit score
About the development
About Charles Church Nottingham
Hallows Rise is our latest development of stunning 3, 4 and 5-bedroom new homes in the suburb of Stoke Bardolph, Burton Joyce, 5 miles from the heart of Nottingham.
Living at Hallows Rise you?ll benefit from Nottingham?s thriving centre just a short drive or bus ride away, with all the amenities you could need for everyday living on your doorstep.
Stoke Bardolph, Burton Joyce is a residential suburb with a good range of schools and shops. There?s a new school being provided with the development, an Aldi just across the road from Hallows Rise, and a retail park just a 10 minute walk away. The stunning lakes and marinas of Colwick Country Park are just a couple of miles away, as is the National Watersports Centre for a great day out, and for bustling nightlife, entertainment and shopping, Nottingham has everything you could want.
With local train stations and main roads providing routes into Leicester, Sheffield, Birmingham and Derby, this is a well-connected area and a great place to call home.
This development offers the following schemes:
- New Build Boost
- Part Exchange
- Deposit Boost
- Home Change
- Deposit Unlock
- Bank of Mum and Dad
- Armed Forces/Key Worker Discount
- Early Bird
- Own New Rate Reducer
Schemes are available on selected plots only, subject to status, terms and conditions apply. Contact the development for latest information.
Your mortgage
Notes
Staying secure when looking for property
Ensure you're up to date with our latest advice on how to avoid fraud or scams when looking for property online.
Visit our security centre to find out moreDisclaimer - Property reference 5_70. The information displayed about this property comprises a property advertisement. Rightmove.co.uk makes no warranty as to the accuracy or completeness of the advertisement or any linked or associated information, and Rightmove has no control over the content. This property advertisement does not constitute property particulars. The information is provided and maintained by Charles Church Nottingham. Please contact the selling agent or developer directly to obtain any information which may be available under the terms of The Energy Performance of Buildings (Certificates and Inspections) (England and Wales) Regulations 2007 or the Home Report if in relation to a residential property in Scotland.
*This is the average speed from the provider with the fastest broadband package available at this postcode. The average speed displayed is based on the download speeds of at least 50% of customers at peak time (8pm to 10pm). Fibre/cable services at the postcode are subject to availability and may differ between properties within a postcode. Speeds can be affected by a range of technical and environmental factors. The speed at the property may be lower than that listed above. You can check the estimated speed and confirm availability to a property prior to purchasing on the broadband provider's website. Providers may increase charges. The information is provided and maintained by Decision Technologies Limited. **This is indicative only and based on a 2-person household with multiple devices and simultaneous usage. Broadband performance is affected by multiple factors including number of occupants and devices, simultaneous usage, router range etc. For more information speak to your broadband provider.
Map data ©OpenStreetMap contributors.





