
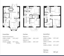
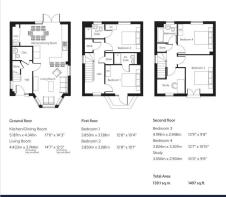
4 bedroom detached house for rent
Brigettine Square, Cambridge

Letting details
- Let available date:
- 09/02/2026
- Deposit:
- £3,692A deposit provides security for a landlord against damage, or unpaid rent by a tenant.Read more about deposit in our glossary page.
- Min. Tenancy:
- Ask agent How long the landlord offers to let the property for.Read more about tenancy length in our glossary page.
- Let type:
- Long term
- Furnish type:
- Part furnished
- Council Tax:
- Ask agent
- PROPERTY TYPE
Detached
- BEDROOMS
4
- BATHROOMS
3
- SIZE
Ask agent
Description
The nicely sized garden offers the ideal balance of space for relaxation, play, and entertaining, while the detached design ensures privacy. The property also features a private driveway with EV charging, offering both convenience and sustainability.
Built for modern living, this home combines energy efficiency, high-spec materials, and contemporary style—offering excellent access to local amenities, City Centre, A14 and M11. This property will be managed by RAH.
Council Tax Band: F
EPC Rating: B
Minimum 6 Month Tenancy
Deposit: £4030
Holding Deposit: £ 390
Parking - Private EV Parking, driveway
White Goods - Washing machine, Dishwasher, Oven, Microwave.
Utilities, Bills & Payments - All utilities to be arranged and paid for by Tenants, including but not limited to Council Tax, Broadband, Television and TV Licence.
Supply - Electricity Supply: Air source heat pump
Water Supply:Mains
Heating Supply: Air source heat pump & radiators
Sewerage Supply: Mains
Broadband - Fibre to premises broadband is available at the property, please refer to Ofcom to check for supply coverage and speeds.
Mobile Coverage - Mobile provider EE, Three, O2 and Vodafone are likely to have good coverage for voice and data. Please refer to Ofcom for guidance on mobile availability in the area.
Brochures
Brigettine Square, CambridgeBrochure- COUNCIL TAXA payment made to your local authority in order to pay for local services like schools, libraries, and refuse collection. The amount you pay depends on the value of the property.Read more about council Tax in our glossary page.
- Band: F
- PARKINGDetails of how and where vehicles can be parked, and any associated costs.Read more about parking in our glossary page.
- Driveway,EV charging
- GARDENA property has access to an outdoor space, which could be private or shared.
- Yes
- ACCESSIBILITYHow a property has been adapted to meet the needs of vulnerable or disabled individuals.Read more about accessibility in our glossary page.
- Ask agent
Brigettine Square, Cambridge
Add an important place to see how long it'd take to get there from our property listings.
__mins driving to your place
Notes
Staying secure when looking for property
Ensure you're up to date with our latest advice on how to avoid fraud or scams when looking for property online.
Visit our security centre to find out moreDisclaimer - Property reference 34387339. The information displayed about this property comprises a property advertisement. Rightmove.co.uk makes no warranty as to the accuracy or completeness of the advertisement or any linked or associated information, and Rightmove has no control over the content. This property advertisement does not constitute property particulars. The information is provided and maintained by Redmayne Arnold & Harris, Cambridge. Please contact the selling agent or developer directly to obtain any information which may be available under the terms of The Energy Performance of Buildings (Certificates and Inspections) (England and Wales) Regulations 2007 or the Home Report if in relation to a residential property in Scotland.
*This is the average speed from the provider with the fastest broadband package available at this postcode. The average speed displayed is based on the download speeds of at least 50% of customers at peak time (8pm to 10pm). Fibre/cable services at the postcode are subject to availability and may differ between properties within a postcode. Speeds can be affected by a range of technical and environmental factors. The speed at the property may be lower than that listed above. You can check the estimated speed and confirm availability to a property prior to purchasing on the broadband provider's website. Providers may increase charges. The information is provided and maintained by Decision Technologies Limited. **This is indicative only and based on a 2-person household with multiple devices and simultaneous usage. Broadband performance is affected by multiple factors including number of occupants and devices, simultaneous usage, router range etc. For more information speak to your broadband provider.
Map data ©OpenStreetMap contributors.





