Office for sale
North Street, Daventry, Northamptonshire, NN11
- SIZE AVAILABLE
3,939 sq ft
366 sq m
- SECTOR
Office for sale
Key features
- Prominent Position in the Town
- Located Between Junction 16 and 18 of the M1
- Development Potential STPP
- NIA - 3,939 sq.ft (365.94 sq. m.)
- Guide Price - £375,000
Description
Location
Daventry is in West Northamptonshire, 14 miles west of Northampton and 12 miles south of Rugby. It is easily accessible to the A5 providing direct access to Milton Keynes and Rugby and is located between Junction 16 and 18 of the M1. The property is situated in a prominent position in the town, immediately north of the High Street and overlooks the newly constructed Arc Cinema and restaurant.
Description
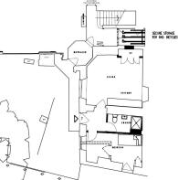
The property stands as a striking and historic office building, that was built from a legacy by Bishop Nathaniel Crewe. Rich in character it showcases a host of charming and distinctive features throughout including a ‘peephole window’, exposed timber beams, feature fireplaces, and high ceilings. This iconic building offers a rare opportunity to acquire one of the town’s most recognisable buildings. Over the years, Bishop Crewe House has been used for a wide variety of uses including, as a museum, town council offices, and most recently as serviced offices with a tattooist on the ground floor. The versatility and layout makes the building well-suited to a range of future uses including the conversion to 7 apartments STPP as per the proposed floor plans. To the front there is a good size car parking area providing space for approximately 5 cars.
Accommodation
The property has been measured on a Net Internal Area and provides approximately 3,939 sq. ft. (365.94 sq. m.) over three floors, disregarding the cellar.
Terms
The freehold is available to buy with a guide price of £375,000
Tenancies
Part of the ground floor is let to Nevermore Tattoo Parlour on a 10-year lease from June 2019 with a passing rent of £995 per calendar month (£11,940 per annum).
Business Rates
The property has 8 different assessments. Please contact the agent for further information. Interested parties should check with the local authority regarding the amount payable.
Planning & Development
The property currently has consent within Use Class 'E'. No planning investigations have been made to the local authority. The client has commissioned architectural drawings for the conversion to provide 7 apartments as seen by the proposed floor plans.
Services
We understand that all main services are connected to the property, but these have not been tested by the agent.
Legal Costs
Each party are to bear their own legal costs incurred during the transaction.
VAT
VAT is applicable to the purchase price and income.
EPC
An EPC has been comissioned and is available on request.
ID Checks
Upon terms being agreed the proposed purchaser will need to comply with Anti Money Laundering/Sanctions procedures in the form of ID checks.
Viewing Contact
Viewing is strictly by appointment with the sole agent: Samuel Jeyes , samuel.
Brochures
North Street, Daventry, Northamptonshire, NN11
NEAREST STATIONS
Distances are straight line measurements from the centre of the postcode- Long Buckby Station4.1 miles
Notes
Disclaimer - Property reference KRL250050. The information displayed about this property comprises a property advertisement. Rightmove.co.uk makes no warranty as to the accuracy or completeness of the advertisement or any linked or associated information, and Rightmove has no control over the content. This property advertisement does not constitute property particulars. The information is provided and maintained by Berrys Commercial, Kettering. Please contact the selling agent or developer directly to obtain any information which may be available under the terms of The Energy Performance of Buildings (Certificates and Inspections) (England and Wales) Regulations 2007 or the Home Report if in relation to a residential property in Scotland.
Map data ©OpenStreetMap contributors.






