
2 bedroom semi-detached house for sale
Portus Lane, Dunholme, Lincoln, Lincolnshire, LN2 3TA

- PROPERTY TYPE
Semi-Detached
- BEDROOMS
2
- BATHROOMS
1
- SIZE
645 sq ft
60 sq m
- TENUREDescribes how you own a property. There are different types of tenure - freehold, leasehold, and commonhold.Read more about tenure in our glossary page.
Freehold
Key features
- Ideal first home!
- Choice of kitchen units & square edge worktops
- Built-in stainless steel single fan oven, gas hob & extractor
- Choice of Porcelanosa tiling to bathroom & ensuite
- Energy efficient new home
- Shaver point to bathroom & en-suites
- Wiring for flat screen TV (HDMI) on the wall of the lounge
- Triple glazed UPVC windows & french doors
- Ground floor cloakroom with WC & hand basin
- 2 year Chestnut Homes & 10-year NHBC warranty
Description
This home also benefits from French doors leading onto the garden, complete with a driveway for two cars.
Stylish and low maintenance: The perfect home for your first step on the property ladder.
Each and every home at The Meadows enjoys a superb specification, with carefully considered and selected fixtures, fittings and finishes. The kitchen is the heart of the home, and we take special care to ensure it functions as beautifully as it looks. A space where you can create romantic meals, bake delicious cakes with your little ones, or lovingly prepare a Sunday roast for the entire family. Choose from contemporary or traditional styled cabinet doors, all featuring square-edged worktops. Sleek, built-in stainless-steel appliances complete your stunning kitchen, making every culinary moment special.
We dedicate a great deal of time and care into perfecting our bathrooms, so you can enjoy a long, soak in the bath or a refreshing hot shower to unwind after a challenging day. To help you personalise your dream bathroom or en-suite, we offer a wide range of stunning Porcelanosa tiles from Spain. Whether your heart leans towards bright, crisp whites or dark, moody ambiances, we have the perfect tiles to complement your taste and the contemporary sanitary ware.
Keeping energy efficiency in mind, our new homes are also packed with energy-saving features to help you reduce your bills. These include zoned heating, high- spec triple glazed windows, PV solar panels, high efficiency boilers, energy-efficient lightbulbs, and high thermal value insulation throughout walls, floors and lofts. Additionally, all our homes undergo air-pressure testing to ensure they are airtight, keeping them warm and cosy.
Construction Features
Highly insulated cavity walls
Solar panels and inverter
Concrete tiled roof as per development schedule
Utility room/utility area*
Cloakroom with WC & hand basin*
10-year NHBC warranty
Boundary treatment (ask for details)
Comfort Features
EV car charging point*
Gas boiler/main pressure unvented hot water system*
Triple glazed UPVC windows
Triple glazed French doors*
Bifold doors*
Insulated loft
Insulated ground floor
Extract fan to bathroom
Extract fan to utility*
Extract fan to en-suite*
Extract fan to cloakroom*
Outside tap
Finishing Features
Emulsion to walls one colour per house "Chestnut Grey"
Satinwood white painted internal doors, architraves, skirtings and stairs (as applicable)
Premium vertical 5 panel interior doors with chrome handles
Choice of kitchen units & worktops from a range in sales centre
1½ bowl stainless steel inset sink to kitchen
Built in stainless steel single fan oven, hob & extractor*
Built in stainless steel double fan oven, hob & extractor*
Space for fridge*
Space for fridge/freezer*
Integrated fridge/freezer*
Integrated dishwasher*
Dishwasher space*
Tumble dryer and washing machine space to utility*
Plumbing for washing machine
White sanitary ware with chrome fittings
Thermostatic showers
Water saving taps
Choice of Porcelanosa wall tiles
Fitted wardrobe*
Smooth skimmed ceilings
Turfed or planted front garden to site plan (rear garden cleared & rotovated)
Paved patio area
Electrical Items
Shaver point*
USB/USC sockets
TV point, and BT point to lounge
Telephone point to hall*
Low energy light fittings to bathrooms & ensuites (where applicable)
Batten holder suitable for low energy bulbs fitted to kitchen/cloaks/utilities
Chrome sockets & switches to kitchen/kitchen diner/utility (where applicable)
Wiring only for outside light to front and rear door
Mains wired smoke detectors
Power & light to garage (as applicable)*
Security Features
Lockable window catches (not to fire escape windows)
Multi point locking system to external doors
Security alarm*
*Some specifications are only available in certain plots. Please speak to our Sales Advisors for details.
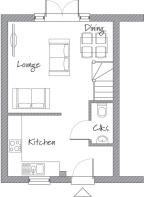
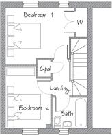
FLOOR PLANS
GROUND FLOOR
Kitchen 2.650m (max) x 4.491m (max) 14'8" (max) x 8'7" (max)
Lounge/Dining 4.491m (max) x 3.899m (max) 12'8" (max) x 14'8" (max)
Cloakroom 0.950m x 1.800m 3'1" x 5'10"
FIRST FLOOR
Bedroom 3.748m (max) x 3153m (max) 12'3" (max) x 10'4" (max)
Bedroom 2 3.397m (max) x 2.48m (max) 11'1" (max) x 8'0" (max)
Bathroom 1.960m x 1.700m 6'5" x 5'6"
All photos are for illustrative purposes
- COUNCIL TAXA payment made to your local authority in order to pay for local services like schools, libraries, and refuse collection. The amount you pay depends on the value of the property.Read more about council Tax in our glossary page.
- Ask developer
- PARKINGDetails of how and where vehicles can be parked, and any associated costs.Read more about parking in our glossary page.
- Driveway,EV charging
- GARDENA property has access to an outdoor space, which could be private or shared.
- Private garden,Patio,Enclosed garden,Back garden
- ACCESSIBILITYHow a property has been adapted to meet the needs of vulnerable or disabled individuals.Read more about accessibility in our glossary page.
- Ask developer
Energy performance certificate - ask developer
- Desirable Village Location
- Great Schools
- Less than 10 minutes from the centre of Lincoln
- Close to useful amenities
Portus Lane, Dunholme, Lincoln, Lincolnshire, LN2 3TA
Add an important place to see how long it'd take to get there from our property listings.
__mins driving to your place
Get an instant, personalised result:
- Show sellers you’re serious
- Secure viewings faster with agents
- No impact on your credit score
About Chestnut Homes
The Meadows is located in Dunholme, on the outskirts of Lincoln. The area boasts attractive green spaces, fascinating architecture and provides easy access to Lincoln city centre via the A46.
Combining contemporary design with a spacious layout, our homes at The Meadows provides residents with the high-quality standard which we have become renowned for.
Homebuyers on every stage of the property ladder will find something to suit their needs at The Meadows. The development comprises 2, 3 and 4-bedroom homes, perfect for first-time buyers, those looking to upgrade their family home, and downsizers alike.
Dunholme has a proud history which dates back to the reign of William the Conqueror and the Doomsday Book. During the Second World War the village housed a RAF Bomber Command Centre which has since closed down but the Grade I listed Church of St Chad, which dates back to the 12th century, still dominates the village skyline.
The area offers residents the best of both worlds, with the Lincolnshire countryside providing a peaceful setting while still being within a close proximity to Lincoln's vibrant city centre. So, if you're after a rural lifestyle but still want to be well-connected, then The Meadows may be the perfect place for you.
Your mortgage
Notes
Staying secure when looking for property
Ensure you're up to date with our latest advice on how to avoid fraud or scams when looking for property online.
Visit our security centre to find out moreDisclaimer - Property reference Plot162TheNookJanuary26. The information displayed about this property comprises a property advertisement. Rightmove.co.uk makes no warranty as to the accuracy or completeness of the advertisement or any linked or associated information, and Rightmove has no control over the content. This property advertisement does not constitute property particulars. The information is provided and maintained by Chestnut Homes. Please contact the selling agent or developer directly to obtain any information which may be available under the terms of The Energy Performance of Buildings (Certificates and Inspections) (England and Wales) Regulations 2007 or the Home Report if in relation to a residential property in Scotland.
*This is the average speed from the provider with the fastest broadband package available at this postcode. The average speed displayed is based on the download speeds of at least 50% of customers at peak time (8pm to 10pm). Fibre/cable services at the postcode are subject to availability and may differ between properties within a postcode. Speeds can be affected by a range of technical and environmental factors. The speed at the property may be lower than that listed above. You can check the estimated speed and confirm availability to a property prior to purchasing on the broadband provider's website. Providers may increase charges. The information is provided and maintained by Decision Technologies Limited. **This is indicative only and based on a 2-person household with multiple devices and simultaneous usage. Broadband performance is affected by multiple factors including number of occupants and devices, simultaneous usage, router range etc. For more information speak to your broadband provider.
Map data ©OpenStreetMap contributors.






