
4 bedroom terraced house for sale
Moorland Drive, Feniscowles, Blackburn, BB2 5DD

- PROPERTY TYPE
Terraced
- BEDROOMS
4
- SIZE
Ask developer
Key features
- £294,000 OMV- (40% share: £117,600)
- Service chare: £20.68 per month
- Rent: £404.25 (other shares are available dependent on affordability
- Four bedroom home
- Kitchen/diner with excellent living space
- Separate living room with patio doors onto the garden
- Master bedroom with en-suite
- Two additional double bedrooms and one single bedroom
- Award winning development
- Energy efficient home with solar panels as well as other energy saving features
Description
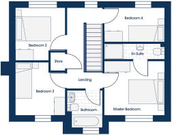
Step into the Forge 4 and you will find a spacious reception hall. Off the hall is the handy downstairs WC as well as the spacious kitchen/diner/living space with kitchen island as standard and patio doors leading to the turfed rear garden. There is also a family lounge to complete the ground floor.
Head up the stairs to the first floor where you will find the large master bedroom with en-suite. An additional double bedroom and two singles along with a well appointed family bathroom complete the accommodation to this family home.
What Is Shared Ownership?
Shared Ownership is a way for people who may not normally be able to afford to buy a property on the open market, to be able to purchase their ideal home in an affordable way. Whether it's your first step on to the property ladder, a purchase through a pension lump sum, a change in relationship status or your home simply does not fit your needs anymore.
Shared Ownership allows you to purchase a percentage share of your ideal home, and pay a reduced rent on the remaining shares, with the opportunity to buy more shares when you are in a position to do so.
* The share price stated is for illustration purpose to give an indication of the cost of purchase, cost of rent and service charge and not the minimum available for purchase. Other share prices are available dependent on individual affordability.
- COUNCIL TAXA payment made to your local authority in order to pay for local services like schools, libraries, and refuse collection. The amount you pay depends on the value of the property.Read more about council Tax in our glossary page.
- Ask developer
- PARKINGDetails of how and where vehicles can be parked, and any associated costs.Read more about parking in our glossary page.
- Driveway
- GARDENA property has access to an outdoor space, which could be private or shared.
- Back garden
- ACCESSIBILITYHow a property has been adapted to meet the needs of vulnerable or disabled individuals.Read more about accessibility in our glossary page.
- Ask developer
Energy performance certificate - ask developer
- A new community of barn inspired homes
- Beautifully designed and generously appointed new homes
- Set around two interlinking village greens
- Views across rolling countryside
Moorland Drive, Feniscowles, Blackburn, BB2 5DD
Add an important place to see how long it'd take to get there from our property listings.
__mins driving to your place
Get an instant, personalised result:
- Show sellers you’re serious
- Secure viewings faster with agents
- No impact on your credit score
About Kingswood Homes
A new community of barn inspired homes set around two interlinking village greens, with views across rolling countryside.
Green Hills Blackburn takes its name from the unique location and the breath-taking views extending across Witton Park and the Leeds Liverpool Canal to Pleasington, Billinge, Tockholes and past Darwen Tower to the Lancashire coast.
Beautifully designed and generously appointed new homes offering attention to detail built to an excellent specification. Customise your floor plans with our innovative design-led concept of Shape Your Home.
Green Hills Blackburn is located on a beautiful Lancashire hillside with views to die for. Launching in 2017 Green Hills is now an award winning development built by the 5 star builder Kingswood Homes. Not only that but it is now home to a wonderful community.
Your mortgage
Notes
Staying secure when looking for property
Ensure you're up to date with our latest advice on how to avoid fraud or scams when looking for property online.
Visit our security centre to find out moreDisclaimer - Property reference FORGE4PLOT487-JAN26. The information displayed about this property comprises a property advertisement. Rightmove.co.uk makes no warranty as to the accuracy or completeness of the advertisement or any linked or associated information, and Rightmove has no control over the content. This property advertisement does not constitute property particulars. The information is provided and maintained by Kingswood Homes. Please contact the selling agent or developer directly to obtain any information which may be available under the terms of The Energy Performance of Buildings (Certificates and Inspections) (England and Wales) Regulations 2007 or the Home Report if in relation to a residential property in Scotland.
*This is the average speed from the provider with the fastest broadband package available at this postcode. The average speed displayed is based on the download speeds of at least 50% of customers at peak time (8pm to 10pm). Fibre/cable services at the postcode are subject to availability and may differ between properties within a postcode. Speeds can be affected by a range of technical and environmental factors. The speed at the property may be lower than that listed above. You can check the estimated speed and confirm availability to a property prior to purchasing on the broadband provider's website. Providers may increase charges. The information is provided and maintained by Decision Technologies Limited. **This is indicative only and based on a 2-person household with multiple devices and simultaneous usage. Broadband performance is affected by multiple factors including number of occupants and devices, simultaneous usage, router range etc. For more information speak to your broadband provider.
Map data ©OpenStreetMap contributors.






