
4 bedroom detached house for rent
Farnham Drive, Darlington, DL3

Letting details
- Let available date:
- 02/02/2026
- Deposit:
- £1,400A deposit provides security for a landlord against damage, or unpaid rent by a tenant.Read more about deposit in our glossary page.
- Min. Tenancy:
- 12 months How long the landlord offers to let the property for.Read more about tenancy length in our glossary page.
- Let type:
- Long term
- Furnish type:
- Unfurnished
- Council Tax:
- Ask agent
- PROPERTY TYPE
Detached
- BEDROOMS
4
- BATHROOMS
3
- SIZE
Ask agent
Key features
- Modern Four Bed Detached
- Immaculate Throughout
- Sunroom
- Off Street Parking For Several Vehicles
- Converted Garage Providing Extra Reception Room
- Energy Efficiency Rating: C
Description
Modern four bedroom detached family home available to let in the desirable Oakfield Lodge estate in Darlington close to cockerton village, supermarkets, and a 10 minute short drive to A1 North & Southbound making it perfect for a commuter. The property has so much to offer and in brief comprises:
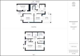
Spacious and welcoming entrance hallway,
Living Room,
Converted garage making a extra reception room which could be useful for a home office, childrens play room or quiet snug
Ground floor wc, Utility room, Dining room, Kitchen, Sunroom.
The first floor comprises: Master Bedroom with En-suite shower room, Three further bedrooms and a family bathroom.
Externally the home offers off street parking for two vehicles and a rear enclosed garden mainly laid to lawn also with patio area perfect for summer days.
Please call the office to arrange a viewing - Minimum income required for tenants: £40,500
EPC Rating: C
Hallway
17' 9'' x 3' 1'' (5.41m x 0.94m)
Reception Room
14' 11'' x 7' 10'' (4.54m x 2.39m)
Living Room
16' 3'' x 10' 10'' (4.95m x 3.30m)
Wc
2' 9'' x 4' 8'' (0.84m x 1.42m)
Dining Room
9' 8'' x 10' 10'' (2.94m x 3.30m)
Kitchen
10' 0'' x 12' 2'' (3.05m x 3.71m)
Sunroom
10' 9'' x 10' 7'' (3.27m x 3.22m)
Utility Room
5' 0'' x 4' 11'' (1.52m x 1.50m)
Landing
6' 4'' x 7' 2'' (1.93m x 2.18m)
Master Bedroom
15' 2'' x 10' 8'' (4.62m x 3.25m)
En-Suite
6' 11'' x 3' 9'' (2.11m x 1.14m)
Bedroom 2
11' 0'' x 8' 5'' (3.35m x 2.56m)
Bedroom 3
9' 0'' x 8' 5'' (2.74m x 2.56m)
Bedroom 4
7' 10'' x 8' 4'' (2.39m x 2.54m)
Bathroom
7' 10'' x 6' 1'' (2.39m x 1.85m)
Garden
Enclosed rear garden laid to lawn with patio seating area, front lawned garden and off street parking
- COUNCIL TAXA payment made to your local authority in order to pay for local services like schools, libraries, and refuse collection. The amount you pay depends on the value of the property.Read more about council Tax in our glossary page.
- Band: D
- PARKINGDetails of how and where vehicles can be parked, and any associated costs.Read more about parking in our glossary page.
- Yes
- GARDENA property has access to an outdoor space, which could be private or shared.
- Private garden
- ACCESSIBILITYHow a property has been adapted to meet the needs of vulnerable or disabled individuals.Read more about accessibility in our glossary page.
- Ask agent
Energy performance certificate - ask agent
Farnham Drive, Darlington, DL3
Add an important place to see how long it'd take to get there from our property listings.
__mins driving to your place
Notes
Staying secure when looking for property
Ensure you're up to date with our latest advice on how to avoid fraud or scams when looking for property online.
Visit our security centre to find out moreDisclaimer - Property reference 70d7c93a-b470-4a09-8c1b-9d826692246e. The information displayed about this property comprises a property advertisement. Rightmove.co.uk makes no warranty as to the accuracy or completeness of the advertisement or any linked or associated information, and Rightmove has no control over the content. This property advertisement does not constitute property particulars. The information is provided and maintained by Northgate Estate Agents & Property Management, Newton Aycliffe. Please contact the selling agent or developer directly to obtain any information which may be available under the terms of The Energy Performance of Buildings (Certificates and Inspections) (England and Wales) Regulations 2007 or the Home Report if in relation to a residential property in Scotland.
*This is the average speed from the provider with the fastest broadband package available at this postcode. The average speed displayed is based on the download speeds of at least 50% of customers at peak time (8pm to 10pm). Fibre/cable services at the postcode are subject to availability and may differ between properties within a postcode. Speeds can be affected by a range of technical and environmental factors. The speed at the property may be lower than that listed above. You can check the estimated speed and confirm availability to a property prior to purchasing on the broadband provider's website. Providers may increase charges. The information is provided and maintained by Decision Technologies Limited. **This is indicative only and based on a 2-person household with multiple devices and simultaneous usage. Broadband performance is affected by multiple factors including number of occupants and devices, simultaneous usage, router range etc. For more information speak to your broadband provider.
Map data ©OpenStreetMap contributors.





