2 bedroom terraced house for sale
31 Gallowhill Road, Lenzie, Glasgow, G66

- PROPERTY TYPE
Terraced
- BEDROOMS
2
- BATHROOMS
1
- SIZE
Ask agent
- TENUREDescribes how you own a property. There are different types of tenure - freehold, leasehold, and commonhold.Read more about tenure in our glossary page.
Freehold
Key features
- Mid Terrace Villa
- Two double bedrooms
- Driveway
- Floored attic space
Description
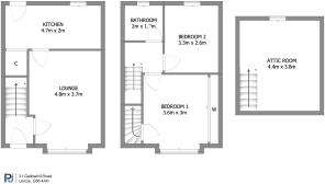
The front door opens into a hallway with stairs off to the upper level. The lounge is an attractive room at the front of the house with a box style bay window to the front allowing in plenty of light and making the best of the open outlook. The lounge is comfortably large enough to accommodate both lounge and dining furniture. The kitchen is at the back of the house and is equipped with a wide range of contemporary units. There is a door from the kitchen out to the gardens. On the first floor, there are two well-proportioned double bedrooms. The principal bedroom has the same box style bay window as the lounge below and enjoys the best of the views. A stylish fully-tiled bathroom, with over bath shower and vanity storage, completes the accommodation. There is also a fixed stair leading to a floored and lined loft space.
The property is set well back from the road on an elevated position. There us a driveway to the front of the house for off-street parking. The rear gardens have been thoughtfully landscaped in a low maintenance fashion and there is a large shed for additional storage.
The Energy Performance Rating is C.
- COUNCIL TAXA payment made to your local authority in order to pay for local services like schools, libraries, and refuse collection. The amount you pay depends on the value of the property.Read more about council Tax in our glossary page.
- Ask agent
- PARKINGDetails of how and where vehicles can be parked, and any associated costs.Read more about parking in our glossary page.
- Driveway
- GARDENA property has access to an outdoor space, which could be private or shared.
- Yes
- ACCESSIBILITYHow a property has been adapted to meet the needs of vulnerable or disabled individuals.Read more about accessibility in our glossary page.
- Ask agent
Energy performance certificate - ask agent
31 Gallowhill Road, Lenzie, Glasgow, G66
Add an important place to see how long it'd take to get there from our property listings.
__mins driving to your place
Get an instant, personalised result:
- Show sellers you’re serious
- Secure viewings faster with agents
- No impact on your credit score
Your mortgage
Notes
Staying secure when looking for property
Ensure you're up to date with our latest advice on how to avoid fraud or scams when looking for property online.
Visit our security centre to find out moreDisclaimer - Property reference 6c404d2a-7ee6-34f8-2e6f-6915dd722201. The information displayed about this property comprises a property advertisement. Rightmove.co.uk makes no warranty as to the accuracy or completeness of the advertisement or any linked or associated information, and Rightmove has no control over the content. This property advertisement does not constitute property particulars. The information is provided and maintained by Pacitti Jones, Lenzie. Please contact the selling agent or developer directly to obtain any information which may be available under the terms of The Energy Performance of Buildings (Certificates and Inspections) (England and Wales) Regulations 2007 or the Home Report if in relation to a residential property in Scotland.
*This is the average speed from the provider with the fastest broadband package available at this postcode. The average speed displayed is based on the download speeds of at least 50% of customers at peak time (8pm to 10pm). Fibre/cable services at the postcode are subject to availability and may differ between properties within a postcode. Speeds can be affected by a range of technical and environmental factors. The speed at the property may be lower than that listed above. You can check the estimated speed and confirm availability to a property prior to purchasing on the broadband provider's website. Providers may increase charges. The information is provided and maintained by Decision Technologies Limited. **This is indicative only and based on a 2-person household with multiple devices and simultaneous usage. Broadband performance is affected by multiple factors including number of occupants and devices, simultaneous usage, router range etc. For more information speak to your broadband provider.
Map data ©OpenStreetMap contributors.




