Prince Albert Street, Brighton

Letting details
- Let available date:
- 05/02/2026
- Deposit:
- £2,134A deposit provides security for a landlord against damage, or unpaid rent by a tenant.Read more about deposit in our glossary page.
- Min. Tenancy:
- Ask agent How long the landlord offers to let the property for.Read more about tenancy length in our glossary page.
- Let type:
- Long term
- Furnish type:
- Furnished or unfurnished, landlord is flexible
- Council Tax:
- Ask agent
- PROPERTY TYPE
Apartment
- BEDROOMS
2
- BATHROOMS
1
- SIZE
66 sq ft
6 sq m
Key features
- Available February
- Two Double Bedrooms
- Top Floor Flat
- Modern Finish Throughout
- Bathroom with Shower Attachment
- Fantastic Central South Laines Location
- Separate W.C
- Option to be Furnished
- Long Term Rental Available
- Video and Floor Plan Available
Description
Nestled in the vibrant heart of Brighton on Prince Albert Street, this luxurious top-floor apartment offers a modern living experience in a sought-after location. With two well-proportioned bedrooms, this new build property is designed to provide both comfort and style. The apartment boasts an integrated kitchen, perfect for those who enjoy cooking and entertaining, while the additional WC adds convenience for residents and guests alike.
Spanning an impressive 66 square feet, this flat is thoughtfully designed to maximise space and light, ensuring a welcoming atmosphere throughout. Ample storage solutions are available, making it easy to keep your living area tidy and organised.
For those with a vehicle, the property includes parking for one car, a valuable feature in this bustling seaside city. Whether you are a first-time buyer or looking to invest in a rental property, this apartment presents an excellent opportunity to enjoy contemporary living in Brighton.
With its prime location, modern amenities, and luxurious finishes, this two-bedroom flat is not to be missed. Experience the best of Brighton living in this exceptional new build.
*Disclaimer* In accordance with the estate agency act 1979 we advise that the landlord of this property has a connection with Stanfords Estates, for more information please contact our agency
*Disclaimer* Furniture available by request. Additional monthly rental costs may apply.
Video Link - YouTube Video Link:
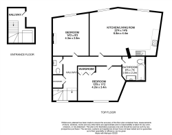
Description - ** Available NOW ** Stanfords are delighted to offer this luxurious top floor two double bedroom apartment, located within the prestigious South Laines of Brighton. Having been recently refurbished the property comprises open plan kitchen living room with appliances, two double bedrooms, bathroom, additional w.c and ample storage.
Kitchen / Living Room - 6.81m x 4.42m - Spacious open plan kitchen living room area comprising;
Kitchen area: Low and high level grey gloss units with integrated fridge/freezer, washer/dryer, dishwasher, stainless steel sink and bowl drainer. Electric hob with oven beneath, extractor fan above. Part tiled walls, ceiling downlighters.
Living room area: hard wood flooring, TV aerial point, north easterly facing sash windows, ceiling downlighters, radiator.
Bedroom - 4.19m x 3.4m - Double bedroom with carpet flooring, ceiling downlighters, double glazed south westerly aspect windows, built in wardrobe, radiator.
Bedroom - 4.32m x 2.79m - Double bedroom with carpet flooring, ceiling downlighters, north easterly aspect sash window, shelfing, radiator.
Bathroom - 2.57m x 2.24m - Modern fitted bathroom suite comprising; bath with overhead shower attachment, w.c with push button flush, hand wash basin with stainless steel mixer tap storage beneath mirror above. Tiled floor and wall, extractor fan, ceiling down lighters.
Wc - Separate w.c, hand wash basin with mixer tap mirrored unit above.
Storage - Storage cupboard within the hallway.
Other - NB. In accordance with the estate agency act 1979 we advise that the owner of this property has a connection with the letting agents.
Brochures
Prince Albert Street, BrightonBrochure- COUNCIL TAXA payment made to your local authority in order to pay for local services like schools, libraries, and refuse collection. The amount you pay depends on the value of the property.Read more about council Tax in our glossary page.
- Band: A
- PARKINGDetails of how and where vehicles can be parked, and any associated costs.Read more about parking in our glossary page.
- Yes
- GARDENA property has access to an outdoor space, which could be private or shared.
- Ask agent
- ACCESSIBILITYHow a property has been adapted to meet the needs of vulnerable or disabled individuals.Read more about accessibility in our glossary page.
- Ask agent
Prince Albert Street, Brighton
Add an important place to see how long it'd take to get there from our property listings.
__mins driving to your place
Notes
Staying secure when looking for property
Ensure you're up to date with our latest advice on how to avoid fraud or scams when looking for property online.
Visit our security centre to find out moreDisclaimer - Property reference 34389297. The information displayed about this property comprises a property advertisement. Rightmove.co.uk makes no warranty as to the accuracy or completeness of the advertisement or any linked or associated information, and Rightmove has no control over the content. This property advertisement does not constitute property particulars. The information is provided and maintained by Stanfords Estates, Brighton. Please contact the selling agent or developer directly to obtain any information which may be available under the terms of The Energy Performance of Buildings (Certificates and Inspections) (England and Wales) Regulations 2007 or the Home Report if in relation to a residential property in Scotland.
*This is the average speed from the provider with the fastest broadband package available at this postcode. The average speed displayed is based on the download speeds of at least 50% of customers at peak time (8pm to 10pm). Fibre/cable services at the postcode are subject to availability and may differ between properties within a postcode. Speeds can be affected by a range of technical and environmental factors. The speed at the property may be lower than that listed above. You can check the estimated speed and confirm availability to a property prior to purchasing on the broadband provider's website. Providers may increase charges. The information is provided and maintained by Decision Technologies Limited. **This is indicative only and based on a 2-person household with multiple devices and simultaneous usage. Broadband performance is affected by multiple factors including number of occupants and devices, simultaneous usage, router range etc. For more information speak to your broadband provider.
Map data ©OpenStreetMap contributors.




