
55 Newington Street, Carntyne, Glasgow, G32

- PROPERTY TYPE
Semi-Detached
- BEDROOMS
2
- BATHROOMS
1
- SIZE
Ask agent
- TENUREDescribes how you own a property. There are different types of tenure - freehold, leasehold, and commonhold.Read more about tenure in our glossary page.
Ask agent
Key features
- Outstanding semi-detached villa
- Significantly improved and in walk-in condition
- Kitchen re-fitted 2024
- Contemporary bathroom
- Gas central heating and double glazing
- 2 large double bedrooms
- Pleasant open views to front
- Substantial corner garden plot
- Much sought after and established location
- Close to excellent amenities, road and rail links
Description
The interior has been thoughtfully improved in recent years, with notable enhancements including a contemporary kitchen installed in 2024 and a stylish ground-floor bathroom. Throughout the home there are quality floor coverings, tasteful décor, double glazing, and a gas-fired central heating system via an Ideal Logic combination boiler, ensuring comfort all year round.
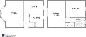
Accommodation begins with a welcoming entrance hallway, complete with staircase to the upper level. The front-facing lounge is a superb, light-filled space, enhanced by a bay window and offering ample room for relaxation. To the rear, the beautifully fitted kitchen features a range of base and wall-mounted units, an integrated oven and gas hob, and generous space for freestanding appliances. Completing the ground floor is a well-appointed three-piece bathroom.
On the upper level, there is a fitted linen cupboard and access to two exceptionally spacious double bedrooms, one of which benefits from fitted storage/wardrobe space.
Externally, the property enjoys expansive front, side, and rear gardens, predominantly laid to lawn and enclosed by a combination of privet hedging and timber fencing. The rear garden also features a large shed and a paved patio area, ideal for entertaining or alfresco dining. The size of the plot offers excellent potential for extension, subject to the usual relevant consents and permissions.
The property is located within an established neighbourhood and well located for schooling at both primary and secondary levels along with excellent day to day shops. There are many recreational pursuits close by, and major supermarkets can be found at the Forge Retail Park and shopping centre. Glasgow Fort has a range of high street stores, restaurants and a multiplex cinema and is located within a four-mile radius of the property. There are also excellent public transport links to the City Centre along with nearby road links giving easy access to the central belt motorway network system.
The Energy Performance rating for this property is Band D
- COUNCIL TAXA payment made to your local authority in order to pay for local services like schools, libraries, and refuse collection. The amount you pay depends on the value of the property.Read more about council Tax in our glossary page.
- Ask agent
- PARKINGDetails of how and where vehicles can be parked, and any associated costs.Read more about parking in our glossary page.
- On street
- GARDENA property has access to an outdoor space, which could be private or shared.
- Yes
- ACCESSIBILITYHow a property has been adapted to meet the needs of vulnerable or disabled individuals.Read more about accessibility in our glossary page.
- Ask agent
Energy performance certificate - ask agent
55 Newington Street, Carntyne, Glasgow, G32
Add an important place to see how long it'd take to get there from our property listings.
__mins driving to your place
Get an instant, personalised result:
- Show sellers you’re serious
- Secure viewings faster with agents
- No impact on your credit score
Your mortgage
Notes
Staying secure when looking for property
Ensure you're up to date with our latest advice on how to avoid fraud or scams when looking for property online.
Visit our security centre to find out moreDisclaimer - Property reference 9a249530-ad84-47e7-6511-6911afd5b714. The information displayed about this property comprises a property advertisement. Rightmove.co.uk makes no warranty as to the accuracy or completeness of the advertisement or any linked or associated information, and Rightmove has no control over the content. This property advertisement does not constitute property particulars. The information is provided and maintained by Pacitti Jones, Dennistoun. Please contact the selling agent or developer directly to obtain any information which may be available under the terms of The Energy Performance of Buildings (Certificates and Inspections) (England and Wales) Regulations 2007 or the Home Report if in relation to a residential property in Scotland.
*This is the average speed from the provider with the fastest broadband package available at this postcode. The average speed displayed is based on the download speeds of at least 50% of customers at peak time (8pm to 10pm). Fibre/cable services at the postcode are subject to availability and may differ between properties within a postcode. Speeds can be affected by a range of technical and environmental factors. The speed at the property may be lower than that listed above. You can check the estimated speed and confirm availability to a property prior to purchasing on the broadband provider's website. Providers may increase charges. The information is provided and maintained by Decision Technologies Limited. **This is indicative only and based on a 2-person household with multiple devices and simultaneous usage. Broadband performance is affected by multiple factors including number of occupants and devices, simultaneous usage, router range etc. For more information speak to your broadband provider.
Map data ©OpenStreetMap contributors.





