
3 bedroom town house for sale
Gosling Street, Macclesfield, SK10

- PROPERTY TYPE
Town House
- BEDROOMS
3
- BATHROOMS
2
- SIZE
Ask agent
- TENUREDescribes how you own a property. There are different types of tenure - freehold, leasehold, and commonhold.Read more about tenure in our glossary page.
Freehold
Key features
- Less than a 5 minute walk to town
- Spread over three floors
- Top-floor principal suite
- Open-plan kitchen and living
- West-facing courtyard garden
- Elevated outlook over Macclesfield
Description
Set within a popular residential pocket of Macclesfield, this well-presented home offers flexible accommodation arranged over three levels, a bright open-plan living space, and a well-designed principal suite with elevated views across town.
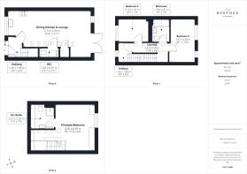
The ground floor centres around an open dining kitchen and lounge, with French doors opening onto a west-facing courtyard garden, making it a sociable and practical space for everyday living. To the first floor there are two bedrooms and a bathroom, while the second floor is dedicated to the principal suite, complete with its own landing, reading nook, en-suite, and far-reaching views.
Externally, the property enjoys a well-maintained courtyard garden with composite decking, pergola, and additional seating areas, creating a low maintenance yet inviting outdoor space. Located less than a five-minute walk from Macclesfield town centre, the property combines convenience with a quiet residential feel.
A home that balances space, layout, and location, well suited to a range of buyers.
EPC rating: B. Tenure: Freehold,Entrance Porch
Composite part-glazed front door opening into a welcoming porch with welcome matting, central heating radiator, pendant lighting, and access through to the main reception space and first floor.
Dining Kitchen & Lounge
A well-proportioned open-plan living space fitted with a range of contemporary units, one-and-a-half bowl sink and drainer, gas hob with extractor hood, and heat-resistant work surfaces. Space is provided for appliances, with double glazing to two aspects and French doors opening out to the courtyard garden. Finished with a combination of vinyl and laminate flooring, spot and pendant lighting, central heating radiators, and a large built-in storage cupboard. Enjoys elevated views across Macclesfield.
WC
Fitted with a low-level WC and wash hand basin, with central heating radiator and spot lighting.
First Floor Landing
Fitted carpets, pendant lighting, central heating radiator, and access to all bedrooms and the family bathroom.
Bedroom Two
A good-sized bedroom with fitted carpets, fitted furniture, twin UPVC double-glazed windows enjoying views over Macclesfield, central heating radiator, and pendant lighting.
Bedroom Three
Fitted carpets, UPVC double-glazed window, central heating radiator, and pendant lighting.
Principal Suite
Accessed via its own private landing area, featuring a UPVC double-glazed window and central heating radiator. Stairs lead up to a spacious bedroom with reading nook, laminate flooring, fitted wardrobes, multiple central heating radiators, pendant lighting, a UPVC double-glazed window with far-reaching views across Macclesfield, and an additional Velux window.
En-Suite
Fitted with an enclosed shower, wash hand basin, low-level WC, floor and wall tiling, towel radiator, spot lighting, and a Velux window.
Courtyard Garden
A well-maintained west-facing courtyard garden featuring composite decking with pergola, an additional patio seating area, and a pathway leading to the rear gate and shed area.
- COUNCIL TAXA payment made to your local authority in order to pay for local services like schools, libraries, and refuse collection. The amount you pay depends on the value of the property.Read more about council Tax in our glossary page.
- Band: D
- PARKINGDetails of how and where vehicles can be parked, and any associated costs.Read more about parking in our glossary page.
- EV charging
- GARDENA property has access to an outdoor space, which could be private or shared.
- Private garden
- ACCESSIBILITYHow a property has been adapted to meet the needs of vulnerable or disabled individuals.Read more about accessibility in our glossary page.
- Ask agent
Energy performance certificate - ask agent
Gosling Street, Macclesfield, SK10
Add an important place to see how long it'd take to get there from our property listings.
__mins driving to your place
Get an instant, personalised result:
- Show sellers you’re serious
- Secure viewings faster with agents
- No impact on your credit score
Your mortgage
Notes
Staying secure when looking for property
Ensure you're up to date with our latest advice on how to avoid fraud or scams when looking for property online.
Visit our security centre to find out moreDisclaimer - Property reference P2472. The information displayed about this property comprises a property advertisement. Rightmove.co.uk makes no warranty as to the accuracy or completeness of the advertisement or any linked or associated information, and Rightmove has no control over the content. This property advertisement does not constitute property particulars. The information is provided and maintained by BESPOKE, Macclesfield. Please contact the selling agent or developer directly to obtain any information which may be available under the terms of The Energy Performance of Buildings (Certificates and Inspections) (England and Wales) Regulations 2007 or the Home Report if in relation to a residential property in Scotland.
*This is the average speed from the provider with the fastest broadband package available at this postcode. The average speed displayed is based on the download speeds of at least 50% of customers at peak time (8pm to 10pm). Fibre/cable services at the postcode are subject to availability and may differ between properties within a postcode. Speeds can be affected by a range of technical and environmental factors. The speed at the property may be lower than that listed above. You can check the estimated speed and confirm availability to a property prior to purchasing on the broadband provider's website. Providers may increase charges. The information is provided and maintained by Decision Technologies Limited. **This is indicative only and based on a 2-person household with multiple devices and simultaneous usage. Broadband performance is affected by multiple factors including number of occupants and devices, simultaneous usage, router range etc. For more information speak to your broadband provider.
Map data ©OpenStreetMap contributors.








