3 bedroom terraced house for sale
North Street West, Uppingham, Rutland

- PROPERTY TYPE
Terraced
- BEDROOMS
3
- BATHROOMS
2
- SIZE
Ask agent
- TENUREDescribes how you own a property. There are different types of tenure - freehold, leasehold, and commonhold.Read more about tenure in our glossary page.
Freehold
Key features
- Charming Middle-terrace House
- Well Maintained, Scope for Further Updating
- 2 Reception Rooms
- Kitchen/Diner
- 3 Bedrooms
- 2 Bath/Shower Rooms
- Large, Mature Rear Garden
- Gas Central Heating, Double Glazing
- On-street Parking
- Tenure: Freehold. Energy Rating: D
Description
With gas central heating and double glazing throughout, this charming house has been well maintained by the present owners while still leaving scope for further updating. The interior is arranged over two storeys and can be summarised as follows:
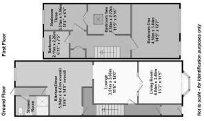
GROUND FLOOR: Entrance Lobby, Entrance Hall, Lounge, Living Room, Kitchen/Diner, Rear Lobby, Shower Room; FIRST FOOR: three Bedrooms, Bathroom.
Description - Middle-terrace house with large, mature gardens offering well-proportioned accommodation with 2 reception rooms, 3 bedrooms and 2 bath/shower rooms situated in an established residential area of Uppingham, within walking distance of the town centre and its amenities.
With gas central heating and double glazing throughout, this charming house has been well maintained by the present owners while still leaving scope for further updating.
The interior is arranged over two storeys and can be summarised as follows:
GROUND FLOOR: Entrance Lobby, Entrance Hall, Lounge, Living Room, Kitchen/Diner, Rear Lobby, Shower Room; FIRST FOOR: three Bedrooms, Bathroom.
Early viewing is highly recommended.
Accommodation -
Ground Floor -
Entrance Lobby - Main entrance door, internal door to Entrance Hall.
Entrance Hall - Radiator, stairs leading to first floor, door to Lounge.
Lounge - 3.51m x 3.66m (11'6" x 12'0" ) - Gas fire set on raised hearth with brick surround, glazed double doors with matching side panels opening to Living Room, archway to Kitchen/Diner.
Living Room - 4.04m x 3.48m (13'3" x 11'5") - Radiator, bay window to front.
Open-Plan Kitchen/Diner - 5.94m x 4.47m overall (19'6" x 14'8" overall) - comprising:
Kitchen Area - Range of base and wall-mounted units, inset sink with mixer tap, inset gas hob with extractor above, inset Neff gas hob with extractor above, integrated eye-level Neff double electric oven, built-in Neff dishwasher. Undercounter space and plumbing for washing machine, space for freestanding fridge-freezer.
Two radiators, tiled splashbacks, window overlooking rear garden, opening to Dining Area.
Dining Area - Door to large, walk-in Pantry, glazed transom door to Rear Lobby.
Rear Lobby - Space for coats, internal door to Shower Room, external door to rear garden.
Shower Room - Fitted with white low-level WC, wall-mounted hand basin and shower cubicle with tiled surround and Mira electric shower. Wall-mounted gas central heating boiler, radiator, window to rear.
First Floor -
Landing - Built-in double airing cupboard housing hot water cylinder and fitted shelving, radiator, access hatch to loft with drop-down ladder, light and Velux skylight.
Bedroom One - 4.50m x 3.84m (14'9" x 12'7") - Radiator, two windows to front.
Bedroom Two - 3.58m x 2.72m (11'9" x 8'11") - Built-in storage cupboard, radiator, Velux skylight with remote-controlled blind, glazed double doors to Bedroom Three.
Bedroom Three - 3.51m x 1.96m (11'6" x 6'5") - Door to Landing, radiator, window overlooking rear garden.
Bathroom - 2.11m x 2.26m (6'11" x 7'5") - White suite comprising low-level WC, wash hand basin and panelled bath with shower mixer above. Radiator, fully tiled splashbacks, window to rear.
Outside -
Gardens - To the front of the property there is a low-maintenance area of garden with low-level boundary, gravelled terrace with border and pathway leading to the front door.
To the rear lies an extensive and privately screened garden, a particular feature of this property. The garden is divided into two distinct areas with a hand gate separating the two and features pleasant seating areas, lawn, flowerbeds and borders stocked with an array of well established planting, productive fruit trees and bushes.
Within the gardens are 3 sheds (one with light and power connected), outside tap and a side door giving access to a private right of way through to North Street West.
Parking - On-street parking (resident's permit required).
Services - Mains electricity
Mains water supply
Mains sewerage
Gas central heating
According to
Broadband availability: Standard, Superfast, Ultrafast
Mobile signal availability:
EE - good outdoor, variable in-home
O2 - good outdoor
Three - good outdoor
Vodafone - good outdoor
Results are predictions and not a guarantee.
None of the services, fittings, or appliances (if any) heating installations, plumbing or electrical systems, telephone or television points have been tested by the Selling Agents.
Council Tax - Band C
Rutland County Council, Oakham 01572-722577
Independent Mortgage Advice - Murray, in conjunction with St. James's Place Wealth Management can offer free independent advice whether you buy through Murray Estate Agents or another agent. St. James's Place Wealth Management have access to over 13,000 mortgage products and are able to find the most competitive products from the whole market. Your home may be repossessed if you do not keep up repayments on your mortgage.
N.B. - Interested parties are advised to check with ourselves that these particulars have not been altered or amended in any way since they were issued.
Viewing - By appointment to be made through the Selling Agents please. If you are travelling a long distance please telephone prior to departure to ensure the property is still available and to discuss any particular points which are likely to affect your interest in this property in order that you do not make a wasted journey.
Office Opening Hours - Monday - Friday 9.00 - 5.30
Saturday 9.00 - 12.00
Disclaimer - 1. The particulars are intended to give a fair and substantially correct overall description for the guidance of intending purchasers and do not constitute, nor constitute part of, an offer or contract. No responsibility is assumed for the accuracy of individual items. Prospective purchasers and lessees ought to seek their own professional advice.
2. All descriptions, dimensions, area, reference to condition and necessary permission for use and occupation and their details are given in good faith and are believed to be correct, but any intending purchasers should not rely on them as statements or representations of fact, but must satisfy themselves by inspection, or otherwise as to the correctness of each of them.
3. No person in the employment of Messrs Murray has any authority to make or give any representations or warranty whatever in relation to this property or these particulars or enter into any contract relating to this property on behalf of the vendor.
4. No responsibility can be accepted for any expenses incurred by intending purchasers or lessees in inspecting properties which have been sold, let or withdrawn.
5. It should not be assumed that the property has all necessary planning, building regulation or other consents. Where any reference is made to planning permission or potential uses, such information is given in good faith.
6. The information in these particulars is given without responsibility on the part of the agents or their clients. These particulars do not form any part of an offer of a contract and neither the agents nor their employees has any authority to make or give any representations or warranty in relation to this property.
Money Laundering Regulations 2003
Anti-Money Laundering Regulations came into force in March 2004. These regulations affect estate agents, there will be requirement that Murray's confirm the identity of its seller and buyers.
Brochures
North Street West, Uppingham, RutlandBrochure- COUNCIL TAXA payment made to your local authority in order to pay for local services like schools, libraries, and refuse collection. The amount you pay depends on the value of the property.Read more about council Tax in our glossary page.
- Band: C
- PARKINGDetails of how and where vehicles can be parked, and any associated costs.Read more about parking in our glossary page.
- Permit
- GARDENA property has access to an outdoor space, which could be private or shared.
- Yes
- ACCESSIBILITYHow a property has been adapted to meet the needs of vulnerable or disabled individuals.Read more about accessibility in our glossary page.
- Ask agent
North Street West, Uppingham, Rutland
Add an important place to see how long it'd take to get there from our property listings.
__mins driving to your place
Get an instant, personalised result:
- Show sellers you’re serious
- Secure viewings faster with agents
- No impact on your credit score
About Murray Estate Agents & Chartered Surveyors., Uppingham
18 High Street East, Uppingham, Rutland, LE15 9PZ



Your mortgage
Notes
Staying secure when looking for property
Ensure you're up to date with our latest advice on how to avoid fraud or scams when looking for property online.
Visit our security centre to find out moreDisclaimer - Property reference 34390001. The information displayed about this property comprises a property advertisement. Rightmove.co.uk makes no warranty as to the accuracy or completeness of the advertisement or any linked or associated information, and Rightmove has no control over the content. This property advertisement does not constitute property particulars. The information is provided and maintained by Murray Estate Agents & Chartered Surveyors., Uppingham. Please contact the selling agent or developer directly to obtain any information which may be available under the terms of The Energy Performance of Buildings (Certificates and Inspections) (England and Wales) Regulations 2007 or the Home Report if in relation to a residential property in Scotland.
*This is the average speed from the provider with the fastest broadband package available at this postcode. The average speed displayed is based on the download speeds of at least 50% of customers at peak time (8pm to 10pm). Fibre/cable services at the postcode are subject to availability and may differ between properties within a postcode. Speeds can be affected by a range of technical and environmental factors. The speed at the property may be lower than that listed above. You can check the estimated speed and confirm availability to a property prior to purchasing on the broadband provider's website. Providers may increase charges. The information is provided and maintained by Decision Technologies Limited. **This is indicative only and based on a 2-person household with multiple devices and simultaneous usage. Broadband performance is affected by multiple factors including number of occupants and devices, simultaneous usage, router range etc. For more information speak to your broadband provider.
Map data ©OpenStreetMap contributors.




