
3 bedroom end of terrace house for sale
Blackbrook Road, St Helens, WA11

- PROPERTY TYPE
End of Terrace
- BEDROOMS
3
- BATHROOMS
1
- SIZE
Ask agent
Key features
- Three-bedroom end terrace house
- Offered for sale with no onward chain
- Spacious open-plan living and dining area
- Ground floor shower room
- Two double bedrooms and one single bedroom
- Convenient access to local shops and amenities
- Car port providing off-road parking
- Private rear yard / garden
Description
Offered for sale with no onward chain, this well-presented three-bedroom end-terrace property is located in the popular Blackbrook area of St Helens and would make an ideal purchase for a first-time buyer, growing family, or investor.
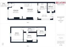
The ground floor offers a practical and versatile layout, briefly comprising a spacious living area, opening through to a dining space, and a fitted kitchen. A ground floor shower room completes the accommodation on this level, adding everyday convenience.
To the first floor, the property benefits from three bedrooms, including two doubles and one single, providing flexible accommodation suitable for family living, home working, or guest space.
Externally, the property enjoys a private rear yard/garden, ideal for outdoor seating or low-maintenance enjoyment. A car port provides off-road parking, a valuable feature for this style of property.
The home is well positioned for local amenities, with shops, supermarkets and everyday services nearby. A range of primary and secondary schools are within easy reach, making the location appealing for families.
Public transport links are easily accessible, with St Helens Central station offering regular services to Liverpool Lime Street and Wigan, while local bus routes serve Blackbrook and surrounding areas. Road connections via the A580 East Lancashire Road provide convenient access towards Liverpool and Manchester.
Surrounding parks and green spaces offer opportunities for leisure and recreation, with cafés, pubs and restaurants available in St Helens town centre.
EPC rating: D. Tenure: Leasehold,
DISCLAMIER
IMPORTANT NOTICE: All descriptions, plans, dimensions, references to condition or suitability for use, necessary permissions for use and occupation and other details are given in good faith and are believed to be correct and any intending purchasers or lessees should not rely on them as statements of fact but must satisfy themselves by inspection or otherwise as to the correctness of each. Any electrical or other appliances on the property have not been tested, nor have the drains, heating, plumbing or electrical installations. All intending purchasers are recommended to carry out their own investigations before contract. These particulars are produced in good faith and set out as a general outline only for the guidance of intended purchasers or lessees, and do not constitute an offer or contract nor any part thereof.
- COUNCIL TAXA payment made to your local authority in order to pay for local services like schools, libraries, and refuse collection. The amount you pay depends on the value of the property.Read more about council Tax in our glossary page.
- Band: A
- PARKINGDetails of how and where vehicles can be parked, and any associated costs.Read more about parking in our glossary page.
- Yes
- GARDENA property has access to an outdoor space, which could be private or shared.
- Private garden
- ACCESSIBILITYHow a property has been adapted to meet the needs of vulnerable or disabled individuals.Read more about accessibility in our glossary page.
- Ask agent
Energy performance certificate - ask agent
Blackbrook Road, St Helens, WA11
Add an important place to see how long it'd take to get there from our property listings.
__mins driving to your place
Get an instant, personalised result:
- Show sellers you’re serious
- Secure viewings faster with agents
- No impact on your credit score
Your mortgage
Notes
Staying secure when looking for property
Ensure you're up to date with our latest advice on how to avoid fraud or scams when looking for property online.
Visit our security centre to find out moreDisclaimer - Property reference P5505. The information displayed about this property comprises a property advertisement. Rightmove.co.uk makes no warranty as to the accuracy or completeness of the advertisement or any linked or associated information, and Rightmove has no control over the content. This property advertisement does not constitute property particulars. The information is provided and maintained by Belvoir, St Helens. Please contact the selling agent or developer directly to obtain any information which may be available under the terms of The Energy Performance of Buildings (Certificates and Inspections) (England and Wales) Regulations 2007 or the Home Report if in relation to a residential property in Scotland.
*This is the average speed from the provider with the fastest broadband package available at this postcode. The average speed displayed is based on the download speeds of at least 50% of customers at peak time (8pm to 10pm). Fibre/cable services at the postcode are subject to availability and may differ between properties within a postcode. Speeds can be affected by a range of technical and environmental factors. The speed at the property may be lower than that listed above. You can check the estimated speed and confirm availability to a property prior to purchasing on the broadband provider's website. Providers may increase charges. The information is provided and maintained by Decision Technologies Limited. **This is indicative only and based on a 2-person household with multiple devices and simultaneous usage. Broadband performance is affected by multiple factors including number of occupants and devices, simultaneous usage, router range etc. For more information speak to your broadband provider.
Map data ©OpenStreetMap contributors.





