
3 bedroom semi-detached house for sale
Southfields, Portchester

- PROPERTY TYPE
Semi-Detached
- BEDROOMS
3
- BATHROOMS
2
- SIZE
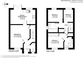
743 sq ft
69 sq m
- TENUREDescribes how you own a property. There are different types of tenure - freehold, leasehold, and commonhold.Read more about tenure in our glossary page.
Freehold
Key features
- Quiet development close to green open spaces.
- 1.4 miles from Portchester train station.
- 4 years remaining of NHBC warranty.
- Good sized Sitting Room.
- West facing garden.
- EPC Rating B (83)
Description
On entering, the adjacent Sitting Room is a generous space for the family and for entertaining with friends. The Kitchen/Breakfast Room is situated to the rear of the house and has been fitted with ample white cupboards and a range of appliances are included; there is also plenty of space for a dining table and double doors lead to the garden. A Cloakroom completes the ground floor. Upstairs are three bedrooms, two of which are doubles, Bedroom 1 benefits from an ensuite Shower Room and the contemporary Family Bathroom compliments the other bedrooms. A particular selling feature of the property is the larger than average west facing garden with a terrace for al fresco dining and an area of lawn with a sleeper shrub border. There is also a wooden gardeners shed and gated side access.
The property is ideally located for easy road and rail links with Portchester railway station a short drive away and access to the M27 two miles away. Portchester Precinct is just over a mile from Southfields and there is local schooling just round the corner. For those with a love of the sea Portchester is surrounded by beautiful lakes with lovely coastal walks and Portchester Sailing Club has easy access into Portsmouth Harbour. Port Solent Broadwalk Shopping Centre and Marina are just three miles down the road.
Nearby Fareham town offers plenty of restaurants and brasseries and there is also a large Tesco superstore. Fareham Creek is a local beauty spot providing lovely trail walks and is popular with kayakers and SUP enthusiasts. Additionally, Cams Hall Estate Golf Course has both 9 and 18 hole courses.
SUMMARY OF FEATURES:
4 years remaining of NHBC warranty; Ideal Logic combi boiler, serviced in 2025; Understairs storage cupboard; Kitchen appliances to include an Electrolux electric hob, oven and grill, Beko dishwasher, freestanding Logik fridge/freezer; Space for washing machine; Airing/storage cupboard on Landing; Fitted wardrobe cupboards and storage cupboard to Bedroom 1; Tarmac driveway for two cars; Loft space; Outside tap and lights.
GENERAL INFORMATION:
TENURE: Freehold; SERVICES: Mains gas, electricity, water and drainage; LOCAL AUTHORITY: Fareham Borough Council; TAX BAND: C
DISTANCES:
Wicor Primary School – 0.4 miles; Wicor Woodland – 0.3 miles; Portchester Community School – 1 mile; Portchester Precinct – 1.3 miles; Portchester Train Station – 1.4 miles; Portchester Castle – 1.6 miles; Port Solent – 2.9 miles
AGENTS NOTE:
Estate Charges £291.00 annually, paid six monthly to Remus Management Company. Estate charges include for gardening/landscaping, public liability insurance, estate cleaning, general repairs and maintenance, children’s play equipment, management company expenses, accountancy fees, treeworks and resurfacing of access roads.
Brochures
Brochure- COUNCIL TAXA payment made to your local authority in order to pay for local services like schools, libraries, and refuse collection. The amount you pay depends on the value of the property.Read more about council Tax in our glossary page.
- Band: C
- PARKINGDetails of how and where vehicles can be parked, and any associated costs.Read more about parking in our glossary page.
- Driveway
- GARDENA property has access to an outdoor space, which could be private or shared.
- Yes
- ACCESSIBILITYHow a property has been adapted to meet the needs of vulnerable or disabled individuals.Read more about accessibility in our glossary page.
- Ask agent
Southfields, Portchester
Add an important place to see how long it'd take to get there from our property listings.
__mins driving to your place
Get an instant, personalised result:
- Show sellers you’re serious
- Secure viewings faster with agents
- No impact on your credit score
Your mortgage
Notes
Staying secure when looking for property
Ensure you're up to date with our latest advice on how to avoid fraud or scams when looking for property online.
Visit our security centre to find out moreDisclaimer - Property reference 34390436. The information displayed about this property comprises a property advertisement. Rightmove.co.uk makes no warranty as to the accuracy or completeness of the advertisement or any linked or associated information, and Rightmove has no control over the content. This property advertisement does not constitute property particulars. The information is provided and maintained by Taylor Hill & Bond, Titchfield. Please contact the selling agent or developer directly to obtain any information which may be available under the terms of The Energy Performance of Buildings (Certificates and Inspections) (England and Wales) Regulations 2007 or the Home Report if in relation to a residential property in Scotland.
*This is the average speed from the provider with the fastest broadband package available at this postcode. The average speed displayed is based on the download speeds of at least 50% of customers at peak time (8pm to 10pm). Fibre/cable services at the postcode are subject to availability and may differ between properties within a postcode. Speeds can be affected by a range of technical and environmental factors. The speed at the property may be lower than that listed above. You can check the estimated speed and confirm availability to a property prior to purchasing on the broadband provider's website. Providers may increase charges. The information is provided and maintained by Decision Technologies Limited. **This is indicative only and based on a 2-person household with multiple devices and simultaneous usage. Broadband performance is affected by multiple factors including number of occupants and devices, simultaneous usage, router range etc. For more information speak to your broadband provider.
Map data ©OpenStreetMap contributors.





