York Close, Barton-le-Clay, Bedford, Bedfordshire, MK45

- PROPERTY TYPE
Semi-Detached
- BEDROOMS
2
- BATHROOMS
1
- SIZE
Ask agent
- TENUREDescribes how you own a property. There are different types of tenure - freehold, leasehold, and commonhold.Read more about tenure in our glossary page.
Freehold
Description
Tucked away within a quiet and highly sought-after cul-de-sac in Barton-le-Clay, this superbly presented home offers an exceptional blend of modern style, flexible living space, and a family-friendly location. Rarely available and thoughtfully extended, the property is perfectly suited to buyers seeking a turnkey home within a desirable schooling area and with excellent commuter connections close by.
Key Features
Extended semi-detached home in a popular cul-de-sac location
Two generous double bedrooms
Walk-in dressing room to the principal bedroom
Refitted kitchen and contemporary bathroom
Stylish lounge with bespoke media wall
Large enclosed rear garden
Versatile outbuilding ideal as a home office, gym or studio
Ample driveway parking
Sought-after location with excellent schooling and commuter links
The ground floor is designed with comfort and practicality in mind. An inviting entrance hall leads into a well-appointed kitchen, while the extended lounge provides a bright and elegant living space, centred around a striking media wall that creates a real focal point. A beautifully refitted bathroom completes the ground floor, finished to a high standard.
Upstairs, the accommodation continues to impress. The principal bedroom flows seamlessly into a walk-in dressing room, offering a sense of luxury and excellent storage, while the second double bedroom benefits from fitted wardrobes. Additional storage is provided via a fully boarded loft, enhancing the home’s practicality.
Outside, the property enjoys a generous enclosed rear garden, ideal for both entertaining and everyday enjoyment. A standout feature is the detached outbuilding, equipped with a wall-mounted air conditioning unit and a built-in utility area with hot and cold water, making it perfect for use as a home office, gym, or creative studio. To the front, ample driveway parking adds further convenience.
This is a rare opportunity to secure a beautifully enhanced and meticulously maintained home in one of Barton-le-Clay’s most desirable residential settings.
Viewing is highly recommended to fully appreciate the size and potential of this property.
Buyer Process: Our customers use British Homebuyers to either purchase or assist in selling properties quickly and reliably. Therefore any new applicants to purchase are subject to vetting to ensure they meet strict criteria.
Exclusivity Fee:
You can secure the purchase today by paying an exclusivity fee of £2,000 which gives you the rights to purchase within a given timeframe. The exclusivity fee is returned to you upon successful completion of the property.
A processing fee of £200 is required in order to draw up an exclusive legally binding contract between the buyer and seller. This gives the buyer exclusive rights to purchase within a pre-agreed timeframe.
Paying this fee ensures that the seller takes their property off the market and reserves it exclusively for you, therefore eliminating the risk of gazumping and aborted costs.
Disclaimer
The particulars are set out as a general outline only for the guidance of intended purchasers and do not constitute, any part of a contract. Nothing in these particulars shall be deemed to be a statement that the property is in good structural condition or otherwise nor that any of the services, appliances, equipment or facilities are in good working order. Purchasers should satisfy themselves of this prior to purchasing. The photograph(s) depict only certain parts of the property. It should not be assumed that any contents/furniture etc. photographed are included in the sale. It should not be assumed that the property remains as displayed in the photograph(s). No assumption should be made with regard to parts of the property that have not been photographed. Any areas, measurements, aspects or distances referred to are given as a GUIDE ONLY and are NOT precise. If such details are fundamental to a purchase, purchasers must rely on their own enquiries. Descriptions of the property are subjective and are used in good faith as an opinion and NOT as a statement of fact. Please make further inquiries to ensure that our descriptions are likely to match any expectations you may have.
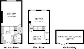
Sitting Room
5.14m x 4.01m
Kitchen
3.47m x 2.58m
Bathroom
1.63m x 1.5m
Bedroom 1
4.23m x 3.24m
Bedroom 2
3.48m x 2.62m
Outside Office / Studio
5.5m x 2.56m
- COUNCIL TAXA payment made to your local authority in order to pay for local services like schools, libraries, and refuse collection. The amount you pay depends on the value of the property.Read more about council Tax in our glossary page.
- Band: TBC
- PARKINGDetails of how and where vehicles can be parked, and any associated costs.Read more about parking in our glossary page.
- Yes
- GARDENA property has access to an outdoor space, which could be private or shared.
- Yes
- ACCESSIBILITYHow a property has been adapted to meet the needs of vulnerable or disabled individuals.Read more about accessibility in our glossary page.
- Ask agent
York Close, Barton-le-Clay, Bedford, Bedfordshire, MK45
Add an important place to see how long it'd take to get there from our property listings.
__mins driving to your place
Get an instant, personalised result:
- Show sellers you’re serious
- Secure viewings faster with agents
- No impact on your credit score
Your mortgage
Notes
Staying secure when looking for property
Ensure you're up to date with our latest advice on how to avoid fraud or scams when looking for property online.
Visit our security centre to find out moreDisclaimer - Property reference BHO260028. The information displayed about this property comprises a property advertisement. Rightmove.co.uk makes no warranty as to the accuracy or completeness of the advertisement or any linked or associated information, and Rightmove has no control over the content. This property advertisement does not constitute property particulars. The information is provided and maintained by British Homesellers, National. Please contact the selling agent or developer directly to obtain any information which may be available under the terms of The Energy Performance of Buildings (Certificates and Inspections) (England and Wales) Regulations 2007 or the Home Report if in relation to a residential property in Scotland.
*This is the average speed from the provider with the fastest broadband package available at this postcode. The average speed displayed is based on the download speeds of at least 50% of customers at peak time (8pm to 10pm). Fibre/cable services at the postcode are subject to availability and may differ between properties within a postcode. Speeds can be affected by a range of technical and environmental factors. The speed at the property may be lower than that listed above. You can check the estimated speed and confirm availability to a property prior to purchasing on the broadband provider's website. Providers may increase charges. The information is provided and maintained by Decision Technologies Limited. **This is indicative only and based on a 2-person household with multiple devices and simultaneous usage. Broadband performance is affected by multiple factors including number of occupants and devices, simultaneous usage, router range etc. For more information speak to your broadband provider.
Map data ©OpenStreetMap contributors.




