5 bedroom detached house for sale
Wilsthorpe Road, Breaston

- PROPERTY TYPE
Detached
- BEDROOMS
5
- BATHROOMS
3
- SIZE
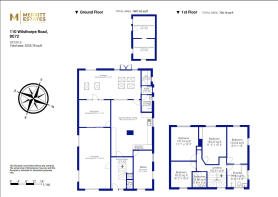
2,536 sq ft
236 sq m
- TENUREDescribes how you own a property. There are different types of tenure - freehold, leasehold, and commonhold.Read more about tenure in our glossary page.
Freehold
Key features
- Substantial Detached Family Home
- Five Bedrooms
- Three Reception Rooms
- Large Kitchen
- Ground Floor Shower Room
- South-Facing Garden
- Driveway Parking for Multiple Vehicles
- Solar Panels
- EPC Rating B
- Sought-After Breaston Village Location
Description
The property boasts an impressive EPC rating of B, making this a remarkably economical and energy-efficient home of its size.
From the front elevation alone, it is difficult to appreciate the true scale of the internal accommodation, along with the privacy and generous proportions of the rear garden.
Entry is via a stylish composite front door into a welcoming reception hall, featuring stairs with a modern chrome spindle balustrade leading to the first floor.
The ground floor offers outstanding living space, including an exceptionally large lounge/sitting room with sliding glazed doors opening into a second sitting room.
The spacious kitchen is fitted with an extensive range of wall and base units, with a separate study/home office or playroom located off the kitchen, which could also serve as a ground floor bedroom if required. To the rear of the property is a further impressive sitting/day room
extending across the width of the house, featuring glazed French doors opening onto the South-facing rear garden. Additional ground floor accommodation includes a utility room and a wet/shower room with WC.
To the first floor, the landing provides access to four well-proportioned bedrooms. One particularly large master with en- suite. The family bathroom is fully tiled and fitted with a shower over the bath. Loft access provides ample storage space.
Externally, the front of the property offers block-paved off-road parking for several vehicles, with gated side access leading to the south facing garden. The rear garden is a standout feature of this home, enjoying a high degree of privacy and meticulous maintenance.
A block-paved, walled patio spans the rear of the property with steps down to a lawned garden, leading to a further paved seating area, additional lawn, a vegetable garden, and a large brick-built outbuilding providing excellent storage with power and lighting or, alternatively, the opportunity to set up an office/ workshop.
The garden is enclosed by fencing, hedging, and natural screening, ensuring privacy throughout. CCTV is also installed throughout externally.
The property is constructed of brick elevations beneath a pitched tiled roof and benefits from gas central heating, double glazing, and a FIT solar panel system, delivering significant ongoing energy cost savings and generates quarterly income (Further information can be provided).
Situated in the ever-popular village of Breaston, ideally positioned between Nottingham and Derby, the location benefits from a wide range of local amenities, excellent transport links and a strong community feel, all of which combine to make this a highly desirable place to live. The area also benefits from scenic countryside walks.
Local schools include Firfield Primary School, Wilsthorpe School, The Long Eaton School and Friesland School.
Transport links are excellent, with Junction 25 of the M1 just five minutes away, rail services at Long Eaton, East Midlands Parkway and Derby, East Midlands Airport within easy reach, and the A52 providing convenient access to Nottingham, Derby and surrounding East Midlands towns and cities.
These sales particulars have been prepared by Merritt Estates and produced in good faith on the instruction of the vendor. All measurements should be regarded as approximate.
It is a mandatory requirement for a Sales Agent to be part of a redress scheme. Merritt Estates have membership with The Property Ombudsman (a government approved redress scheme).
Purchaser information - Under the Money Laundering, Terrorist Financing and Transfer of Funds Regulations 2017 and the Proceeds of Crime Act 2002, Merritt Estates will require any successful purchasers to provide two forms of identification before the instruction of solicitors in the purchase of a property.
Brochures
Parallel - 4-Page...- COUNCIL TAXA payment made to your local authority in order to pay for local services like schools, libraries, and refuse collection. The amount you pay depends on the value of the property.Read more about council Tax in our glossary page.
- Band: E
- PARKINGDetails of how and where vehicles can be parked, and any associated costs.Read more about parking in our glossary page.
- Off street
- GARDENA property has access to an outdoor space, which could be private or shared.
- Yes
- ACCESSIBILITYHow a property has been adapted to meet the needs of vulnerable or disabled individuals.Read more about accessibility in our glossary page.
- Ask agent
Wilsthorpe Road, Breaston
Add an important place to see how long it'd take to get there from our property listings.
__mins driving to your place
Get an instant, personalised result:
- Show sellers you’re serious
- Secure viewings faster with agents
- No impact on your credit score
Your mortgage
Notes
Staying secure when looking for property
Ensure you're up to date with our latest advice on how to avoid fraud or scams when looking for property online.
Visit our security centre to find out moreDisclaimer - Property reference 103657000428. The information displayed about this property comprises a property advertisement. Rightmove.co.uk makes no warranty as to the accuracy or completeness of the advertisement or any linked or associated information, and Rightmove has no control over the content. This property advertisement does not constitute property particulars. The information is provided and maintained by Merritt Estates, Nottingham. Please contact the selling agent or developer directly to obtain any information which may be available under the terms of The Energy Performance of Buildings (Certificates and Inspections) (England and Wales) Regulations 2007 or the Home Report if in relation to a residential property in Scotland.
*This is the average speed from the provider with the fastest broadband package available at this postcode. The average speed displayed is based on the download speeds of at least 50% of customers at peak time (8pm to 10pm). Fibre/cable services at the postcode are subject to availability and may differ between properties within a postcode. Speeds can be affected by a range of technical and environmental factors. The speed at the property may be lower than that listed above. You can check the estimated speed and confirm availability to a property prior to purchasing on the broadband provider's website. Providers may increase charges. The information is provided and maintained by Decision Technologies Limited. **This is indicative only and based on a 2-person household with multiple devices and simultaneous usage. Broadband performance is affected by multiple factors including number of occupants and devices, simultaneous usage, router range etc. For more information speak to your broadband provider.
Map data ©OpenStreetMap contributors.




