2 bedroom detached bungalow for sale
Church Meadows, Calow, Chesterfield

- PROPERTY TYPE
Detached Bungalow
- BEDROOMS
2
- BATHROOMS
1
- SIZE
Ask agent
- TENUREDescribes how you own a property. There are different types of tenure - freehold, leasehold, and commonhold.Read more about tenure in our glossary page.
Freehold
Key features
- Detached bunglalow in the popular area of Calow
- Good links to Chesterfield town, the hospital and train station
- Off street parking with car port
- Low maintenace rear garden area
- Side garden - ideal for further parking or veg plot etc
- 2 Double bedrooms
- Conservatory off the kitchen
- Generous lounge with dining room off it
- Modern shower room
- Offers in the region of £240,000, offered for sale with no chain
Description
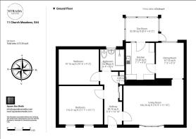
The property benefits from off-street parking along with the added practicality of a car port. To the rear is a low-maintenance, hard-landscaped garden designed for ease of upkeep rather than ongoing work, providing a clean, usable outdoor space with minimal effort required. There is a side plot which is lawned but could be used for additional parking, or vegetable plot etc.
Inside, the accommodation is well proportioned throughout. A generous lounge provides a comfortable main living area and flows naturally into the dining space, creating a layout that works well for both everyday living and entertaining. The kitchen is fitted with a range of cabinets and worktops, offering storage and preparation space, and leads directly into a conservatory that adds valuable extra living accommodation overlooking the rear garden and Church to the rear. There are two genuine double bedrooms, both offering good floor space and flexibility of use, alongside a modern shower room finished to a contemporary standard.
The property is freehold, falls within council tax band C, and is offered to the market empty with no onward chain.
Brochures
Church Meadows, Calow, Chesterfield- COUNCIL TAXA payment made to your local authority in order to pay for local services like schools, libraries, and refuse collection. The amount you pay depends on the value of the property.Read more about council Tax in our glossary page.
- Band: C
- PARKINGDetails of how and where vehicles can be parked, and any associated costs.Read more about parking in our glossary page.
- Off street
- GARDENA property has access to an outdoor space, which could be private or shared.
- Yes
- ACCESSIBILITYHow a property has been adapted to meet the needs of vulnerable or disabled individuals.Read more about accessibility in our glossary page.
- Level access
Energy performance certificate - ask agent
Church Meadows, Calow, Chesterfield
Add an important place to see how long it'd take to get there from our property listings.
__mins driving to your place
Get an instant, personalised result:
- Show sellers you’re serious
- Secure viewings faster with agents
- No impact on your credit score
Your mortgage
Notes
Staying secure when looking for property
Ensure you're up to date with our latest advice on how to avoid fraud or scams when looking for property online.
Visit our security centre to find out moreDisclaimer - Property reference 34390579. The information displayed about this property comprises a property advertisement. Rightmove.co.uk makes no warranty as to the accuracy or completeness of the advertisement or any linked or associated information, and Rightmove has no control over the content. This property advertisement does not constitute property particulars. The information is provided and maintained by Strada Estates, Chesterfield. Please contact the selling agent or developer directly to obtain any information which may be available under the terms of The Energy Performance of Buildings (Certificates and Inspections) (England and Wales) Regulations 2007 or the Home Report if in relation to a residential property in Scotland.
*This is the average speed from the provider with the fastest broadband package available at this postcode. The average speed displayed is based on the download speeds of at least 50% of customers at peak time (8pm to 10pm). Fibre/cable services at the postcode are subject to availability and may differ between properties within a postcode. Speeds can be affected by a range of technical and environmental factors. The speed at the property may be lower than that listed above. You can check the estimated speed and confirm availability to a property prior to purchasing on the broadband provider's website. Providers may increase charges. The information is provided and maintained by Decision Technologies Limited. **This is indicative only and based on a 2-person household with multiple devices and simultaneous usage. Broadband performance is affected by multiple factors including number of occupants and devices, simultaneous usage, router range etc. For more information speak to your broadband provider.
Map data ©OpenStreetMap contributors.




