4 bedroom detached house for sale
Primula Road, Bordon, Hampshire, GU35

- PROPERTY TYPE
Detached
- BEDROOMS
4
- BATHROOMS
2
- SIZE
Ask agent
- TENUREDescribes how you own a property. There are different types of tenure - freehold, leasehold, and commonhold.Read more about tenure in our glossary page.
Freehold
Key features
- entrance hall
- cloakroom
- living room
- dining room
- refitted kitchen / utility room
- master bedroom with ensuite shower room
- three further bedrooms
- family bathroom
- front garden & driveway / rear garden
- detached single & further driveway opposite property
Description
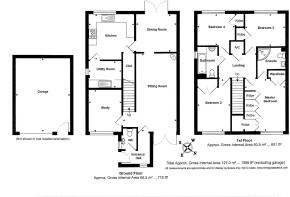
ACCOMMODATION (sizes are approximate and for guidance only)
uPVC double glazed entrance door to
ENTRANCE HALL radiator, uPVC double glazed window, door to
CLOAKROOM low-level wc, wall-mounted wash hand basin, radiator, uPVC double glazed window
LIVING ROOM 5.97m x 3.06m, fitted wood burner, stairs to landing, uPVC double glazed French doors to front, radiator
DINING ROOM 3.07m x 2.88m, radiator, uPVC double glazed French doors to rear garden
STUDY 3.19m x 2.48m, radiator, uPVC double glazed window
REFITTED KITCHEN 3.46m x 3.45m, single bowl sink unit, wall, base and drawer units with fitted work surfaces over, built-in five-ring gas hob with fitted extractor hood over, double oven, space and plumbing for dishwasher, built-in fridge, uPVC double glazed window, under-stairs storage cupboard
UTILITY ROOM 2.48m x 2.04m, single bowl sink unit, fitted work surface, double cupboard, space and plumbing for washing machine, further appliance space, space for fridge, uPVC double glazed window
STAIRS TO LANDING access to part-boarded loft space, airing cupboard housing fitted tank
MASTER BEDROOM 3.99m x 3.06m, radiator, uPVC double glazed bay window, range of fitted bedroom furniture to include: double-depth walk-in storage cupboard and inset dressing table with theatre lighting, door to
ENSUITE SHOWER ROOM tiled shower cubicle with wall-mounted shower unit and attachment, inset wash hand basin, low-level wc, wall-mounted cupboard, extractor fan
BEDROOM 2 3.35m plus door recess x 2.51m, radiator, uPVC double glazed bay window, built-in double wardrobe cupboard
BEDROOM 3 3.06m x 2.49m plus door recess, radiator, uPVC double glazed window, built-in single wardrobe cupboard
BEDROOM 4 2.85m x 2.41m, radiator, uPVC double glazed window, built-in single wardrobe cupboard
FAMILY BATHROOM panel bath with mixer taps and shower attachment, pedestal wash hand basin, low-level wc, uPVC double glazed window, radiator
REAR GARDEN paved patio, area laid to lawn, conifer border, flower and shrub borders, timber garden shed, panel fencing
FRONT GARDEN shingle area, inset shrub borders, driveway with parking for at least two cars, further driveway opposite the property with parking for a further two cars leading to
LARGER-THAN-AVERAGE DETACHED GARAGE 5.59m x 4.15m, roller door, uPVC double glazed door, pitched roof, power and light
COUNCIL TAX BAND: E
EPC RATING: C
- COUNCIL TAXA payment made to your local authority in order to pay for local services like schools, libraries, and refuse collection. The amount you pay depends on the value of the property.Read more about council Tax in our glossary page.
- Ask agent
- PARKINGDetails of how and where vehicles can be parked, and any associated costs.Read more about parking in our glossary page.
- Garage,Driveway,Off street
- GARDENA property has access to an outdoor space, which could be private or shared.
- Front garden,Rear garden
- ACCESSIBILITYHow a property has been adapted to meet the needs of vulnerable or disabled individuals.Read more about accessibility in our glossary page.
- Ask agent
Energy performance certificate - ask agent
Primula Road, Bordon, Hampshire, GU35
Add an important place to see how long it'd take to get there from our property listings.
__mins driving to your place
Get an instant, personalised result:
- Show sellers you’re serious
- Secure viewings faster with agents
- No impact on your credit score
Your mortgage
Notes
Staying secure when looking for property
Ensure you're up to date with our latest advice on how to avoid fraud or scams when looking for property online.
Visit our security centre to find out moreDisclaimer - Property reference B4515. The information displayed about this property comprises a property advertisement. Rightmove.co.uk makes no warranty as to the accuracy or completeness of the advertisement or any linked or associated information, and Rightmove has no control over the content. This property advertisement does not constitute property particulars. The information is provided and maintained by Bushnell Porter, Bordon. Please contact the selling agent or developer directly to obtain any information which may be available under the terms of The Energy Performance of Buildings (Certificates and Inspections) (England and Wales) Regulations 2007 or the Home Report if in relation to a residential property in Scotland.
*This is the average speed from the provider with the fastest broadband package available at this postcode. The average speed displayed is based on the download speeds of at least 50% of customers at peak time (8pm to 10pm). Fibre/cable services at the postcode are subject to availability and may differ between properties within a postcode. Speeds can be affected by a range of technical and environmental factors. The speed at the property may be lower than that listed above. You can check the estimated speed and confirm availability to a property prior to purchasing on the broadband provider's website. Providers may increase charges. The information is provided and maintained by Decision Technologies Limited. **This is indicative only and based on a 2-person household with multiple devices and simultaneous usage. Broadband performance is affected by multiple factors including number of occupants and devices, simultaneous usage, router range etc. For more information speak to your broadband provider.
Map data ©OpenStreetMap contributors.





