Oxlip Boulevard, IPSWICH

Letting details
- Let available date:
- Now
- Deposit:
- £2,019A deposit provides security for a landlord against damage, or unpaid rent by a tenant.Read more about deposit in our glossary page.
- Min. Tenancy:
- 12 months How long the landlord offers to let the property for.Read more about tenancy length in our glossary page.
- Let type:
- Long term
- Furnish type:
- Unfurnished
- Council Tax:
- Ask agent
- PROPERTY TYPE
Terraced
- BEDROOMS
3
- SIZE
Ask agent
Key features
- Available Now
- New Build
- Gas Central Heating
- Ensuite to Master
- Parking
- Double Glazed Windows
Description
Holding Deposit: £403.00
SUMMARY
A stunning and well presented three bedroom new build available on the popular Henley Gate Development.
DESCRIPTION
A stunning and well presented three bedroom new build available on the popular Henley Gate Development.
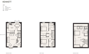
This home is a stylish and spacious three-bedroom home, thoughtfully designed to offer comfort and versatility across three floors.
On the ground floor, a welcoming entrance hall leads to a bright living room with a bay window, creating a light and airy space to relax. To the rear, an open-plan kitchen and dining area provides the perfect spot for entertaining or family meals, with French doors opening out to the garden. A convenient downstairs WC and useful storage cupboard complete this level.
The first-floor features two well-proportioned double bedrooms, both with fitted wardrobe space, alongside a modern family bathroom and additional storage.
Occupying the entire top floor, the principal bedroom offers a private retreat with a fitted wardrobe, en-suite shower room, and further built-in storage.
The home offers a beautiful private garden, is pet friendly, and has parking for two cars.
Call the office now to arrange your viewing.
Henley Gate is the newest addition to the lively city of Ipswich, providing modern homes and a new community. In addition to the above benefits our estate has to offer, Ipswich has a perfect blend of modern amenities, fun activities, reputable schools, and convenient transport links.
Local amenities include shopping parades, pubs and restaurants, and activities, ensuring daily necessities and leisure activities are within easy reach.
For families, the area is served by several primary schools, including The Willows and Gusford, as well as secondary schools such as Chantry Academy.
The area is well-served by public transport, with bus services operating from the Old Cattle Market bus station. Additionally, Ipswich railway station provides direct services to cities including London, Cambridge, Chelmsford, Norwich, and Peterborough.
With its combination of amenities, educational facilities, and transport options, the IP1 postcode in Ipswich presents an attractive living environment for families and individuals alike.
*Images used are of the same house type, but may differ from the physical unit.
*Please kindly note that rent will be due on the 1st of the month, and so the initial rent due will be calculated based on the day you move into the property. If you move in after the 14th of the month you will need to pay the rent for the interim to the end of the month, along with the next first full months rent.
While every reasonable effort is made to ensure the accuracy of descriptions and content, we should make you aware of the following guidance or limitations.
(1) MONEY LAUNDERING REGULATIONS – prospective tenants will be asked to produce identification documentation during the referencing process and we would ask for your co-operation in order that there will be no delay in agreeing a tenancy.
(2) These particulars do not constitute part or all of an offer or contract.
(3) The text, photographs and plans are for guidance only and are not necessarily comprehensive.
(4) Measurements: These approximate room sizes are only intended as general guidance. You must verify the dimensions carefully to satisfy yourself of their accuracy.
(5) You should make your own enquiries regarding the property in respect of things such as furnishings to be included/excluded and what facilities are/are not available.
(6) Before you enter into any tenancy for one of the advertised properties, the condition and contents of the property will normally be set out in a tenancy agreement and inventory. Please make sure you carefully read and agree with the tenancy agreement and any inventory provided before signing these documents.
Brochures
Full Details- COUNCIL TAXA payment made to your local authority in order to pay for local services like schools, libraries, and refuse collection. The amount you pay depends on the value of the property.Read more about council Tax in our glossary page.
- Ask agent
- PARKINGDetails of how and where vehicles can be parked, and any associated costs.Read more about parking in our glossary page.
- Yes
- GARDENA property has access to an outdoor space, which could be private or shared.
- Yes
- ACCESSIBILITYHow a property has been adapted to meet the needs of vulnerable or disabled individuals.Read more about accessibility in our glossary page.
- Ask agent
Oxlip Boulevard, IPSWICH
Add an important place to see how long it'd take to get there from our property listings.
__mins driving to your place

Notes
Staying secure when looking for property
Ensure you're up to date with our latest advice on how to avoid fraud or scams when looking for property online.
Visit our security centre to find out moreDisclaimer - Property reference P1714M3929. The information displayed about this property comprises a property advertisement. Rightmove.co.uk makes no warranty as to the accuracy or completeness of the advertisement or any linked or associated information, and Rightmove has no control over the content. This property advertisement does not constitute property particulars. The information is provided and maintained by William H. Brown Lettings, Ipswich. Please contact the selling agent or developer directly to obtain any information which may be available under the terms of The Energy Performance of Buildings (Certificates and Inspections) (England and Wales) Regulations 2007 or the Home Report if in relation to a residential property in Scotland.
*This is the average speed from the provider with the fastest broadband package available at this postcode. The average speed displayed is based on the download speeds of at least 50% of customers at peak time (8pm to 10pm). Fibre/cable services at the postcode are subject to availability and may differ between properties within a postcode. Speeds can be affected by a range of technical and environmental factors. The speed at the property may be lower than that listed above. You can check the estimated speed and confirm availability to a property prior to purchasing on the broadband provider's website. Providers may increase charges. The information is provided and maintained by Decision Technologies Limited. **This is indicative only and based on a 2-person household with multiple devices and simultaneous usage. Broadband performance is affected by multiple factors including number of occupants and devices, simultaneous usage, router range etc. For more information speak to your broadband provider.
Map data ©OpenStreetMap contributors.




