Bronze Drive, Exeter, Devon, EX1

Letting details
- Let available date:
- 16/01/2026
- Deposit:
- £1,725A deposit provides security for a landlord against damage, or unpaid rent by a tenant.Read more about deposit in our glossary page.
- Min. Tenancy:
- 12 months How long the landlord offers to let the property for.Read more about tenancy length in our glossary page.
- Let type:
- Long term
- Furnish type:
- Unfurnished
- Council Tax:
- Ask agent
This property is Built For Renters.
- PROPERTY TYPE
Terraced
- BEDROOMS
3
- BATHROOMS
2
- SIZE
870 sq ft
81 sq m
Key features
- NEWLY BUILT PROPERTY & DEVELOPMENT
- No Deposit Option Available
- 3 Bedroom Family Home
- Semi Detached Plot
- Separate Lounge & Kitchen
- Downstairs WC
- Family Bathroom & En-Suite
- Allocated Parking
- High Specification
- Secure Long Term Tenancy Available
Description
Offering a range of mid and end terrace homes we are sure The Bracken is going to prove very popular. With solar panels installed they are also energy efficient!
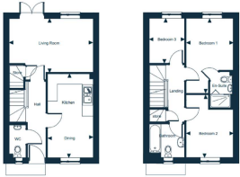
Upon entering the hallway you'll find a useful WC and door through to the kitchen/diner. Fitted with a range of contemporary kitchen units and the latest appliances including dishwasher, washer/dryer, fridge/freezer, oven, hob with extractor over. The kitchen area also provides a useful space for a dining table.
The lounge located at the rear of the property is a spacious area with patio doors opening on to your rear garden that benefits from a paved patio area, the perfect space for hosting friends and family!
With three bedrooms and Bedroom One benefiting from an en-suite this provides the perfect family home! The main bathroom contemporary in design is also located on the first floor.
The Bracken also benefits from two allocated parking bays in front of the property.
Equinox is located in the Tithebarn community near Pinhoe located on the eastern outskirts of the city, near the M5 motorway. It is part of a broader urban expansion that includes nearby areas like Cranbrook and Monkerton. The community features energy-efficient homes built to high sustainability standards and benefits from a district heating system powered by the Tithebarn Way Energy Centre, providing eco-friendly heating and hot water.
Wise Living will offer 40 properties on this development ranging from 1 and 2 bedroom apartments to 2 - 4 bedroom houses.
EPC Rating - B.
Council Tax Banding - We believe the council tax rating on this property to be Band C. Please make your own enquiries to ensure that this information is accurate.
CGIs (Computer Generated Images):
Images are computer generated and indicative of the final finish expected. These images are not plot or site-specific therefore the layout, dimensions and spec may vary. Images are used to provide a guide on colour schemes and styles.
Image Disclaimer:
Images are for illustrative purposes only of this property type, they are therefore not plot or site specific and spec and external features may vary slightly. If there is any point which is of particular importance to you, please contact our office and we will be pleased to check the position for you. All properties are let unfurnished. Any room sizes quoted are approximate and are only intended as a general guidance.
Advertising Disclaimer:
All our properties are listed on our Rightmove agent page and our official website and advertised through our Facebook and Instagram pages. All applications are taken by our in-house team via email (@wiselivinghomes.co.uk) or over the telephone, not via social media or any other messaging platforms such as WhatsApp.
Pets
We allow pets in this property; there is a pet rent payable at an extra rate of £30 per month for a cat or a dog. A pet application must be completed.
Relet
Kindly be advised that this property, while constructed within the last 2 years, has had previous occupants. Consequently, there might be signs of wear and tear. However, we rigorously maintain and inspect each property after a tenant vacates to guarantee it upholds our high standards of quality. Additionally, we perform any necessary repairs and improvements we deem essential before the new tenant's move-in to ensure a comfortable living experience.
How to apply
To apply for any of our properties please call our reservations line and we can talk you through the reservation process.
Brochures
Site BrochureOnline Brochure- COUNCIL TAXA payment made to your local authority in order to pay for local services like schools, libraries, and refuse collection. The amount you pay depends on the value of the property.Read more about council Tax in our glossary page.
- Ask agent
- PARKINGDetails of how and where vehicles can be parked, and any associated costs.Read more about parking in our glossary page.
- Secure,Driveway,Off street,Allocated
- GARDENA property has access to an outdoor space, which could be private or shared.
- Private garden,Patio,Enclosed garden,Rear garden,Back garden
- ACCESSIBILITYHow a property has been adapted to meet the needs of vulnerable or disabled individuals.Read more about accessibility in our glossary page.
- Ask agent
Bronze Drive, Exeter, Devon, EX1
Add an important place to see how long it'd take to get there from our property listings.
__mins driving to your place
Notes
Staying secure when looking for property
Ensure you're up to date with our latest advice on how to avoid fraud or scams when looking for property online.
Visit our security centre to find out moreDisclaimer - Property reference BRACKENRELET. The information displayed about this property comprises a property advertisement. Rightmove.co.uk makes no warranty as to the accuracy or completeness of the advertisement or any linked or associated information, and Rightmove has no control over the content. This property advertisement does not constitute property particulars. The information is provided and maintained by Wise Living, Equinox. Please contact the selling agent or developer directly to obtain any information which may be available under the terms of The Energy Performance of Buildings (Certificates and Inspections) (England and Wales) Regulations 2007 or the Home Report if in relation to a residential property in Scotland.
*This is the average speed from the provider with the fastest broadband package available at this postcode. The average speed displayed is based on the download speeds of at least 50% of customers at peak time (8pm to 10pm). Fibre/cable services at the postcode are subject to availability and may differ between properties within a postcode. Speeds can be affected by a range of technical and environmental factors. The speed at the property may be lower than that listed above. You can check the estimated speed and confirm availability to a property prior to purchasing on the broadband provider's website. Providers may increase charges. The information is provided and maintained by Decision Technologies Limited. **This is indicative only and based on a 2-person household with multiple devices and simultaneous usage. Broadband performance is affected by multiple factors including number of occupants and devices, simultaneous usage, router range etc. For more information speak to your broadband provider.
Map data ©OpenStreetMap contributors.




