4 bedroom semi-detached house for sale
Hungerton Street, Nottingham, Nottinghamshire, NG7

- PROPERTY TYPE
Semi-Detached
- BEDROOMS
4
- BATHROOMS
2
- SIZE
Ask agent
- TENUREDescribes how you own a property. There are different types of tenure - freehold, leasehold, and commonhold.Read more about tenure in our glossary page.
Ask agent
Key features
- BTL Opportunity
- Close to trasnport links around the city
- Close to amentities
- Perfect family or rental home
- Recently refurbished throughout
- Very well presented
- Comes with brand new furnishings
Description
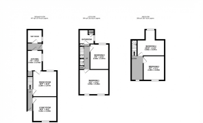
The ground floor comprises a welcoming entrance hall leading to a spacious lounge, a separate dining room ideal for communal living, and a well-appointed kitchen with ample storage and worktop space. Additional benefits on this level include a useful storage area and a modern wet room, enhancing practicality for multi-occupancy use.
To the first floor, the property offers two well-proportioned double bedrooms along with a family bathroom, finished to a good standard. The second floor provides a further two generous double bedrooms, bringing the total to four double bedrooms, all offering excellent space and natural light.
The layout and room sizes lend themselves perfectly to conversion into a six-bedroom House in Multiple Occupation (HMO), subject to the necessary C4 use class and HMO licence being obtained. With minimal reconfiguration, this property presents a strong opportunity to significantly increase rental yield.
Overall, this is a versatile and attractive investment property, equally suitable for continued single-let use or as a future HMO, located in an area with strong rental demand. Early viewing is highly recommended to fully appreciate the accommodation, condition, and potential on offer.
- COUNCIL TAXA payment made to your local authority in order to pay for local services like schools, libraries, and refuse collection. The amount you pay depends on the value of the property.Read more about council Tax in our glossary page.
- Ask agent
- PARKINGDetails of how and where vehicles can be parked, and any associated costs.Read more about parking in our glossary page.
- Ask agent
- GARDENA property has access to an outdoor space, which could be private or shared.
- Ask agent
- ACCESSIBILITYHow a property has been adapted to meet the needs of vulnerable or disabled individuals.Read more about accessibility in our glossary page.
- Ask agent
Hungerton Street, Nottingham, Nottinghamshire, NG7
Add an important place to see how long it'd take to get there from our property listings.
__mins driving to your place
Get an instant, personalised result:
- Show sellers you’re serious
- Secure viewings faster with agents
- No impact on your credit score
Your mortgage
Notes
Staying secure when looking for property
Ensure you're up to date with our latest advice on how to avoid fraud or scams when looking for property online.
Visit our security centre to find out moreDisclaimer - Property reference UNGERT1. The information displayed about this property comprises a property advertisement. Rightmove.co.uk makes no warranty as to the accuracy or completeness of the advertisement or any linked or associated information, and Rightmove has no control over the content. This property advertisement does not constitute property particulars. The information is provided and maintained by Woodstead Sales & Lettings, Nottingham. Please contact the selling agent or developer directly to obtain any information which may be available under the terms of The Energy Performance of Buildings (Certificates and Inspections) (England and Wales) Regulations 2007 or the Home Report if in relation to a residential property in Scotland.
*This is the average speed from the provider with the fastest broadband package available at this postcode. The average speed displayed is based on the download speeds of at least 50% of customers at peak time (8pm to 10pm). Fibre/cable services at the postcode are subject to availability and may differ between properties within a postcode. Speeds can be affected by a range of technical and environmental factors. The speed at the property may be lower than that listed above. You can check the estimated speed and confirm availability to a property prior to purchasing on the broadband provider's website. Providers may increase charges. The information is provided and maintained by Decision Technologies Limited. **This is indicative only and based on a 2-person household with multiple devices and simultaneous usage. Broadband performance is affected by multiple factors including number of occupants and devices, simultaneous usage, router range etc. For more information speak to your broadband provider.
Map data ©OpenStreetMap contributors.




