Brooker Close, Barrow Upon Soar, LE12

- PROPERTY TYPE
Detached
- BEDROOMS
5
- BATHROOMS
3
- SIZE
2,142 sq ft
199 sq m
- TENUREDescribes how you own a property. There are different types of tenure - freehold, leasehold, and commonhold.Read more about tenure in our glossary page.
Freehold
Key features
- A fantastic five bedroom detached family home
- Occupying a prime position on a popular modern development
- Generous size accommodation set across three floors
- A good size lounge and separate study
- A fantastic kitchen diner with French doors opening to the rear garden
- Five double bedrooms along with three bathrooms
- Landscape south westerly facing rear garden
- Ample off road parking and double garage
- Excellent village amenities and good transport links
- Internal viewings are a must to be truly appreciated
Description
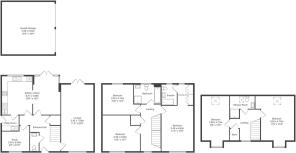
A fantastic opportunity to acquire this impressive five bedroom detached family home, occupying a prime position within a sought after modern development and offering generous accommodation set across three floors.
Upon entering, you are greeted by a welcoming hallway that gives access to the ground floor accommodation including WC, study, lounge and fantastic kitchen diner.
The lounge is of a good size lounge, perfect for relaxing or entertaining guests. The study which looks out onto a small green area is the ideal space for those working from home or seeking a quiet retreat. The heart of the home is the stunning kitchen diner, thoughtfully designed with contemporary fittings and featuring French doors that provide a seamless connection to the rear garden. A real benefit to this family home is the useful utility room located directly off the kitchen.
Ascend to the first floor where there are three double bedrooms and family bathroom. The principle bedroom is generous in size with a dressing area, plentiful clothes storage and an en-suite shower room.
Ascending the stairs again you arrive on the second floor where there are two further double bedrooms which share a shower room. From the second floor there are some great views which look out towards open countryside.
Outside, the property overlooks a small green area to the front which gives the property a real element of privacy. To the rear is an enclosed landscaped garden, with paved patio and lawn along with an array of planted greenery and shrubs. A stunning place to enjoy the warmer months of the year with family and friends. (Photo’s taken during the summer)
Beyond the rear garden is a driveway providing ample off road parking for two vehicles along with the double garage. The garage has both power and lighting.
Situated in a highly desirable village, residents enjoy excellent amenities nearby, including reputable schools, local shops and leisure facilities, as well as good transport links for commuters.
This substantial family home truly combines comfort, practicality and style, making it an ideal choice for those seeking versatile living in a vibrant community. Internal viewings are highly recommended to fully appreciate the quality, space and lifestyle this exceptional property has to offer.
EPC Rating: C
Disclaimer
In accordance with current legal requirements, all prospective purchasers are required to undergo an Anti-Money Laundering (AML) check. An administration fee of £40 per property will apply. This fee is payable after an offer has been accepted and must be settled before a memorandum of sale can be issued.
- COUNCIL TAXA payment made to your local authority in order to pay for local services like schools, libraries, and refuse collection. The amount you pay depends on the value of the property.Read more about council Tax in our glossary page.
- Band: F
- PARKINGDetails of how and where vehicles can be parked, and any associated costs.Read more about parking in our glossary page.
- Yes
- GARDENA property has access to an outdoor space, which could be private or shared.
- Rear garden
- ACCESSIBILITYHow a property has been adapted to meet the needs of vulnerable or disabled individuals.Read more about accessibility in our glossary page.
- Ask agent
Energy performance certificate - ask agent
Brooker Close, Barrow Upon Soar, LE12
Add an important place to see how long it'd take to get there from our property listings.
__mins driving to your place
Get an instant, personalised result:
- Show sellers you’re serious
- Secure viewings faster with agents
- No impact on your credit score
Affordability
Notes
Staying secure when looking for property
Ensure you're up to date with our latest advice on how to avoid fraud or scams when looking for property online.
Visit our security centre to find out moreDisclaimer - Property reference 89d1b031-a57a-4ec0-9a39-a0a62b1dce0f. The information displayed about this property comprises a property advertisement. Rightmove.co.uk makes no warranty as to the accuracy or completeness of the advertisement or any linked or associated information, and Rightmove has no control over the content. This property advertisement does not constitute property particulars. The information is provided and maintained by Hortons, National. Please contact the selling agent or developer directly to obtain any information which may be available under the terms of The Energy Performance of Buildings (Certificates and Inspections) (England and Wales) Regulations 2007 or the Home Report if in relation to a residential property in Scotland.
*This is the average speed from the provider with the fastest broadband package available at this postcode. The average speed displayed is based on the download speeds of at least 50% of customers at peak time (8pm to 10pm). Fibre/cable services at the postcode are subject to availability and may differ between properties within a postcode. Speeds can be affected by a range of technical and environmental factors. The speed at the property may be lower than that listed above. You can check the estimated speed and confirm availability to a property prior to purchasing on the broadband provider's website. Providers may increase charges. The information is provided and maintained by Decision Technologies Limited. **This is indicative only and based on a 2-person household with multiple devices and simultaneous usage. Broadband performance is affected by multiple factors including number of occupants and devices, simultaneous usage, router range etc. For more information speak to your broadband provider.
Map data ©OpenStreetMap contributors.




