Worsley Road, FRIMLEY, GU16
- PROPERTY TYPE
Plot
- BEDROOMS
3
- BATHROOMS
2
- SIZE
Ask agent
Key features
- PLANNING PERMISSION GRANTED FOR A SINGLE DETACHED HOUSE
- PLANNING PERMISSION # 25/0337/FFU UNDER SURREY HEATH BOROUGH COUNCIL
- PLANNING PERMISSION GRANTED ON 12TH NOV 2025 FOR 1 YEAR
- PROPOSED DWELLING - THREE DOUBLE BEDROOMS
- APPROX 1300 FT2
- EN-SUITE & FAMILY BATHROOM
- LARGE LIVING ROOM & KITCHEN/DINING ROOM & UTILITY ROOM
- CIL = APPROX £34,719
Description
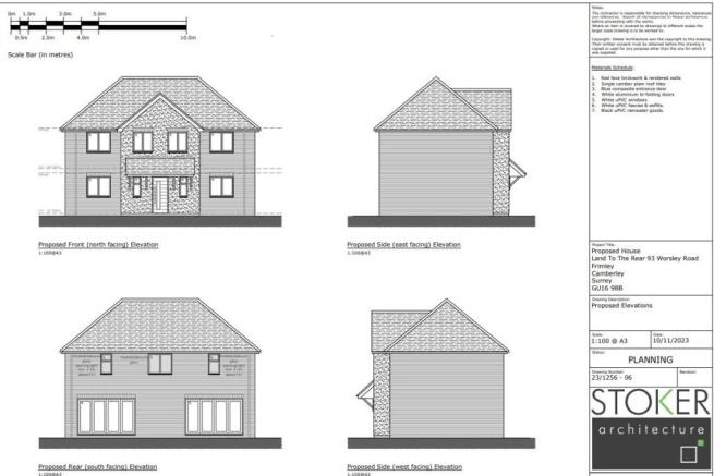
Jigsaw Estates are pleased to offer this rare opportunity to build your own house. Planning permission has been granted on the 12th November 2025 (permission lasts for 12 months from this date) for a detached single dwelling on the land at the rear of 93 Worsley Road and the eventual access will be from Dunbar Road.
The permission is to build a three double bedroom detached property with en-suite to the principal bedroom and a family bathroom. Downstairs the plans offer a large double aspect living room and on the other side a generous kitchen/dining room and a cloakroom and utility room.
All available documents can be found on Surrey Heath Borough Council's website using the planning # 25/0337/FFU
We have been advised the CIL is approx £34,719
** Please also note all marketing information has derived from Surrey Heath Borough Council's website and as usual will need to be checked through via the conveyancing process *
Brochures
Brochure 1Worsley Road, FRIMLEY, GU16
NEAREST STATIONS
Distances are straight line measurements from the centre of the postcode- Frimley Station0.8 miles
- Farnborough North Station0.8 miles
- Farnborough Station1.5 miles

Notes
Disclaimer - Property reference 29393277. The information displayed about this property comprises a property advertisement. Rightmove.co.uk makes no warranty as to the accuracy or completeness of the advertisement or any linked or associated information, and Rightmove has no control over the content. This property advertisement does not constitute property particulars. The information is provided and maintained by Jigsaw Estates, Camberley. Please contact the selling agent or developer directly to obtain any information which may be available under the terms of The Energy Performance of Buildings (Certificates and Inspections) (England and Wales) Regulations 2007 or the Home Report if in relation to a residential property in Scotland.
Map data ©OpenStreetMap contributors.




