
Charter Gate, Boltro Road, RH16

- PROPERTY TYPE
Apartment
- BEDROOMS
2
- BATHROOMS
2
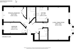
- SIZE
804 sq ft
75 sq m
Key features
- Fabulous apartment of around 800 ft.² in gated complex
- 1st floor apartment with entry security system
- Prime location close to the town, Broadway & leisure centre
- 150 yards from the railway station (side entrance) - 250 yards to Sainsbury's and Waitrose stores
- Immaculate and neutral redecoration throughout including new carpets
- Kitchen with integrated oven, fridge and freezer
- 2 Bathrooms including an en-suite off the main bedroom
- Large storage cupboard in the hallway
- Underground allocated parking space (space 10)
- EPC rating: B - Council Tax Band: C
Description
GUIDE PRICE … £260,000-£270,000
PLEASE WATCH THE VIDEO BEFORE BOOKING AN APPOINTMENT
A 2 bedroom, 2 bathroom first floor flat with east and west facing aspects in this desirable gated complex within 150 yards of the railway station as well as being within a few minutes’ walk of the main shopping areas, Waitrose, Sainsbury's and the leisure centre. Charter Gate has some of the largest apartments in the Station Quarter and was built around the Millennium by Persimmon Homes. The development is entered via a secure gate with entry system and this property has an allocated parking space.
Tenure: Leasehold - 999 years from 25.03.2001
Ground Rent: £200 per annum for the first 25 years rising to £300 per year for the next 25 years and then rising by £100 per year for each 25 years thereafter
Service Charge: £1509 1 January 2026- 31 December 2025
Managing Agents|: Hunters, Estates & Property Management, 1 Church Road, Burgess Hill, West Sussex RH15 9BB t: O w: hunters-group.co.uk
EPC Rating: B
Brochures
Property Brochure- COUNCIL TAXA payment made to your local authority in order to pay for local services like schools, libraries, and refuse collection. The amount you pay depends on the value of the property.Read more about council Tax in our glossary page.
- Band: C
- PARKINGDetails of how and where vehicles can be parked, and any associated costs.Read more about parking in our glossary page.
- Yes
- GARDENA property has access to an outdoor space, which could be private or shared.
- Ask agent
- ACCESSIBILITYHow a property has been adapted to meet the needs of vulnerable or disabled individuals.Read more about accessibility in our glossary page.
- Ask agent
Energy performance certificate - ask agent
Charter Gate, Boltro Road, RH16
Add an important place to see how long it'd take to get there from our property listings.
__mins driving to your place
Get an instant, personalised result:
- Show sellers you’re serious
- Secure viewings faster with agents
- No impact on your credit score



Affordability
Notes
Staying secure when looking for property
Ensure you're up to date with our latest advice on how to avoid fraud or scams when looking for property online.
Visit our security centre to find out moreDisclaimer - Property reference 92a88e85-e76f-499b-be62-db85e35d7294. The information displayed about this property comprises a property advertisement. Rightmove.co.uk makes no warranty as to the accuracy or completeness of the advertisement or any linked or associated information, and Rightmove has no control over the content. This property advertisement does not constitute property particulars. The information is provided and maintained by Mansell McTaggart, Haywards Heath. Please contact the selling agent or developer directly to obtain any information which may be available under the terms of The Energy Performance of Buildings (Certificates and Inspections) (England and Wales) Regulations 2007 or the Home Report if in relation to a residential property in Scotland.
*This is the average speed from the provider with the fastest broadband package available at this postcode. The average speed displayed is based on the download speeds of at least 50% of customers at peak time (8pm to 10pm). Fibre/cable services at the postcode are subject to availability and may differ between properties within a postcode. Speeds can be affected by a range of technical and environmental factors. The speed at the property may be lower than that listed above. You can check the estimated speed and confirm availability to a property prior to purchasing on the broadband provider's website. Providers may increase charges. The information is provided and maintained by Decision Technologies Limited. **This is indicative only and based on a 2-person household with multiple devices and simultaneous usage. Broadband performance is affected by multiple factors including number of occupants and devices, simultaneous usage, router range etc. For more information speak to your broadband provider.
Map data ©OpenStreetMap contributors.





