
Shobnall Road, Burton-On-Trent, DE14 2BE

- PROPERTY TYPE
Semi-Detached
- BEDROOMS
3
- BATHROOMS
2
- SIZE
1,015 sq ft
94 sq m
- TENUREDescribes how you own a property. There are different types of tenure - freehold, leasehold, and commonhold.Read more about tenure in our glossary page.
Freehold
Key features
- £99 RESERVATION FEE & OVER £3,000 WORTH OF EXTRAS INCLUDED!*
- Light filled lounge with french doors to rear garden
- Open plan kitchen/diner with integrated appliances
- Access to garden from kitchen
- Downstairs WC
- Modern family bathroom
- Ensuite to master bedroom
- Built in storage across both floors
- Driveway Parking
- 10 Year NHBC Warranty
Description
Plot 18, a three bedroom detached home now available from £289,995!
UPGRADES INCLUDED:
- Outside Tap
- Dishwasher
- Shower Screen
- Shower over bath
- Additional tiling around bath
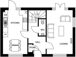
A spacious 3-bedroom home designed for modern living. The ground floor features a generously sized lounge stretching the full depth of the property, with ample space for both relaxing and entertaining. Opposite, an expansive open-plan kitchen/dining area also spans the full length of the home, offering an ideal setting for family life or social gatherings, with direct access to the rear garden. A convenient WC is also located on the ground floor.
Upstairs, the home offers three well-proportioned bedrooms. The master bedroom includes an ensuite, while two additional bedrooms are served by a separate family bathroom.
Ground Floor -
Lounge - 3212mm x 5472mm
Kitchen/Dining - 3028mm x 5472mm
First Floor -
Bedroom 1 - 3028mm x 3826mm
Bedroom 2 - 3212mm x 2859mm
Bedroom 3 - 3212mm x 2520mm
Bathroom - 2196mm x 1970mm
Our Marketing Suite and Show Homes are open Thursday to Monday, 10am - 5pm. Visit us to explore our homes in person.
St Aidan's Garden is an attractive collection of 2, 3 and 4 bedroom homes set in a desirable location on the edge of Burton-on-Trent, offering the perfect balance of countryside surroundings and town convenience. Final homes now selling.
Life at St Aidan's Garden
Located just moments from the vibrant market town centre, this thoughtfully planned community is ideal for couples and families alike. Enjoy exciting days out at Alton Towers, discover Burton's rich brewing heritage, or explore a range of nearby National Trust properties within a 30-minute drive.
Excellent transport connections make commuting simple. Residents are approximately one mile from Burton's train station, with easy access to the motorway network. Major Midlands cities including Birmingham, Nottingham, Leicester and Derby can all be reached within an hour.
At Lovell, customer satisfaction is at the heart of everything we do. Our exceptional new homes at St Aidan's Garden are designed to offer comfort, quality and contemporary style in a location you'll love to call home.
Terms and conditions apply. Please speak to our sales team for further information.
- COUNCIL TAXA payment made to your local authority in order to pay for local services like schools, libraries, and refuse collection. The amount you pay depends on the value of the property.Read more about council Tax in our glossary page.
- Ask developer
- PARKINGDetails of how and where vehicles can be parked, and any associated costs.Read more about parking in our glossary page.
- Driveway
- GARDENA property has access to an outdoor space, which could be private or shared.
- Rear garden
- ACCESSIBILITYHow a property has been adapted to meet the needs of vulnerable or disabled individuals.Read more about accessibility in our glossary page.
- Ask developer
Energy performance certificate - ask developer
- High specification as standard
- Integrated appliances
- Suitable for upsizers, downsizers or first time buyers,
- Great local amenities
Shobnall Road, Burton-On-Trent, DE14 2BE
Add an important place to see how long it'd take to get there from our property listings.
__mins driving to your place
Get an instant, personalised result:
- Show sellers you’re serious
- Secure viewings faster with agents
- No impact on your credit score
About Lovell
Final phase now selling at St Aidan's Garden. Don't miss out on your chance to move to this stunning new community in Burton-upon-Trent.
We have a collection of 3 & 4 bedroom homes remaining ranging from detached homes, semi detached homes and 3 storey townhouses with prices starting from £249,995. All of our homes are energy efficient complete with Solar Panels & EV Chargers.
St Aidan's Garden is ideally located within close proximity to a number of schools, including one rated outstanding by OFSTED and is situated close to Burton Town Centre, benefitting from a number of shops, cafes and eateries. Whether you are a first time buyer or looking for you forever home, St Aidan's Garden could be the perfect place for you.
Your mortgage
Notes
Staying secure when looking for property
Ensure you're up to date with our latest advice on how to avoid fraud or scams when looking for property online.
Visit our security centre to find out moreDisclaimer - Property reference NEWBURY_V2_18. The information displayed about this property comprises a property advertisement. Rightmove.co.uk makes no warranty as to the accuracy or completeness of the advertisement or any linked or associated information, and Rightmove has no control over the content. This property advertisement does not constitute property particulars. The information is provided and maintained by Lovell. Please contact the selling agent or developer directly to obtain any information which may be available under the terms of The Energy Performance of Buildings (Certificates and Inspections) (England and Wales) Regulations 2007 or the Home Report if in relation to a residential property in Scotland.
*This is the average speed from the provider with the fastest broadband package available at this postcode. The average speed displayed is based on the download speeds of at least 50% of customers at peak time (8pm to 10pm). Fibre/cable services at the postcode are subject to availability and may differ between properties within a postcode. Speeds can be affected by a range of technical and environmental factors. The speed at the property may be lower than that listed above. You can check the estimated speed and confirm availability to a property prior to purchasing on the broadband provider's website. Providers may increase charges. The information is provided and maintained by Decision Technologies Limited. **This is indicative only and based on a 2-person household with multiple devices and simultaneous usage. Broadband performance is affected by multiple factors including number of occupants and devices, simultaneous usage, router range etc. For more information speak to your broadband provider.
Map data ©OpenStreetMap contributors.






