Boncath Inn, Boncath, SA37
- PROPERTY TYPE
Plot
- SIZE
Ask agent
Key features
- Building Plot With Planning
- Village Location
- Two x Three Bedroom Semi Detached Houses
Description
An exciting opportunity to purchase a building plot with consent 2 No. semi-detached dwellings on Land adj to the former Boncath Inn, Boncath, Cardigan, SA73 0JN Under Planning Reference 24/0571/PA.
EPC Rating: F
Planning Permission
Granted under application number: 24/0571/PA (20 Feb 2025) for 2 No. semi-detached dwellings - Land adj to the Boncath Inn, Boncath, Cardigan, SA73 0JN.
Local Authority
Pembrokeshire County Council
County Hall
Haverfordwest
Pembrokeshire
SA61 1TP
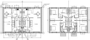
Proposed Accommodation
Hall, wc, living room, kitchen/diner, three bedrooms and a family bathroom. Parking and gardens.
Brochures
Property BrochureBoncath Inn, Boncath, SA37
NEAREST STATIONS
Distances are straight line measurements from the centre of the postcode- Clunderwen Station13.0 miles
Notes
Disclaimer - Property reference a091921a-ba34-456f-aa63-afec2a1c928c. The information displayed about this property comprises a property advertisement. Rightmove.co.uk makes no warranty as to the accuracy or completeness of the advertisement or any linked or associated information, and Rightmove has no control over the content. This property advertisement does not constitute property particulars. The information is provided and maintained by JJ Morris, Cardigan. Please contact the selling agent or developer directly to obtain any information which may be available under the terms of The Energy Performance of Buildings (Certificates and Inspections) (England and Wales) Regulations 2007 or the Home Report if in relation to a residential property in Scotland.
Map data ©OpenStreetMap contributors.






