Eglwyswrw, Crymych, SA41

- PROPERTY TYPE
Detached
- BEDROOMS
3
- BATHROOMS
2
- SIZE
Ask agent
- TENUREDescribes how you own a property. There are different types of tenure - freehold, leasehold, and commonhold.Read more about tenure in our glossary page.
Freehold
Key features
- Eglwyswrw is a rural village situated in north Pembrokeshire
- The property has a Parking, Garage and a Generous Garden to the rear with a useful Outhouse.
- Council Tax band E
- Situated in the village of Egwlswrw.
- An attractive Detached Three Bedroom Modernised Property
Description
A deceptively spacious three bedroom detached house, situated in the village of Egwlswrw, the accommodation comprises: sitting room, open plan living/dining/ kitchen, utility room, rear lobby and a ground floor shower room. The first floor boasts three bedrooms and a family bathroom. The property has a parking, garage and a generous garden to the rear with a useful outhouse.
Situation
Eglwyswrw is a rural village situated in north Pembrokeshire, West Wales, approximately 7 miles northeast of Newport, 9 miles west of Cardigan, and 20 miles north of Haverfordwest. The village lies along the A487 trunk road, providing convenient access to the coastal towns of Newport and Fishguard as well as the wider road network across Pembrokeshire and Ceredigion.
The area is predominantly agricultural, characterised by open countryside, rolling hills, and scenic views towards the Preseli Mountains. Eglwyswrw benefits from a strong local community, with amenities including a primary school (Ysgol Eglwyswrw), a parish church, and a public house. Additional services, supermarkets, and secondary education facilities are available in nearby Cardigan.
The locality is popular among those seeking a peaceful rural lifestyle within easy reach of the Pembrokeshire Coast National Park, renowned for its walking trails, beaches, and wildlife.
Sitting Room
Radiator, uPVC double glazed window, door to:
Living/Dining/Kitchen
Recently installed kitchen with a modern range of wall and base units with work top over, inset stainless steel sink unit with mixer tap over, built in electric oven, hob with extractor fan over, exposed beams, wood effect laminate flooring to kitchen area, uPVC double glazed windows, radiator, under stairs cupboard. Wooden stable door to:
Rear Lobby
uPVC double glazed window, uPVC door to outside.
Wet Room
Toilet, pedestal hand wash basin, electric shower, tiled walls, uPVC double glazed window, heated towel rail, extractor fan.
Utility Room
Base cabinet with stainless steel sink unit, void and plumbing for washing machine.
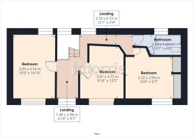
Landing
Dual aspect windows, loft access, doors to:
Bedroom One
Dual aspect windows, exposed floor boards, radiator.
Bedroom Two
uPVC double glazed window to the front elevation, exposed floor boards, radiator, picture rail.
Bedroom Three
uPVC double glazed window, picture rail, radiator, built in wardrobes.
Family Bathroom
Three piece suite with panel bath, toilet, pedestal hand wash basin, panelled walls, shaver socket, uPVC double glazed window.
Utilities & Services
Heating Source: Oil fired central heating.
Services:
Electric: Mains
Water: Mains
Drainage: tbc
Tenure: Freehold and available with vacant possession upon completion.
Local Authority: Pembrokeshire County Council
Council Tax: Band E
What3Words: ///weep.reefs.joyously
Anti Money Laundering & Ability To Purchase
Please note when making an offer we will require information to enable us to confirm all parties identities as required by Anti Money Laundering (AML) Regulations. We may also conduct a digital search to confirm your identity.
We will also require full proof of funds such as a mortgage agreement in principle, proof of cash deposit or if no mortgage is required, we will require sight of a bank statement. Should the purchase be funded through the sale of another property, we will require confirmation the sale is sufficient enough to cover the purchase.
Broadband Availability
According to the Ofcom website, this property has both standard and ultrafast broadband available, with speeds up to Standard 0.8mbps upload and 7mbps download and Ultrafast 220mbps upload and 1800mbps download. Please note this data was obtained from an online search conducted on ofcom.org.uk and was correct at the time of production.
Some rural areas are yet to have the infrastructure upgraded and there are alternative options which include satellite and mobile broadband available. Prospective buyers should make their own enquiries into the availability of services with their chosen provider.
Mobile Phone Coverage
The Ofcom website states that the property has the following imobile coverage
EE Good outdoor, variable indoor
Three Good outdoor, variable indoor
O2 Good outdoor
Vodafone. Good outdoor
Results are predictions and not a guarantee. Actual services available may be different from results and may be affected by network outages. Please note this data was obtained from an online search conducted on ofcom.org.uk and was correct at the time of production. Prospective buyers should make their own enquiries into the availability of services with their chosen provider.
Brochures
Property Brochure- COUNCIL TAXA payment made to your local authority in order to pay for local services like schools, libraries, and refuse collection. The amount you pay depends on the value of the property.Read more about council Tax in our glossary page.
- Band: E
- PARKINGDetails of how and where vehicles can be parked, and any associated costs.Read more about parking in our glossary page.
- Yes
- GARDENA property has access to an outdoor space, which could be private or shared.
- Yes
- ACCESSIBILITYHow a property has been adapted to meet the needs of vulnerable or disabled individuals.Read more about accessibility in our glossary page.
- Ask agent
Energy performance certificate - ask agent
Eglwyswrw, Crymych, SA41
Add an important place to see how long it'd take to get there from our property listings.
__mins driving to your place
Get an instant, personalised result:
- Show sellers you’re serious
- Secure viewings faster with agents
- No impact on your credit score
Affordability
Notes
Staying secure when looking for property
Ensure you're up to date with our latest advice on how to avoid fraud or scams when looking for property online.
Visit our security centre to find out moreDisclaimer - Property reference a09191f4-1e11-464f-bf3d-824fc98da349. The information displayed about this property comprises a property advertisement. Rightmove.co.uk makes no warranty as to the accuracy or completeness of the advertisement or any linked or associated information, and Rightmove has no control over the content. This property advertisement does not constitute property particulars. The information is provided and maintained by JJ Morris, Cardigan. Please contact the selling agent or developer directly to obtain any information which may be available under the terms of The Energy Performance of Buildings (Certificates and Inspections) (England and Wales) Regulations 2007 or the Home Report if in relation to a residential property in Scotland.
*This is the average speed from the provider with the fastest broadband package available at this postcode. The average speed displayed is based on the download speeds of at least 50% of customers at peak time (8pm to 10pm). Fibre/cable services at the postcode are subject to availability and may differ between properties within a postcode. Speeds can be affected by a range of technical and environmental factors. The speed at the property may be lower than that listed above. You can check the estimated speed and confirm availability to a property prior to purchasing on the broadband provider's website. Providers may increase charges. The information is provided and maintained by Decision Technologies Limited. **This is indicative only and based on a 2-person household with multiple devices and simultaneous usage. Broadband performance is affected by multiple factors including number of occupants and devices, simultaneous usage, router range etc. For more information speak to your broadband provider.
Map data ©OpenStreetMap contributors.






