
Fen Lane, Dunston, Lincoln

- PROPERTY TYPE
Semi-Detached
- BEDROOMS
4
- BATHROOMS
2
- SIZE
Ask agent
- TENUREDescribes how you own a property. There are different types of tenure - freehold, leasehold, and commonhold.Read more about tenure in our glossary page.
Freehold
Key features
- Semi-Detached Family Home
- Beautifully Extended & Refurbished
- Pleasant Village Location
- 4 Bedrooms & 2 Bathrooms
- Superb Living Accommodation
- Generous Driveway
- Substantial Rear Garden
- Call Today To View!
Description
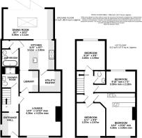
Entrance Hallway
Having a part-glazed front entrance door, bespoke fitted shoe bench with complementary cloak cupboard and shelving, wood-effect luxury vinyl flooring, radiator, coved ceiling, and stairs rising to the first floor.
Ground Floor Shower Room
Having a luxury 3-piece suite comprising a double tiled shower cubicle with mains-fed rainfall shower, additional handheld shower and sliding glass shower door, wall hung wash hand basin with vanity unit beneath, a low-level WC, ceramic tiled floor, heated towel rail, attractive marble effect tiled walls, LED downlights and an extractor.
Lounge
13' 10'' x 14' 4'' (4.21m x 4.37m)
Having a feature cast-iron open fire with granite tiled hearth and wooden surround, wood effect luxury vinyl flooring, a radiator and coved ceiling.
Library
7' 2'' x 6' 2'' (2.18m x 1.88m)
Having bespoke fitted bookshelves/display shelving with storage beneath, wood effect luxury vinyl flooring, a radiator, and coved ceiling.
Kitchen
11' 5'' x 9' 7'' (3.48m x 2.92m)
Having a bespoke range of wall and base units with quartz work surfacing, Peninsula unit incorporating a breakfast bar with an inset one-and-a-half bowl sink unit with mixer taps over and pendant lighting over, 2 pantry style larder units, cooking range with cooker hood over, space for an Amercian style fridge freezer, integral dishwasher, concealed bins, a radiator, vaulted ceiling with Velux window and LED downlights. Opening into:
Dining Room
16' 7'' x 10' 2'' (5.05m x 3.10m)
Having wood-effect luxury vinyl flooring, a roof lantern, a radiator, LED downlights, and large bi-fold doors overlooking the rear garden.
Utility/Pantry
7' 4'' x 7' 2'' (2.23m x 2.18m)
Having a bespoke range of quality fitted units to include a larder unit, display shelving, quartz work surfacing, plumbing for a washing machine with space for a tumble dryer over, wine cooler, concealed laundry basket, wood effect luxury vinyl flooring, and coved ceiling.
Ground Floor Bathroom
Having a luxury 3-piece suite comprising a panelled bath with central mixer taps over, mains-fed rainfall shower, additional handheld shower and folding glass shower screen, circular wash hand basin with vanity unit beneath, low-level WC, ceramic tiled floor, heated towel rail, attractive marble-effect tiled walls and extractor.
First Floor Landing
Having access to part boarded loft with a loft ladder and lighting.
Master Bedroom
14' 4'' max x 9' 10'' (4.37m x 2.99m)
Having a bespoke fitted dressing room/wardrobe area with a range of quality fitted units, drawers and hanging rail, a radiator, coved ceiling and LED downlights.
Bedroom 2
11' 1'' x 9' 9'' (3.38m x 2.97m)
Having a radiator and coved ceiling.
Bedroom 3
9' 10'' x 9' 8'' (2.99m x 2.94m)
Having a window with views over the garden and countryside beyond, a radiator, and a coved ceiling.
Bedroom 4
9' 10'' min x 7' 2'' (2.99m x 2.18m)
Having a window with views over the garden and countryside beyond, a radiator and coved ceiling.
First Floor WC
Having a low-level WC with a concealed cistern, a wash hand basin set in a vanity unit, tiled effect laminate vinyl flooring, coved ceiling, and an extractor.
Outside Front
To the front of the property, there is a gravelled driveway with space for at least 2 vehicles, a storm porch leading to the front entrance door.
Outside Rear
To the rear of the property, there is a substantial garden, predominantly laid to lawn with 2 patio/entertaining areas, a concrete sectional garage/workshop, a children's play area, 2 garden sheds, and outside lighting.
Brochures
Property BrochureFull Details- COUNCIL TAXA payment made to your local authority in order to pay for local services like schools, libraries, and refuse collection. The amount you pay depends on the value of the property.Read more about council Tax in our glossary page.
- Band: B
- PARKINGDetails of how and where vehicles can be parked, and any associated costs.Read more about parking in our glossary page.
- Yes
- GARDENA property has access to an outdoor space, which could be private or shared.
- Yes
- ACCESSIBILITYHow a property has been adapted to meet the needs of vulnerable or disabled individuals.Read more about accessibility in our glossary page.
- Ask agent
Energy performance certificate - ask agent
Fen Lane, Dunston, Lincoln
Add an important place to see how long it'd take to get there from our property listings.
__mins driving to your place
Get an instant, personalised result:
- Show sellers you’re serious
- Secure viewings faster with agents
- No impact on your credit score
Your mortgage
Notes
Staying secure when looking for property
Ensure you're up to date with our latest advice on how to avoid fraud or scams when looking for property online.
Visit our security centre to find out moreDisclaimer - Property reference 12751590. The information displayed about this property comprises a property advertisement. Rightmove.co.uk makes no warranty as to the accuracy or completeness of the advertisement or any linked or associated information, and Rightmove has no control over the content. This property advertisement does not constitute property particulars. The information is provided and maintained by Starkey & Brown, Lincoln. Please contact the selling agent or developer directly to obtain any information which may be available under the terms of The Energy Performance of Buildings (Certificates and Inspections) (England and Wales) Regulations 2007 or the Home Report if in relation to a residential property in Scotland.
*This is the average speed from the provider with the fastest broadband package available at this postcode. The average speed displayed is based on the download speeds of at least 50% of customers at peak time (8pm to 10pm). Fibre/cable services at the postcode are subject to availability and may differ between properties within a postcode. Speeds can be affected by a range of technical and environmental factors. The speed at the property may be lower than that listed above. You can check the estimated speed and confirm availability to a property prior to purchasing on the broadband provider's website. Providers may increase charges. The information is provided and maintained by Decision Technologies Limited. **This is indicative only and based on a 2-person household with multiple devices and simultaneous usage. Broadband performance is affected by multiple factors including number of occupants and devices, simultaneous usage, router range etc. For more information speak to your broadband provider.
Map data ©OpenStreetMap contributors.








