2 bedroom flat for sale
Cathcart Road [, Glasgow

- PROPERTY TYPE
Flat
- BEDROOMS
2
- BATHROOMS
1
- SIZE
Ask agent
- TENUREDescribes how you own a property. There are different types of tenure - freehold, leasehold, and commonhold.Read more about tenure in our glossary page.
Freehold
Key features
- Gas central heating
- Modern flooring throughout
- Well-maintained communal close
- Traditional sandstone tenement
- Open Day Saturday 17th January @ 11:45am till 12:15pm
Description
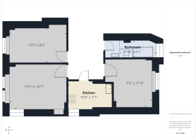
Approximate internal area: 514 sq ft
Accommodation
Lounge / Living Room
A bright and spacious main living area, finished in neutral décor with modern flooring and excellent natural light.
• Suitable for both lounge and dining furniture
• Large window formation to the front
Kitchen
10`0` x 7`1`
(3.05 m x 2.16 m)
Freshly fitted kitchen with modern wall and base units, integrated oven, gas hob, tiled splashback, and contrasting worktops. Practical layout with space for appliances and natural ventilation.
Bedroom One (Front-Facing Double)
13`5` x 10`7`
(4.09 m x 3.23 m)
A generous double bedroom with excellent floor space for wardrobes and additional storage. Bright aspect and finished in light, neutral tones.
Bedroom Two
13`5` x 8`3`
(4.09 m x 2.51 m)
A well-proportioned second bedroom, ideal for a guest room, home office, or nursery, quietly positioned within the property.
Bathroom
8`10` x 4`1`
(2.69 m x 1.24 m)
Freshly upgraded bathroom comprising a white suite with bath and overhead electric shower, WC, and wash-hand basin. Fully tiled walls and window providing natural light.
Local Area & Amenities
Cathcart Road offers a wide range of local shops, cafés, supermarkets, and services, with Shawlands, Mount Florida, and Glasgow City Centre all easily accessible.
Schools
A good selection of local primary and secondary schools serve the area, making the property suitable for families and professionals alike.
Transport Links
Rail: Nearby stations provide regular services to Glasgow Central
Road: Easy access to the M74 and onward routes to Edinburgh
Bus: Frequent services along Cathcart Road
Broadband & Connectivity
Superfast broadband available
Suitable for home working, streaming, and multiple devices
Notice
Please note we have not tested any apparatus, fixtures, fittings, or services. Purchasers must undertake their own investigation into the working order of these items. All measurements are approximate and photographs provided for guidance only.
Brochures
Web Details- COUNCIL TAXA payment made to your local authority in order to pay for local services like schools, libraries, and refuse collection. The amount you pay depends on the value of the property.Read more about council Tax in our glossary page.
- Band: B
- PARKINGDetails of how and where vehicles can be parked, and any associated costs.Read more about parking in our glossary page.
- Ask agent
- GARDENA property has access to an outdoor space, which could be private or shared.
- Ask agent
- ACCESSIBILITYHow a property has been adapted to meet the needs of vulnerable or disabled individuals.Read more about accessibility in our glossary page.
- Ask agent
Energy performance certificate - ask agent
Cathcart Road [, Glasgow
Add an important place to see how long it'd take to get there from our property listings.
__mins driving to your place
Get an instant, personalised result:
- Show sellers you’re serious
- Secure viewings faster with agents
- No impact on your credit score



Your mortgage
Notes
Staying secure when looking for property
Ensure you're up to date with our latest advice on how to avoid fraud or scams when looking for property online.
Visit our security centre to find out moreDisclaimer - Property reference 3121_PRGP. The information displayed about this property comprises a property advertisement. Rightmove.co.uk makes no warranty as to the accuracy or completeness of the advertisement or any linked or associated information, and Rightmove has no control over the content. This property advertisement does not constitute property particulars. The information is provided and maintained by AVJ Homes, Glasgow. Please contact the selling agent or developer directly to obtain any information which may be available under the terms of The Energy Performance of Buildings (Certificates and Inspections) (England and Wales) Regulations 2007 or the Home Report if in relation to a residential property in Scotland.
*This is the average speed from the provider with the fastest broadband package available at this postcode. The average speed displayed is based on the download speeds of at least 50% of customers at peak time (8pm to 10pm). Fibre/cable services at the postcode are subject to availability and may differ between properties within a postcode. Speeds can be affected by a range of technical and environmental factors. The speed at the property may be lower than that listed above. You can check the estimated speed and confirm availability to a property prior to purchasing on the broadband provider's website. Providers may increase charges. The information is provided and maintained by Decision Technologies Limited. **This is indicative only and based on a 2-person household with multiple devices and simultaneous usage. Broadband performance is affected by multiple factors including number of occupants and devices, simultaneous usage, router range etc. For more information speak to your broadband provider.
Map data ©OpenStreetMap contributors.




