
Land for sale
Gosford Road, Longniddry, East Lothian
- PROPERTY TYPE
Land
- BEDROOMS
4
- BATHROOMS
4
- SIZE
3,229 sq ft
300 sq m
Description
BOTH PLOTS AVAILABLE TOGETHER FOR £650,000.
The land at Davanmore presents a rare opportunity to acquire an attractive residential plot with planning consent on the sought-after Gosford Road in the coastal village of Longniddry, East Lothian.
The land consists of two available plots with the option to acquire both together as one larger plot.
The front plot has planning consent for a two-storey 2,982sqft 4-bed house set on approximately 0.15 acres of land
The rear plot has planning consent for a two-storey 3,552sqft 4-bed house set on approximately 0.25 acres of land
The planning application can be found on East Lothian Council Planning Portal (24/01416/P).
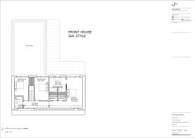
(Front Plot)
The approved home design features an external terrace, single-car garage, driveway and garden.
The proposed layout features an ‘L’ shaped formation, framing a courtyard garden to the south of the property. The house features one double bedroom on the ground floor with two double bedrooms and a master suite on the first floor. The property features a total of four bathrooms.
On the ground floor, a spacious open plan kitchen, living and dining space provides garden access and the generous family snug also provides access to the garden through double sliding doors. The house is accessed directly from a new driveway off Gosford Road.
(Rear Plot)
The approved home design features an external terrace, double car port and storage facility, driveway and generous garden.
The proposed layout features an ‘L’ shaped formation, framing a courtyard garden to the south of the property.
The house has four bedrooms, featuring one double bedroom on the ground floor with two double bedrooms and a master suite on the first floor.
Brochures
ParticularsGosford Road, Longniddry, East Lothian
NEAREST STATIONS
Distances are straight line measurements from the centre of the postcode- Longniddry Station0.5 miles
- Prestonpans Station3.5 miles
- Drem Station4.7 miles
Notes
Disclaimer - Property reference DEV250002. The information displayed about this property comprises a property advertisement. Rightmove.co.uk makes no warranty as to the accuracy or completeness of the advertisement or any linked or associated information, and Rightmove has no control over the content. This property advertisement does not constitute property particulars. The information is provided and maintained by Rettie, Edinburgh. Please contact the selling agent or developer directly to obtain any information which may be available under the terms of The Energy Performance of Buildings (Certificates and Inspections) (England and Wales) Regulations 2007 or the Home Report if in relation to a residential property in Scotland.
Map data ©OpenStreetMap contributors.










