
4 bedroom end of terrace house for sale
Chapelgate Mews, Essex

- PROPERTY TYPE
End of Terrace
- BEDROOMS
4
- BATHROOMS
2
- SIZE
1,329 sq ft
124 sq m
- TENUREDescribes how you own a property. There are different types of tenure - freehold, leasehold, and commonhold.Read more about tenure in our glossary page.
Freehold
Key features
- Contemporary family homes crafted for modern living
- Designer kitchens with quartz worktops and integrated appliances
- Luxury bathrooms with sleek, high-end finishes
- Energy-efficient design with air source heat pumps and EV charging
- Peaceful landscaped setting with a strong sense of community
- Exceptional Basildon location with fast links to London
Description
Chapelgate, Basildon
A Modern Collection of Elegant Family Homes by Sempra Homes
Welcome to Chapelgate, an exceptional new development by Sempra Homes, offering a beautifully crafted collection of two, three, and four bedroom houses in the heart of Basildon. Designed with modern living in mind, these stunning homes combine elegant architecture, premium finishes, and sustainable technology to create a truly contemporary lifestyle.
Each home at Chapelgate has been thoughtfully designed to blend style and functionality. Spacious open-plan living areas are filled with natural light, creating a warm and inviting atmosphere perfect for family life or entertaining. At the centre of every home is a Symphony kitchen, complete with sleek handleless cabinetry, luxurious quartz worktops, and a suite of integrated Electrolux appliances, bringing together beauty, practicality, and quality craftsmanship.
The bathrooms and ensuites continue the sense of refinement, featuring Ideal Standard fittings, chrome accents, and large-format ceramic tiling for a polished, modern finish. Throughout, each home is completed with high-quality flooring and soft wool carpets, offering a timeless, neutral palette ready for you to make your own.
Built to the highest energy standards, Chapelgate homes are designed for sustainable, efficient living. Every property includes an air source heat pump and mechanical ventilation with heat recovery, ensuring comfort and cost efficiency all year round. LED lighting, high-performance insulation, and EV charging points come as standard, while landscaped gardens and tree-lined streets create a peaceful, green setting that enhances the sense of community.
Perfectly positioned on the edge of Basildon Town Centre, Chapelgate offers the ideal balance of convenience and connection. A range of shops, cafés, and leisure facilities are just a short walk away, while Basildon Station provides direct rail links to London Fenchurch Street in under thirty-five minutes. With the A13 and A127 close by, travelling across Essex and beyond couldn’t be easier, making Chapelgate perfectly placed for modern family life.
Built with care, pride, and attention to detail, Chapelgate by Sempra Homes represents a new benchmark for quality living in Basildon. These are homes designed for the way you live today — stylish, efficient, and future-ready — creating a vibrant new community at the heart of the town’s exciting regeneration.
T&Cs*Please note images are for information purposes only and may not represent a true likeness for the units being sold. Some or all images have been digitally furnished to represent how the home could be laid out and the final colours/appearance may differ from the images.*Services Charges will apply, speak to our Sales Agent for more information. Costs are subject to change.
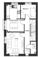
Living Room
3.37m x 4.05m
Kitchen / Diner
2.68m x 5.08m
Bedroom
3.41m x 3.47m
Bedroom Two
2.68m x 4m
Bedroom Three
2.89m x 2.64m
Bedroom Four
2.89m x 2.64m
Bathroom
2.15m x 2.28m
Ensuite
2.15m x 2.51
Disclaimer
haart Estate Agents also offer a professional, ARLA accredited Lettings and Management Service. If you are considering renting your property in order to purchase, are looking at buy to let or would like a free review of your current portfolio then please call the Lettings Branch Manager on the number shown above.
haart Estate Agents is the seller's agent for this property. Your conveyancer is legally responsible for ensuring any purchase agreement fully protects your position. We make detailed enquiries of the seller to ensure the information provided is as accurate as possible. Please inform us if you become aware of any information being inaccurate.
Brochures
Brochure- COUNCIL TAXA payment made to your local authority in order to pay for local services like schools, libraries, and refuse collection. The amount you pay depends on the value of the property.Read more about council Tax in our glossary page.
- Ask agent
- PARKINGDetails of how and where vehicles can be parked, and any associated costs.Read more about parking in our glossary page.
- Ask agent
- GARDENA property has access to an outdoor space, which could be private or shared.
- Yes
- ACCESSIBILITYHow a property has been adapted to meet the needs of vulnerable or disabled individuals.Read more about accessibility in our glossary page.
- Ask agent
Energy performance certificate - ask agent
Chapelgate Mews, Essex
Add an important place to see how long it'd take to get there from our property listings.
__mins driving to your place
Get an instant, personalised result:
- Show sellers you’re serious
- Secure viewings faster with agents
- No impact on your credit score
Your mortgage
Notes
Staying secure when looking for property
Ensure you're up to date with our latest advice on how to avoid fraud or scams when looking for property online.
Visit our security centre to find out moreDisclaimer - Property reference 0097_HRT009721252. The information displayed about this property comprises a property advertisement. Rightmove.co.uk makes no warranty as to the accuracy or completeness of the advertisement or any linked or associated information, and Rightmove has no control over the content. This property advertisement does not constitute property particulars. The information is provided and maintained by haart, Basildon. Please contact the selling agent or developer directly to obtain any information which may be available under the terms of The Energy Performance of Buildings (Certificates and Inspections) (England and Wales) Regulations 2007 or the Home Report if in relation to a residential property in Scotland.
*This is the average speed from the provider with the fastest broadband package available at this postcode. The average speed displayed is based on the download speeds of at least 50% of customers at peak time (8pm to 10pm). Fibre/cable services at the postcode are subject to availability and may differ between properties within a postcode. Speeds can be affected by a range of technical and environmental factors. The speed at the property may be lower than that listed above. You can check the estimated speed and confirm availability to a property prior to purchasing on the broadband provider's website. Providers may increase charges. The information is provided and maintained by Decision Technologies Limited. **This is indicative only and based on a 2-person household with multiple devices and simultaneous usage. Broadband performance is affected by multiple factors including number of occupants and devices, simultaneous usage, router range etc. For more information speak to your broadband provider.
Map data ©OpenStreetMap contributors.







