
Land for sale
Land to the North of, 13 Plantation Road, Boreham, Chelmsford, Essex, CM3 3EA
- PROPERTY TYPE
Land
- SIZE
Ask agent
Key features
- Freehold
- Open Site
Description
DEVELOPMENT OPPORTUNITY: PARCEL OF LAND IN POPULAR VILLAGE WITH OUTLINE PLANNING PERMISSION FOR DEVELOPMENT OF A FOUR BEDROOM DETACHED HOUSE
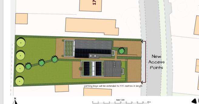
Outline planning permission was granted on 21st February 2025 for the demolition of garaging and erection of a 4 bedroom dwelling on land to north of 13 Plantation Road. All matters reserved. The plot measures approximately 399.74 m (4,303 ft) and is located in a popular village on the outskirts of the city of Chelmsford, offering easy access to the A12 to London and beyond. It is considered that the developed home could be a popular among home buyers due to the desired and convenient location.
The plot measures approximately 399.74 m (4,303 ft) and is mainly lawn with some concrete hard standing areas.
In accordance with the approved outline plans, there would be new access points and driveways for both the new dwelling and the adjacent property (13 Plantation Road). For more information relating to the approved plans, please visit the Chelmsford City Council website using reference 24/01732/OUT.
For all other planning enquiries please call their planning department on
Four bedroom detached house with driveway and front and rear gardens.
Detached double garage with up and over doors and flat roof.
Brochures
Legal DocumentsLand to the North of, 13 Plantation Road, Boreham, Chelmsford, Essex, CM3 3EA
NEAREST STATIONS
Distances are straight line measurements from the centre of the postcode- Hatfield Peverel Station2.4 miles
- Chelmsford Station3.7 miles
- Witham Station5.2 miles
Notes
Disclaimer - Property reference 327455. The information displayed about this property comprises a property advertisement. Rightmove.co.uk makes no warranty as to the accuracy or completeness of the advertisement or any linked or associated information, and Rightmove has no control over the content. This property advertisement does not constitute property particulars. The information is provided and maintained by Dedman Gray Auctions, Essex. Please contact the selling agent or developer directly to obtain any information which may be available under the terms of The Energy Performance of Buildings (Certificates and Inspections) (England and Wales) Regulations 2007 or the Home Report if in relation to a residential property in Scotland.
Auction Fees: The purchase of this property may include associated fees not listed here, as it is to be sold via auction. To find out more about the fees associated with this property please call Dedman Gray Auctions, Essex on 01702 311010.
*Guide Price: An indication of a seller's minimum expectation at auction and given as a Guide Price or a range of Guide Prices. This is not necessarily the figure a property will sell for and is subject to change prior to the auction.
Reserve Price: Each auction property will be subject to a Reserve Price below which the property cannot be sold at auction. Normally the Reserve Price will be set within the range of Guide Prices or no more than 10% above a single Guide Price.
Map data ©OpenStreetMap contributors.








