
Milton Under Wychwood, OX7
- PROPERTY TYPE
Plot
- BEDROOMS
4
- BATHROOMS
3
- SIZE
2,100 sq ft
195 sq m
Key features
- Plot with planning permission granted
- 2,100 sq. ft. home
- Cotswold stone design
- Three / four bedrooms
- Garage and driveway parking
- Idyllic village setting
- Rare opportunity
Description
A rare opportunity to create a beautifully proportioned family home in the heart of the highly regarded village of Milton-under-Wychwood, where countryside walks and everyday amenities sit quite literally on your doorstep.
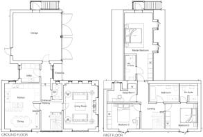
The plot benefits from full planning permission for an attractive 2,100 sq ft detached family home, designed in traditional Cotswold stone to complement its village setting. The approved scheme provides spacious and flexible accommodation, ideal for modern family living, with three / bedrooms and well-balanced living spaces.
The proposed layout includes light-filled reception areas and a practical flow suited to both everyday life and entertaining. Externally, the design incorporates a double garage alongside driveway parking.
Set within the village core, the location is a particular highlight. Milton-under-Wychwood is known for its strong community, excellent local amenities and easy access to open countryside, making it one of the area’s most sought-after places to live. The surrounding landscape offers outstanding walking and riding, while nearby transport links provide convenient connections to wider Cotswold towns, Oxford and London
Opportunities to build a new Cotswold stone home in such a prime village position are increasingly rare, making this an exceptional proposition for those seeking to create a long-term family residence tailored to their own requirements.
Please contact us for further information and approved plans.
*Please note images are CGI
West Oxfordshire District Council : 25/00744/FUL
Freehold | Council Tax TBC | EPC TBC
*Please note the sellers of this property are employees of Harvey Holland
Brochures
BrochureMilton Under Wychwood, OX7
NEAREST STATIONS
Distances are straight line measurements from the centre of the postcode- Shipton Station0.9 miles
- Ascott-under-Wychwood Station2.1 miles
- Kingham Station3.0 miles
Notes
Disclaimer - Property reference b4043cd4-979d-4a8f-a219-cc8106cbd0ea. The information displayed about this property comprises a property advertisement. Rightmove.co.uk makes no warranty as to the accuracy or completeness of the advertisement or any linked or associated information, and Rightmove has no control over the content. This property advertisement does not constitute property particulars. The information is provided and maintained by Harvey Holland, Cotswolds. Please contact the selling agent or developer directly to obtain any information which may be available under the terms of The Energy Performance of Buildings (Certificates and Inspections) (England and Wales) Regulations 2007 or the Home Report if in relation to a residential property in Scotland.
Map data ©OpenStreetMap contributors.






