
1 Cleveden Crescent, Kelvinside, G12

- PROPERTY TYPE
Flat
- BEDROOMS
4
- BATHROOMS
1
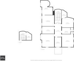
- SIZE
2,303 sq ft
214 sq m
- TENUREDescribes how you own a property. There are different types of tenure - freehold, leasehold, and commonhold.Read more about tenure in our glossary page.
Ask agent
Description
##CLOSING DATE SET FOR FRIDAY 13TH FEBRUARY AT 12.00PM##
Number One Cleveden Crescent occupies the entire first floor of one of the West End’s most impressive blonde sandstone townhouses.
It’s broad, elegant, and confident. At just over 2,300 square feet, it’s also substantial, the sort of scale that doesn’t appear very often, particularly at first-floor level, and on Cleveden Crescent.
The position is a big part of the story. Elevated above Cleveden Drive, the flat enjoys full, south-facing aspects to the front, with sunlight tracking across the principal rooms from early morning through to the evening. Being double-aspect, the light isn’t fleeting or one-directional, it’s a constant presence throughout the day.
Inside, the proportions are exactly what you’d hope for in a building of this calibre, high ceilings and generous space.
The current layout works, and the flat is liveable as it stands, but it also invites a different conversation. The internal arrangement lends itself beautifully to reconfiguration, whether that’s opening things up, rebalancing bedroom space, or creating a kitchen and living arrangement that better suits modern living, subject to relevant planning consent.
This is a home where a new owner can put their own stamp on it, without compromise.
There are four bedrooms, one of which provides access to a small terrace area positioned above the communal entrance. While modest in size, it’s a lovely, unexpected feature, currently home to potted plants and offering a quiet spot to step outside. There is also a private storage cupboard, off the communal entrance hall.
The flat has been owned by the same family for over 55 years. It’s a home that has clearly been loved, lived in, and looked after, but it’s fair to say it now requires upgrading and modernisation.
Properties of this size, in this position, with this level of flexibility, rarely come to market in the West End, and when they do, they’re usually already fully refurbished.
Here, you’re starting with the fundamentals: scale, light, outlook, and address.
And then there’s the setting. Cleveden Crescent is rightly admired, not just for the architecture, but for the beautifully maintained residents’ gardens to the front. They create a sense of calm and separation from the city, with open views across to the villas on Cleveden Drive beyond. It’s one of those West End locations that feels both established and special, and it rewards long-term ownership.
To be clear, calling something “rare” is easy. Flats like this make the case for you. A first-floor conversion, over 2,300 square feet, south-facing, double-aspect, with gardens, outlook, and the freedom to reimagine the space, on one of the West End’s most prestigious crescents. There simply isn’t much to compare it to.
This is a home for someone who values proportion over polish, light over trend, and the chance to create something exceptional.
Whilst every effort is made by Yates Hellier to ensure the accuracy of these details, it should be noted that measurements are approximate and all information including service charges, ground ownership and school catchment has been provided by the vendor and their accuracy cannot be guaranteed and should be verified through your solicitor and local council.
Brochures
Home Report- COUNCIL TAXA payment made to your local authority in order to pay for local services like schools, libraries, and refuse collection. The amount you pay depends on the value of the property.Read more about council Tax in our glossary page.
- Band: G
- LISTED PROPERTYA property designated as being of architectural or historical interest, with additional obligations imposed upon the owner.Read more about listed properties in our glossary page.
- Listed
- PARKINGDetails of how and where vehicles can be parked, and any associated costs.Read more about parking in our glossary page.
- Yes
- GARDENA property has access to an outdoor space, which could be private or shared.
- Yes
- ACCESSIBILITYHow a property has been adapted to meet the needs of vulnerable or disabled individuals.Read more about accessibility in our glossary page.
- Ask agent
Energy performance certificate - ask agent
1 Cleveden Crescent, Kelvinside, G12
Add an important place to see how long it'd take to get there from our property listings.
__mins driving to your place
Affordability
Get an instant, personalised result:
- Show sellers you’re serious
- Secure viewings faster with agents
- No impact on your credit score
Notes
Staying secure when looking for property
Ensure you're up to date with our latest advice on how to avoid fraud or scams when looking for property online.
Visit our security centre to find out moreDisclaimer - Property reference fd9bba2f-b7cf-47d1-a9aa-528db26bd4e4. The information displayed about this property comprises a property advertisement. Rightmove.co.uk makes no warranty as to the accuracy or completeness of the advertisement or any linked or associated information, and Rightmove has no control over the content. This property advertisement does not constitute property particulars. The information is provided and maintained by Yates Hellier, Glasgow. Please contact the selling agent or developer directly to obtain any information which may be available under the terms of The Energy Performance of Buildings (Certificates and Inspections) (England and Wales) Regulations 2007 or the Home Report if in relation to a residential property in Scotland.
*This is the average speed from the provider with the fastest broadband package available at this postcode. The average speed displayed is based on the download speeds of at least 50% of customers at peak time (8pm to 10pm). Fibre/cable services at the postcode are subject to availability and may differ between properties within a postcode. Speeds can be affected by a range of technical and environmental factors. The speed at the property may be lower than that listed above. You can check the estimated speed and confirm availability to a property prior to purchasing on the broadband provider's website. Providers may increase charges. The information is provided and maintained by Decision Technologies Limited. **This is indicative only and based on a 2-person household with multiple devices and simultaneous usage. Broadband performance is affected by multiple factors including number of occupants and devices, simultaneous usage, router range etc. For more information speak to your broadband provider.
Map data ©OpenStreetMap contributors.





