Skip to content

4 bedroom village house for sale

Pioussay, Deux-Sèvres, Poitou-Charentes, France

£150,939
€174,900
Ma Maison Française, Melleran
PROPERTY TYPE

Village House

BEDROOMS

4

BATHROOMS

3

SIZE

2,228 sq ft

207 sq m

Key features

  • Village
  • Spacious
  • Double glazing
  • Fireplace

Description

This lovely village house is well presented and offers spacious light filled accommodation with 4/5 beds and 3 bath/shower rooms, enclosed garden and barn and garage. Double glazed and centrally heated.

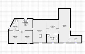
The dining room has a door and window to the front, fireplace with wood-burning stove, stairs up to first floor and opens to the kitchen. The kitchen is fully fitted with electric oven, gas hob and has a window to the front and side. The living room is double aspect. Large bedroom with window to the front and dressing room to the rear with a window to the rear. Hallway with door to the garden. Bathroom with bath, shower, sink, wc, window to the front and plumbing for a washing machine. Separate toilet.

On the first floor is a generous landing with window to the rear. Double bedroom with window to the front and en-suite shower room. Bedroom with window to the front. Large bedroom with window to the front and velux. Large dressing room which could be a bedroom. Shower room. Attic space could be used to enlarge the upstairs space.

The gardens are enclosed with a gravel drive and vehicle entrance gates. There is a garage, open hangar, 2 cellars and barn with entrance doors to the rear of the property, boiler room and further small cellar.

The property is in a pretty Charentaise village and is 11km from the market towns of Chef Boutonne and Sauzé-Vaussais. The airport at Poitiers is 45 minutes drive and the coast at La Rochelle is just over an hour.

Pioussay, Deux-Sèvres, Poitou-Charentes, France

Approximate location

NEAREST AIRPORTS

Distances are straight line measurements
  • Poitiers (Biard)(International)
    38.3 miles
  • Limoges(International)
    57.1 miles
  • Bergerac(International)
    89.0 miles
  • Bordeaux (Mérignac)(International)
    92.0 miles

Advice on buying French property

Learn everything you need to know to successfully find and buy a property in France.

About Ma Maison Française, Melleran

Notes

These notes are private, only you can see them.

This is a property advertisement provided and maintained by Ma Maison Française, Melleran (reference N446) and does not constitute property particulars. Whilst we require advertisers to act with best practice and provide accurate information, we can only publish advertisements in good faith and have not verified any claims or statements or inspected any of the properties, locations or opportunities promoted. Rightmove does not own or control and is not responsible for the properties, opportunities, website content, products or services provided or promoted by third parties and makes no warranties or representations as to the accuracy, completeness, legality, performance or suitability of any of the foregoing. We therefore accept no liability arising from any reliance made by any reader or person to whom this information is made available to. You must perform your own research and seek independent professional advice before making any decision to purchase or invest in overseas property.

Email agent

Email agent