
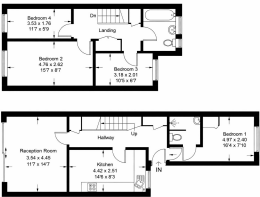
4 bedroom house for sale
Stainer Road, Borehamwood

- PROPERTY TYPE
House
- BEDROOMS
4
- BATHROOMS
2
- SIZE
979 sq ft
91 sq m
- TENUREDescribes how you own a property. There are different types of tenure - freehold, leasehold, and commonhold.Read more about tenure in our glossary page.
Freehold
Key features
- Three/Four Bedrooms
- Converted Garage Room
- Two Reception Rooms
- Large Kitchen/Dining Area
- Two Bathrooms
- Quiet Cul De Sac
- Southerly Rear Garden
- Off Street Parking
- Chain Free
Description
The accommodation comprises two well-proportioned reception rooms, providing flexible space for everyday living and entertaining. The layout is practical and well balanced, offering a comfortable and functional living environment. There are four bedrooms in total, suitable for family occupation or for those requiring additional space such as a home office. The property is further complemented by two bathrooms, offering added convenience.
Externally, the house benefits from off-street parking and a low-maintenance rear garden with a south-easterly aspect, allowing for good natural light.
The location offers convenient access to a number of major road links, including the A1, M1 and M25, along with local bus routes. Borehamwood Thameslink station is easily accessible and provides regular services into Central London. A range of local amenities, schools and green spaces can also be found nearby.
Brochures
Stainer Road, BorehamwoodBrochure- COUNCIL TAXA payment made to your local authority in order to pay for local services like schools, libraries, and refuse collection. The amount you pay depends on the value of the property.Read more about council Tax in our glossary page.
- Band: D
- PARKINGDetails of how and where vehicles can be parked, and any associated costs.Read more about parking in our glossary page.
- Off street
- GARDENA property has access to an outdoor space, which could be private or shared.
- Yes
- ACCESSIBILITYHow a property has been adapted to meet the needs of vulnerable or disabled individuals.Read more about accessibility in our glossary page.
- Ask agent
Stainer Road, Borehamwood
Add an important place to see how long it'd take to get there from our property listings.
__mins driving to your place
Get an instant, personalised result:
- Show sellers you’re serious
- Secure viewings faster with agents
- No impact on your credit score
Your mortgage
Notes
Staying secure when looking for property
Ensure you're up to date with our latest advice on how to avoid fraud or scams when looking for property online.
Visit our security centre to find out moreDisclaimer - Property reference 34458108. The information displayed about this property comprises a property advertisement. Rightmove.co.uk makes no warranty as to the accuracy or completeness of the advertisement or any linked or associated information, and Rightmove has no control over the content. This property advertisement does not constitute property particulars. The information is provided and maintained by Simmons Estates, Borehamwood. Please contact the selling agent or developer directly to obtain any information which may be available under the terms of The Energy Performance of Buildings (Certificates and Inspections) (England and Wales) Regulations 2007 or the Home Report if in relation to a residential property in Scotland.
*This is the average speed from the provider with the fastest broadband package available at this postcode. The average speed displayed is based on the download speeds of at least 50% of customers at peak time (8pm to 10pm). Fibre/cable services at the postcode are subject to availability and may differ between properties within a postcode. Speeds can be affected by a range of technical and environmental factors. The speed at the property may be lower than that listed above. You can check the estimated speed and confirm availability to a property prior to purchasing on the broadband provider's website. Providers may increase charges. The information is provided and maintained by Decision Technologies Limited. **This is indicative only and based on a 2-person household with multiple devices and simultaneous usage. Broadband performance is affected by multiple factors including number of occupants and devices, simultaneous usage, router range etc. For more information speak to your broadband provider.
Map data ©OpenStreetMap contributors.








