
4 bedroom detached bungalow for sale
New Biggin Hill, Newmillerdam, Wakefield

- PROPERTY TYPE
Detached Bungalow
- BEDROOMS
4
- BATHROOMS
2
- SIZE
Ask agent
- TENUREDescribes how you own a property. There are different types of tenure - freehold, leasehold, and commonhold.Read more about tenure in our glossary page.
Freehold
Key features
- Four Bedroom Detached Residence
- Secluded Location In Cul-De-Sac
- Breathtaking South Facing Gardens
- Extending To 0.29 Acres
- Expansive Driveway & Double Garage
- Contemporary Kitchen & Bathrooms
- Virtual Tour Available
- EPC Rating C69
Description
Positioned in a secluded and highly sought after location is this superbly presented and deceptively spacious four bedroom detached home extending to approximately 0.29 acres (0.12 hectares) and has been finished to exacting standards throughout.
The property is accessed via a welcoming central reception hall with a vaulted ceiling and four velux windows creating a light and airy first impression. A guest w.c. is located off the hallway for convenience. The main living room is of excellent proportions, featuring a bay window to the side, French doors opening onto the garden and multi fuel cast iron burner. A separate dining room with bi-folding doors leads through to a generously sized sun room, ideal for year round enjoyment. The dining kitchen is fitted to a high specification with contemporary shaker style units and central island. The principal bedroom is generously proportioned and benefits from fitted wardrobes. Two further well appointed bedrooms are located on the ground floor and are served by a stylish family bathroom. To the first floor, an additional guest bedroom enjoys the privacy of an en suite shower room.
One of the standout features of this property is its beautifully landscaped south-facing gardens, designed for both aesthetics and functionality. To the front, a meticulously maintained lawn with mature trees and planted borders frames a sweeping pebbled driveway providing off street parking for up to twelve vehicles alongside a central water feature fountain and access to the integral double garage with automated door. The rear gardens are thoughtfully divided into two main sections. The first includes an enclosed lawned area with allotment-style beds, a timber shed, and a pergola with built in seating, perfect for relaxation or entertaining. The second garden area, accessible from the sunroom and living room features a further lawn with Yorkshire stone patios offering a peaceful outdoor retreat. Additional external features include two timber sheds, a wood store, and a rear gate leading to a pathway with direct access to Hill Top Road, just a short walk from the picturesque Newmillerdam Country Park.
Situated in a discreet cul-de-sac on the edge of this highly desirable residential area, the property is well positioned for access to a wide range of amenities and well-regarded local schools. The city centre of Wakefield is close by, and the national motorway network is readily accessible, ideal for commuters.
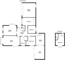
Accommodation -
Reception Hall - Double panelled wooden entrance doors, central heating radiator concealed in cabinet, solid wood flooring, vaulted ceiling incorporating four timber double glazed velux windows, coving to the ceiling, inset spotlights and loft access hatch.
W.C. - 1.9m x 0.9m (6'2" x 2'11") - Frosted window to the side and two piece white and chrome bathroom suite comprising laminate wash basin built into a high gloss vanity unit with chrome mixer tap and low flush w.c. Chrome ladder style ladder radiator, laminate flooring and extractor fan.
Dining Kitchen - 5.10m x 3.62m (16'8" x 11'10") - Range of contemporary wall and base shaker style units with quartz work surface over and tiled splash back, Belfast ceramic sink and drainer with swan neck mixer tap, integrated wine cooler, central island with breakfast bar, integrated twin oven and grill with five ring induction hob and extractor hood. Space for an American style fridge/freezer, integrated washing machine, integrated dryer, integrated full size dishwasher, composite side door, UPVC double glazed window to the side and UPVC double glazed box window with window seat to the front aspect. Coving to the ceiling, inset spotlights, two contemporary radiators and porcelain tiled floor.
Living Room - 6.4m x 3.7m (20'11" x 12'1") - French doors leading out to the back garden, square bay window to the side, two contemporary central heating radiators, coving to the ceiling and multi fuel cast iron burner inset onto a slate hearth with solid wooden mantle above.
Bedroom Four - 3.38mm x 1.72m (min) x 2.16m (max) (11'1"m x 5'7" - Window overlooking the rear garden, central heating radiator, coving to the ceiling, laminate flooring, storage cupboard and walk in wardrobe with fixed shelving and coat rack.
Bedroom Two - 3.5m x 2.9m (11'5" x 9'6") - Window overlooking the rear garden, central heating radiator, coving to the ceiling and built in double wardrobe.
Bedroom One - 3.02m x 4.33m plus walk in area (9'10" x 14'2" plu - Coving to the ceiling, timber double glazed window to the front aspect, central heating radiator and fitted wardrobes with mirror glass sliding doors.
Bathroom/W.C. - 2.81m x 2.75m (9'2" x 9'0") - Four piece suite comprising walk in shower cubicle with two glass shower screens, mixer shower and rain shower head, concealed cistern low flush w.c., vanity wash hand basin with drawers and chrome waterfall mixer tap, freestanding bath with chrome waterfall mixer tap. Fully tiled walls and floor. Inset spotlights, extractor fan, large ladder style radiator and timber double glazed frosted window to the rear aspect.
Dining Room - 5.0m x 3.3m (16'4" x 10'9") - Small window to the front, full width bi-folding doors to the sun room, solid wood flooring, central heating radiator and stairs to the first floor.
Sun Room - 5.47m x 3.54m (17'11" x 11'7") - Vaulted ceiling, inset spotlights, bi-folding doors to the rear flooring, laminate flooring and media wall with electric fireplace and built in TV unit.
Bedroom Three - 4.9m x 3.4m (16'0" x 11'1") - Timber double glazed window to the front elevation, central heating radiator, solid wood flooring and Velux roof lights to the side. Door to the modern en suite shower room.
En Suite Shower Room/W.C. - 0.75m (min) x 0.94 (max) x 2.76m (2'5" (min) x 3'1 - Modern three piece suite comprising enclosed shower cubicle with glass door and electric shower, concealed cistern low flush w.c. and wash basin with mixer tap. Fully tiled walls, laminate flooring, timber double glazed velux window to the vaulted ceiling, inset spotlights and ladder style radiator.
Outside - To the front of the property is an attractive lawned garden with mature trees and manicured planted borders. A generously proportioned pebbled driveway sweeps around the front providing off road parking for at least twelve vehicles with water feature fountain and access to the integral double garage with an automated up and over door to the front, window to the rear, power and light and a water point connection. To the rear are two timber sheds, wood store and bin store area. Steps lead up to a Yorkshire stone paved patio area, perfect for entertaining and dining purposes with a paved pathway leading to a paved seating area with privet hedges bordering. The rear garden is split into two sections with the first being an attractive enclosed lawned garden with allotment style beds, large timber shed and timber pergola with built in seating. The second lawned garden is accessed via the sun room and living room with Yorkshire stone paved patio overlooking an attractive lawn. A timber gate provides access down a pathway leading to Hill Top Road making it a short walk to Newmillerdam Country Park.
Location - For precise location details, the property can be found via What3Words: ///asserts.thank.bookings.
Council Tax Band - The council tax band for this property is F.
Floor Plans - These floor plans are intended as a rough guide only and are not to be intended as an exact representation and should not be scaled. We cannot confirm the accuracy of the measurements or details of these floor plans.
Viewings - To view please contact our Wakefield office and they will be pleased to arrange a suitable appointment.
Epc Rating - To view the full Energy Performance Certificate please call into one of our local offices.
Brochures
New Biggin Hill, Newmillerdam, WakefieldAdditional InformationBrochure- COUNCIL TAXA payment made to your local authority in order to pay for local services like schools, libraries, and refuse collection. The amount you pay depends on the value of the property.Read more about council Tax in our glossary page.
- Band: F
- PARKINGDetails of how and where vehicles can be parked, and any associated costs.Read more about parking in our glossary page.
- Garage,Driveway
- GARDENA property has access to an outdoor space, which could be private or shared.
- Yes
- ACCESSIBILITYHow a property has been adapted to meet the needs of vulnerable or disabled individuals.Read more about accessibility in our glossary page.
- Ask agent
New Biggin Hill, Newmillerdam, Wakefield
Add an important place to see how long it'd take to get there from our property listings.
__mins driving to your place
Get an instant, personalised result:
- Show sellers you’re serious
- Secure viewings faster with agents
- No impact on your credit score



Your mortgage
Notes
Staying secure when looking for property
Ensure you're up to date with our latest advice on how to avoid fraud or scams when looking for property online.
Visit our security centre to find out moreDisclaimer - Property reference 34458207. The information displayed about this property comprises a property advertisement. Rightmove.co.uk makes no warranty as to the accuracy or completeness of the advertisement or any linked or associated information, and Rightmove has no control over the content. This property advertisement does not constitute property particulars. The information is provided and maintained by Richard Kendall, Wakefield. Please contact the selling agent or developer directly to obtain any information which may be available under the terms of The Energy Performance of Buildings (Certificates and Inspections) (England and Wales) Regulations 2007 or the Home Report if in relation to a residential property in Scotland.
*This is the average speed from the provider with the fastest broadband package available at this postcode. The average speed displayed is based on the download speeds of at least 50% of customers at peak time (8pm to 10pm). Fibre/cable services at the postcode are subject to availability and may differ between properties within a postcode. Speeds can be affected by a range of technical and environmental factors. The speed at the property may be lower than that listed above. You can check the estimated speed and confirm availability to a property prior to purchasing on the broadband provider's website. Providers may increase charges. The information is provided and maintained by Decision Technologies Limited. **This is indicative only and based on a 2-person household with multiple devices and simultaneous usage. Broadband performance is affected by multiple factors including number of occupants and devices, simultaneous usage, router range etc. For more information speak to your broadband provider.
Map data ©OpenStreetMap contributors.






