
Windsor Drive, West Wittering, PO20

- PROPERTY TYPE
Semi-Detached Bungalow
- BEDROOMS
2
- BATHROOMS
1
- SIZE
775 sq ft
72 sq m
- TENUREDescribes how you own a property. There are different types of tenure - freehold, leasehold, and commonhold.Read more about tenure in our glossary page.
Freehold
Key features
- Close to East Wittering village and beach
Description
14 Windsor Drive is an attractive semi-detached bungalow offering a practical and well balanced layout, ideal for comfortable single storey living. The property currently provides one main double bedroom, with bedroom two being used as an additional reception room, offering flexibility for buyers who may wish to keep this layout or easily return it to a second bedroom if required. The main living room is a bright and welcoming space, benefitting from a bay window which allows for excellent natural light.
The kitchen is well maintained and perfectly usable, while offering an opportunity for a buyer to personalise the space in the future to suit their own taste. There is also a useful adjoining utility area providing additional storage and appliance space. The bathroom is fitted with a suite including a walk in shower. To the rear, the conservatory provides an excellent additional living or dining area with French doors opening onto the garden.
Outside, the property benefits from a generous driveway providing good off road parking for multiple vehicles, access to the garage and a private rear garden. The garden is mainly laid to lawn with a patio seating area and established planting, creating a pleasant and low maintenance outdoor space to enjoy.
EPC Rating: E
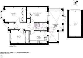
Bedroom 1 (4.33m x 2.98m)
Bedroom 2 (3.6m x 2.56m)
Sitting / Dining Room (4.14m x 3.14m)
Kitchen (3.62m x 2.51m)
Conservatory (6.6m x 2.79m)
Garage (5.25m x 2.53m)
Brochures
Property Brochure- COUNCIL TAXA payment made to your local authority in order to pay for local services like schools, libraries, and refuse collection. The amount you pay depends on the value of the property.Read more about council Tax in our glossary page.
- Band: D
- PARKINGDetails of how and where vehicles can be parked, and any associated costs.Read more about parking in our glossary page.
- Yes
- GARDENA property has access to an outdoor space, which could be private or shared.
- Yes
- ACCESSIBILITYHow a property has been adapted to meet the needs of vulnerable or disabled individuals.Read more about accessibility in our glossary page.
- Ask agent
Energy performance certificate - ask agent
Windsor Drive, West Wittering, PO20
Add an important place to see how long it'd take to get there from our property listings.
__mins driving to your place
Get an instant, personalised result:
- Show sellers you’re serious
- Secure viewings faster with agents
- No impact on your credit score



Your mortgage
Notes
Staying secure when looking for property
Ensure you're up to date with our latest advice on how to avoid fraud or scams when looking for property online.
Visit our security centre to find out moreDisclaimer - Property reference ce9d665f-c17a-48e6-9342-e0c73e9adde7. The information displayed about this property comprises a property advertisement. Rightmove.co.uk makes no warranty as to the accuracy or completeness of the advertisement or any linked or associated information, and Rightmove has no control over the content. This property advertisement does not constitute property particulars. The information is provided and maintained by Henry Adams, East Wittering. Please contact the selling agent or developer directly to obtain any information which may be available under the terms of The Energy Performance of Buildings (Certificates and Inspections) (England and Wales) Regulations 2007 or the Home Report if in relation to a residential property in Scotland.
*This is the average speed from the provider with the fastest broadband package available at this postcode. The average speed displayed is based on the download speeds of at least 50% of customers at peak time (8pm to 10pm). Fibre/cable services at the postcode are subject to availability and may differ between properties within a postcode. Speeds can be affected by a range of technical and environmental factors. The speed at the property may be lower than that listed above. You can check the estimated speed and confirm availability to a property prior to purchasing on the broadband provider's website. Providers may increase charges. The information is provided and maintained by Decision Technologies Limited. **This is indicative only and based on a 2-person household with multiple devices and simultaneous usage. Broadband performance is affected by multiple factors including number of occupants and devices, simultaneous usage, router range etc. For more information speak to your broadband provider.
Map data ©OpenStreetMap contributors.





