5 bedroom apartment for sale
Holland Park, London, W11

- PROPERTY TYPE
Apartment
- BEDROOMS
5
- BATHROOMS
5
- SIZE
Ask agent
Key features
- 5 Bedrooms
- 5 Ensuite Bathrooms
- Double Reception
- Luxury Kitchen
- Gaggenau Appliances
- Dining Room
- Study
- Large Garden Terrace
- Media/Games Room
- Gymnasium
Description
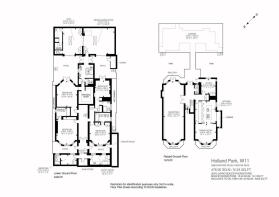
The house is entered by a grand staircase under a cast-iron glazed Victorian canopy, typical of the area, into the main hallway, where we find the entrance to the apartment.
Accommodation on the raised ground floor includes an incredible double reception, a gourmet kitchen with large larder and Gaggenau appliances, leading on to a separate dining room and a good sized study. There are double doors that lead on to a private terrace and onward to a beautiful secluded South-facing garden.
The lower ground comprises of the principal bedroom with walk-through dressing room and ensuite, 3 further excellent sized en-suite bedrooms and another smaller bedroom. Leading on from the principal suite, into the annexe, we find a huge media/games room and an equal sized gymnasium with its own bathroom and sauna. Also, between the bedrooms and rear annexe we find two good sized patios, linking all the rooms together. Furthermore, we find a utility room, a wine cellar and outdoor store.
Located on the imposing treelined street of Holland Park, this is one of The Royal Borough of Kensington and Chelsea's most exclusive addresses. Surrounded by verdant trees and stunning period architecture, the area is renowned for its natural beauty and elegant charm, with easy access into the park, famous for its outdoor Opera and musical performances, the Kyoto Japanese Garden and its children's playground. The nearest Underground station is Holland Park (Central line), providing seamless connectivity to all parts of the city.
This apartment is perfect for those seeking a sophisticated home in one of London's most
prestigious streets, not to mention, neighbourhoods.
- COUNCIL TAXA payment made to your local authority in order to pay for local services like schools, libraries, and refuse collection. The amount you pay depends on the value of the property.Read more about council Tax in our glossary page.
- Band: H
- PARKINGDetails of how and where vehicles can be parked, and any associated costs.Read more about parking in our glossary page.
- Ask agent
- GARDENA property has access to an outdoor space, which could be private or shared.
- Yes
- ACCESSIBILITYHow a property has been adapted to meet the needs of vulnerable or disabled individuals.Read more about accessibility in our glossary page.
- Ask agent
Holland Park, London, W11
Add an important place to see how long it'd take to get there from our property listings.
__mins driving to your place
Get an instant, personalised result:
- Show sellers you’re serious
- Secure viewings faster with agents
- No impact on your credit score
Your mortgage
Notes
Staying secure when looking for property
Ensure you're up to date with our latest advice on how to avoid fraud or scams when looking for property online.
Visit our security centre to find out moreDisclaimer - Property reference RX333993. The information displayed about this property comprises a property advertisement. Rightmove.co.uk makes no warranty as to the accuracy or completeness of the advertisement or any linked or associated information, and Rightmove has no control over the content. This property advertisement does not constitute property particulars. The information is provided and maintained by Jefferies, London. Please contact the selling agent or developer directly to obtain any information which may be available under the terms of The Energy Performance of Buildings (Certificates and Inspections) (England and Wales) Regulations 2007 or the Home Report if in relation to a residential property in Scotland.
*This is the average speed from the provider with the fastest broadband package available at this postcode. The average speed displayed is based on the download speeds of at least 50% of customers at peak time (8pm to 10pm). Fibre/cable services at the postcode are subject to availability and may differ between properties within a postcode. Speeds can be affected by a range of technical and environmental factors. The speed at the property may be lower than that listed above. You can check the estimated speed and confirm availability to a property prior to purchasing on the broadband provider's website. Providers may increase charges. The information is provided and maintained by Decision Technologies Limited. **This is indicative only and based on a 2-person household with multiple devices and simultaneous usage. Broadband performance is affected by multiple factors including number of occupants and devices, simultaneous usage, router range etc. For more information speak to your broadband provider.
Map data ©OpenStreetMap contributors.




