
3 bedroom town house for sale
Whitehead Way, Buckingham, Buckinghamshire, MK18

- PROPERTY TYPE
Town House
- BEDROOMS
3
- BATHROOMS
2
- SIZE
Ask agent
- TENUREDescribes how you own a property. There are different types of tenure - freehold, leasehold, and commonhold.Read more about tenure in our glossary page.
Freehold
Key features
- Three Double Bedrooms
- En-Suite to Master Bedroom
- Re-Fitted Family Bathroom
- South Facing Rear Garden
- Garage & Parking
- Ground Floor Cloakroom
- Gas to Radiator Central Heating
- UPVC Double Glazing
- No Onward Chain
- Council Tax Band D
Description
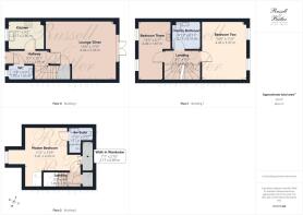
A three double bedroom town house located just of the Moreton Road and within walking distance to Buckingham Town and all the amenities and being within catchment for the Royal Latin Grammar School. The entrance hall leads to the ground floor cloakroom with white suite, modern kitchen to the front and spacious lounge/diner to the rear with French doors leading out to the patio and south facing rear garden. On the first floor, stairs rising to second floor, two double bedrooms and the re-fitted family bathroom. On the second floor, good size master bedroom with walk in wardrobe, and en-suite shower room. The rear garden is fully enclosed with artificial lawn, large paved patio, gated access to the rear to allocated parking and single garage. EPC rating B. Council tax band D. No Upper Chain.
Entrance
Entrance door to:
Entrance Hall
Stairs rising to first and second floors, radiator, part glazed door to kitchen, nest heating controls.
Cloakroom
White suite of low level W/C, radiator, pedestal wash hand basin, ceramic tiling to splash areas, Upvc double glazed window to front aspect.
Kitchen
2.8m x 2.17m - 9'2" x 7'1"
Modern fitted kitchen with inset 'Franke' sink unit with mono bloc mixer taps, cupboard under, further range of wall, drawer and base units with work tops over, ceramic tiling to splash areas, space and plumbing for appliances, cupboard housing gas fired 'Potterton' boiler serving both domestic hot water and radiator central heating, radiator, Upvc double glazed window to front aspect. Ceramic tiled floor.
Lounge/Diner
5.36m x 4.44m - 17'7" x 14'7"
A spacious lounge/diner with a large walk in under stair storage cupboard, two radiators, UPVC double glazed French doors leading out to the patio and south facing rear garden.
First Floor Landing
With stair rising to second floor, radiator.
Bedroom Two
3.37m x 4.43m - 11'1" x 14'6"
Two UPVC double glazed window to rear aspect, radiator.
Bedroom Three
3.37m x 4.4m - 11'1" x 14'5"
Two UPVC double glazed windows to front aspect, radiator, wall mounted wash hand basin.
Family Bathroom
2.11m x 2.11m - 6'11" x 6'11"
Re-fitted to a high specification to comprise panel jacuzzi bath, wash hand basin with storage drawers under, low level W/C, complementary metro ceramic tiling to walls, colour co-ordinated ladder/heater rail, extractor fan, vinyl flooring.
Second Floor Landing
Airing cupboard housing hot water tank, door to the main bedroom.
Bedroom One
4.2m x 3.41m - 13'9" x 11'2"
A generous size master bedroom with UPVC double glazed window to front aspect, radiator, over stair storage area, large walk in wardrobe with light. Door to;
En-Suite
1.86m x 1.17m - 6'1" x 3'10"
White suite of width and a half fully tiled shower cubicle with shower as fitted, glazed screen, pedestal wash hand basin, low level W/C. ceramic tiling to splash areas, radiator, extractor fan.
Front Aspect
The property is set back from the road in a mews style setting, part enclosed by railings and hedging.
Rear Garden
A fully enclosed south facing rear garden with large Indian slate paved patio, artificial lawn, bin store, gated rear access, outside tap, pathway leading to the personal door to single garage.
Garage & Parking
5.6m x 2.65m - 18'4" x 8'8"
With eaves storage space, light and power connected, personal door to rear garden, up and over door. Allocated parking to the front of the garage
Please Note
Al mains services are connected.Council tax band DEPC Rating BConstruction type: Standard. Electricity supply: Mains. Water supply: Mains. Sewerage: Mains. Heating: Gas fired boiler supplying both domestic hot water and radiator central heating. BROADBAND/MOBILE COVERAGE: Standard, Superfast and Ultra fast broadband available. Offering highest speeds of 1000Mbps download and 1000Mbps upload speeds. The speeds indicated are the fastest estimated speeds predicted by the network operator(s) providing services in this area. Actual service availability at a property or speeds received may be different. 4G likely depending on provider, signal strength varies whether inside or outside. (Information obtained from Ofcom). Parking: Garage, allocated parking, on street. Measurements on floor plan are approximate due to amongst other things wall thickness etc. These are therefore not to be relied on.
Mortgage Advice
If you require a mortgage, we highly recommend that you speak to our Independent Mortgage Adviser Clare Jarvis. Clare is associated with Mortgage Advice Bureau which is one of the largest and best broker firms in the country, having access to the whole of market and due to the volume of mortgages they place often get exclusive rates not available to others too. Please contact us for further information.
- COUNCIL TAXA payment made to your local authority in order to pay for local services like schools, libraries, and refuse collection. The amount you pay depends on the value of the property.Read more about council Tax in our glossary page.
- Band: D
- PARKINGDetails of how and where vehicles can be parked, and any associated costs.Read more about parking in our glossary page.
- Yes
- GARDENA property has access to an outdoor space, which could be private or shared.
- Yes
- ACCESSIBILITYHow a property has been adapted to meet the needs of vulnerable or disabled individuals.Read more about accessibility in our glossary page.
- Ask agent
Whitehead Way, Buckingham, Buckinghamshire, MK18
Add an important place to see how long it'd take to get there from our property listings.
__mins driving to your place
Get an instant, personalised result:
- Show sellers you’re serious
- Secure viewings faster with agents
- No impact on your credit score
About Russell & Butler, Bucks, South Northants & North Oxon, Buckingham
1 West Street, Buckingham, MK18 1HL



Your mortgage
Notes
Staying secure when looking for property
Ensure you're up to date with our latest advice on how to avoid fraud or scams when looking for property online.
Visit our security centre to find out moreDisclaimer - Property reference 10738783. The information displayed about this property comprises a property advertisement. Rightmove.co.uk makes no warranty as to the accuracy or completeness of the advertisement or any linked or associated information, and Rightmove has no control over the content. This property advertisement does not constitute property particulars. The information is provided and maintained by Russell & Butler, Bucks, South Northants & North Oxon, Buckingham. Please contact the selling agent or developer directly to obtain any information which may be available under the terms of The Energy Performance of Buildings (Certificates and Inspections) (England and Wales) Regulations 2007 or the Home Report if in relation to a residential property in Scotland.
*This is the average speed from the provider with the fastest broadband package available at this postcode. The average speed displayed is based on the download speeds of at least 50% of customers at peak time (8pm to 10pm). Fibre/cable services at the postcode are subject to availability and may differ between properties within a postcode. Speeds can be affected by a range of technical and environmental factors. The speed at the property may be lower than that listed above. You can check the estimated speed and confirm availability to a property prior to purchasing on the broadband provider's website. Providers may increase charges. The information is provided and maintained by Decision Technologies Limited. **This is indicative only and based on a 2-person household with multiple devices and simultaneous usage. Broadband performance is affected by multiple factors including number of occupants and devices, simultaneous usage, router range etc. For more information speak to your broadband provider.
Map data ©OpenStreetMap contributors.






