
2 bedroom semi-detached house for sale
London Road Kirton PE20 1JA

- PROPERTY TYPE
Semi-Detached
- BEDROOMS
2
- SIZE
732 sq ft
68 sq m
- TENUREDescribes how you own a property. There are different types of tenure - freehold, leasehold, and commonhold.Read more about tenure in our glossary page.
Freehold
Key features
- Two off road parking spaces
- Integrated appliances as standard
- Flooring throughout as standard
- Good sized plot
- 10 Year NHBC Warranty.
- Good local amenities and schools
- Showhomes open Thursday to Monday 10am-5pm
- Ready to move into
- Situated on a privte drive in a cul-de-sac away from main site
Description
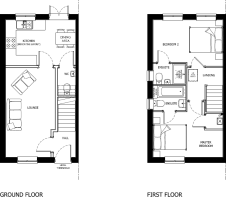
Lounge: 5.27m x 2.92m (17'4 x 9'7).
Kitchen/Diner: 4.12m x 2.69m (13'6 x 8'10).
W/C: 1.61m x 1.05m (5'5 x 3'5).
Bedroom 1: 4.12m x 2.68m (13'6 x 8'10).
En-Suite 1: 1.93m x 1.47m (6'4 x 4'10).
Bedroom 2: 4.12m x 2.73m (13'6 x 8'11).
En-Suite 2: 1.93m x 1.18m (6'4 x 3'10).
This property is not available on the shared ownership scheme.
A Management Company at 'The Spires' has been set up to oversee the day to day upkeep and maintenance of the Estate landscaping including any open spaces.
The charge for the year commencing April 2025 to be £2124.93 and will be reviewed on an annual basis. Please ask the sales negotiator for more information.
- COUNCIL TAXA payment made to your local authority in order to pay for local services like schools, libraries, and refuse collection. The amount you pay depends on the value of the property.Read more about council Tax in our glossary page.
- Ask developer
- PARKINGDetails of how and where vehicles can be parked, and any associated costs.Read more about parking in our glossary page.
- Driveway,Allocated
- GARDENA property has access to an outdoor space, which could be private or shared.
- Back garden
- ACCESSIBILITYHow a property has been adapted to meet the needs of vulnerable or disabled individuals.Read more about accessibility in our glossary page.
- Ask developer
Energy performance certificate - ask developer
- Close to the bustling town of Boston.
- High specification, 2 - 4 bedroom homes
- The town of Boston is just a 15 minute drive away
- Kirton boasts many amenities including schools, pubs and restaurants
London Road Kirton PE20 1JA
Add an important place to see how long it'd take to get there from our property listings.
__mins driving to your place
Get an instant, personalised result:
- Show sellers you’re serious
- Secure viewings faster with agents
- No impact on your credit score
About Ashwood Homes
The Spires development is located in Kirton close to the bustling town of Boston.
If you are looking for a new place to settle then take a look at this stunning development, offering a range of high specification, 2 - 4 bedroom homes. Kirton boasts many amenities including schools, pubs and restaurants, convenience stores and its beautiful church of St. Peter & St. Paul.
The town of Boston is just a 15 minute drive away and is convenient for shopping, travel links, more schools and is home to Pilgrim Hospital.
Your mortgage
Notes
Staying secure when looking for property
Ensure you're up to date with our latest advice on how to avoid fraud or scams when looking for property online.
Visit our security centre to find out moreDisclaimer - Property reference 165dee. The information displayed about this property comprises a property advertisement. Rightmove.co.uk makes no warranty as to the accuracy or completeness of the advertisement or any linked or associated information, and Rightmove has no control over the content. This property advertisement does not constitute property particulars. The information is provided and maintained by Ashwood Homes. Please contact the selling agent or developer directly to obtain any information which may be available under the terms of The Energy Performance of Buildings (Certificates and Inspections) (England and Wales) Regulations 2007 or the Home Report if in relation to a residential property in Scotland.
*This is the average speed from the provider with the fastest broadband package available at this postcode. The average speed displayed is based on the download speeds of at least 50% of customers at peak time (8pm to 10pm). Fibre/cable services at the postcode are subject to availability and may differ between properties within a postcode. Speeds can be affected by a range of technical and environmental factors. The speed at the property may be lower than that listed above. You can check the estimated speed and confirm availability to a property prior to purchasing on the broadband provider's website. Providers may increase charges. The information is provided and maintained by Decision Technologies Limited. **This is indicative only and based on a 2-person household with multiple devices and simultaneous usage. Broadband performance is affected by multiple factors including number of occupants and devices, simultaneous usage, router range etc. For more information speak to your broadband provider.
Map data ©OpenStreetMap contributors.





