
Weelsby Grove, Grimsby

- PROPERTY TYPE
Detached
- BEDROOMS
3
- BATHROOMS
1
- SIZE
Ask agent
- TENUREDescribes how you own a property. There are different types of tenure - freehold, leasehold, and commonhold.Read more about tenure in our glossary page.
Freehold
Key features
- Three Bedroom Detached Home
- Popular Residential Area of Grimsby
- Ideal Family Accommodation - Close to Schools
- Two Reception Rooms
- Ground Floor WC & First Floor Bathroom
- Kitchen, Separate Utility
- Driveway Parking
Description
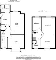
Entrance Hall - Accessed via a uPVC glazed front door. With understairs recess, and useful storage cupboard/pantry.
Lounge - 3.83 x 3.77 (12'6" x 12'4") - With a bay window to front aspect.
Rear Living/Dining Room - 5.27 x 3.15 (17'3" x 10'4") - A second reception room, overlooking the rear garden.
Kitchen - 3.47 x 2.16 (11'4" x 7'1") - Fitted with modern wall and base units, worktops incorporating a stainless-steel sink, and space for all appliances. Side aspect window, and access to the rear garden.
Utility Area - 1.80 x 1.29 (5'10" x 4'2") - With space for laundry appliances, and a rear aspect window.
Cloakroom - 1.66 x 0.76 (5'5" x 2'5") - Fitted with a WC, and wall mounted ‘Vaillant’ GCH boiler.
First Floor Landing - With a side aspect window.
Bedroom 1 - 4.03 x 3.18 (13'2" x 10'5") - To rear aspect, with original feature fireplace.
Bedroom 2 - 3.45 x 3.12 (11'3" x 10'2") - To front aspect, a second double bedroom with original feature fireplace.
Bedroom 3 - 2.84 x 2.29 (9'3" x 7'6") - To rear aspect, with access to the loft.
Bathroom - 1.88 x 1.76 (6'2" x 5'9") - Fitted with a panelled bath and pedestal basin. Storage/airing cupboard housing the hot water cylinder.
Council Tax - C
Tenure - FREEHOLD
Brochures
Weelsby Grove, GrimsbyBrochure- COUNCIL TAXA payment made to your local authority in order to pay for local services like schools, libraries, and refuse collection. The amount you pay depends on the value of the property.Read more about council Tax in our glossary page.
- Band: C
- PARKINGDetails of how and where vehicles can be parked, and any associated costs.Read more about parking in our glossary page.
- Yes
- GARDENA property has access to an outdoor space, which could be private or shared.
- Yes
- ACCESSIBILITYHow a property has been adapted to meet the needs of vulnerable or disabled individuals.Read more about accessibility in our glossary page.
- Ask agent
Weelsby Grove, Grimsby
Add an important place to see how long it'd take to get there from our property listings.
__mins driving to your place
Get an instant, personalised result:
- Show sellers you’re serious
- Secure viewings faster with agents
- No impact on your credit score



Affordability
Notes
Staying secure when looking for property
Ensure you're up to date with our latest advice on how to avoid fraud or scams when looking for property online.
Visit our security centre to find out moreDisclaimer - Property reference 34473555. The information displayed about this property comprises a property advertisement. Rightmove.co.uk makes no warranty as to the accuracy or completeness of the advertisement or any linked or associated information, and Rightmove has no control over the content. This property advertisement does not constitute property particulars. The information is provided and maintained by Argyle Estate Agents, Cleethorpes. Please contact the selling agent or developer directly to obtain any information which may be available under the terms of The Energy Performance of Buildings (Certificates and Inspections) (England and Wales) Regulations 2007 or the Home Report if in relation to a residential property in Scotland.
*This is the average speed from the provider with the fastest broadband package available at this postcode. The average speed displayed is based on the download speeds of at least 50% of customers at peak time (8pm to 10pm). Fibre/cable services at the postcode are subject to availability and may differ between properties within a postcode. Speeds can be affected by a range of technical and environmental factors. The speed at the property may be lower than that listed above. You can check the estimated speed and confirm availability to a property prior to purchasing on the broadband provider's website. Providers may increase charges. The information is provided and maintained by Decision Technologies Limited. **This is indicative only and based on a 2-person household with multiple devices and simultaneous usage. Broadband performance is affected by multiple factors including number of occupants and devices, simultaneous usage, router range etc. For more information speak to your broadband provider.
Map data ©OpenStreetMap contributors.





